查看完整案例

收藏

下载

翻译
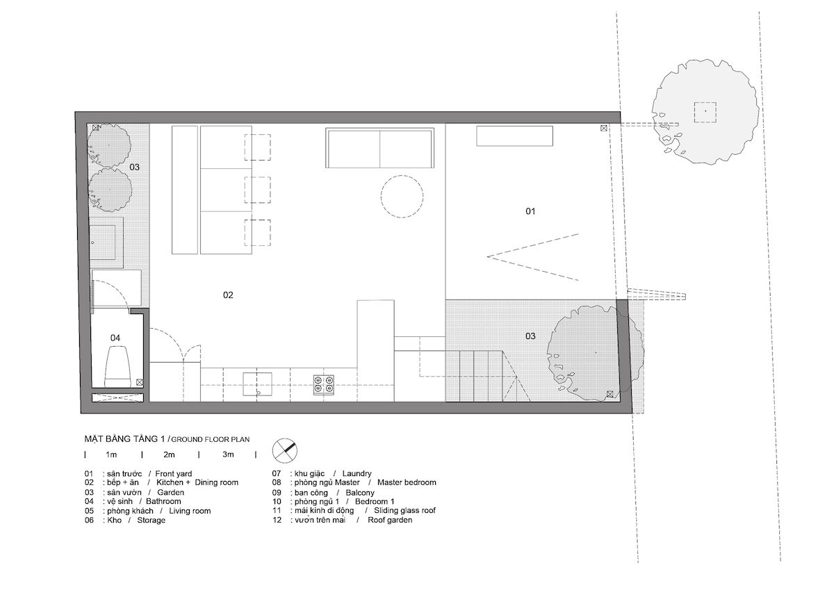
Bi & Sam House là tổ ấm với các không gian nhằm kích thích hoạt động khám phá và sáng tạo của trẻ cũng như nơi mà cha mẹ có thể quan sát được con của mình dù ở bất kỳ đâu trong ngôi nhà.Bi & Sam House là tổ ấm nằm ở một con hẻm nhỏ Quận 12, TP. Hồ Chí Minh. Bối cảnh khu đất có mặt tiền hướng “Đông – Bắc” giáp với con hẻm nhỏ khá yên tĩnh, là nơi tập trung vui chơi của trẻ em gần đó vào những buổi chiều.Chủ nhà muốn dành thời gian nhiều nhất có thể để chăm sóc, quan tâm và chơi cùng hai con: Bi (5 tuổi) và Sam (3 tuổi). Vì vậy mà đội ngũ KTS muốn tạo ra ngôi nhà với các không gian nhằm kích thích hoạt động khám phá và sáng tạo của trẻ cũng như nơi mà cha mẹ có thể quan sát được con của mình dù ở bất kỳ đâu trong ngôi nhà.Giải pháp của nhóm KTS là thay đổi các diện tích sàn của các tầng có sự chênh lệch với nhau nhằm tạo ra thông tầng lớn ở phía trước. Ở đây, sân và hiên xuất hiện được đưa vào bên trong lớp vỏ của ngôi nhà nơi mà Bi & Sam có thể vui chơi khám phá và quan sát các yếu tố tự nhiên (cây xanh, bầu trời, gió, mưa) và các hoạt động từ con hẻm thay đổi nhưng vẫn được bảo vệ một cách gián tiếp từ lớp vỏ đó.Khoảng sân hay hiên (ban công) được gắn kết với các khu chức năng của ba mẹ như bếp và phòng ngủ nơi mà ba mẹ có thể vừa làm bếp vừa quan sát được con của mình. Vị trí cầu thang của ngôi nhà được thay đổi liên tục nằm ở giữa thông tầng với sự xuất hiện cây xanh, ánh sáng nhắm kích thích các hoạt động và quan sát theo trục đứng của ngôi nhà.Mặt tiền ngôi nhà với các ô cửa lớn cao 2 tầng giúp cho ngôi nhà tràn ngập ánh sáng và thông gió nhưng vẫn đảm bảo được tính riêng tư cho gia chủ. Nội thất tối giản tích hợp các chức năng với tone màu chính là trắng và màu gỗ nhằm mục đích làm phông nền cho ánh sáng, cây xanh và các điều kiện tự nhiên như nắng, mưa, gió tại vị trí khu đất mà chúng tôi cho đó mới chính là “bản sắc” của Bi & Sam House.Xem thêm hình ảnh:XEM THÊM:
客服
消息
收藏
下载
最近




















































