查看完整案例

收藏

下载

翻译
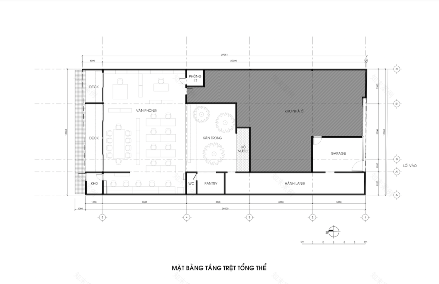
Ở công trình văn phòng kiến trúc O, các khoảng đệm được tiếp diễn liên tục bao quanh hai vùng không gian chính, từ đó mở ra các không gian tương quan trong ý niệm “đóng” và “mở”, “tĩnh” và “động”.Ở công trình văn phòng kiến trúc, các khoảng đệm được tiếp diễn liên tục bao quanh hai vùng không gian chính: Khoảng trống và khu vực làm việc. Các bức tường có vai trò như những bức ngăn chia mở để các không gian tương quan trong ý niệm “đóng” và “mở” được trôi chảy trên một nền sàn phẳng. Chất lượng của các vùng không gian này hoàn toàn khác nhau trong sự tương phản rõ rệt giữa “tĩnh” và “động”.Các bức tường trôi nổi trên diện phẳng tái lập những vùng không gian riêng, nhận ánh sáng tự nhiên và bóng đổ để tạo ra các khoảng yên bình. Công trình không sử dụng hệ thống điều hòa không khí như cách thông thường để đối phó với khí hậu nóng vùng nhiệt đới mà thay vào đó là giải pháp thông gió thụ động. Không khí luân chuyển tạo thông gió tự nhiên từ các khoảng mở trên hệ vách và khoảng mở trên mái đã tạo được sự mới mẻ dễ chịu, qua đó đánh thức cảm nhận của con người về nơi chốn và tinh thần của địa điểm.Xem thêm hình ảnh:XEM THÊM:
客服
消息
收藏
下载
最近









































