查看完整案例

收藏

下载

翻译
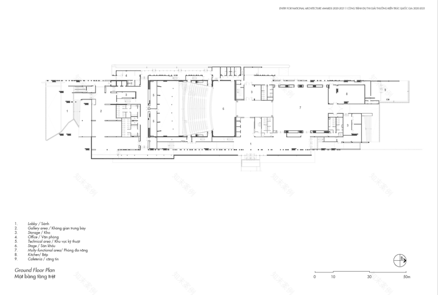
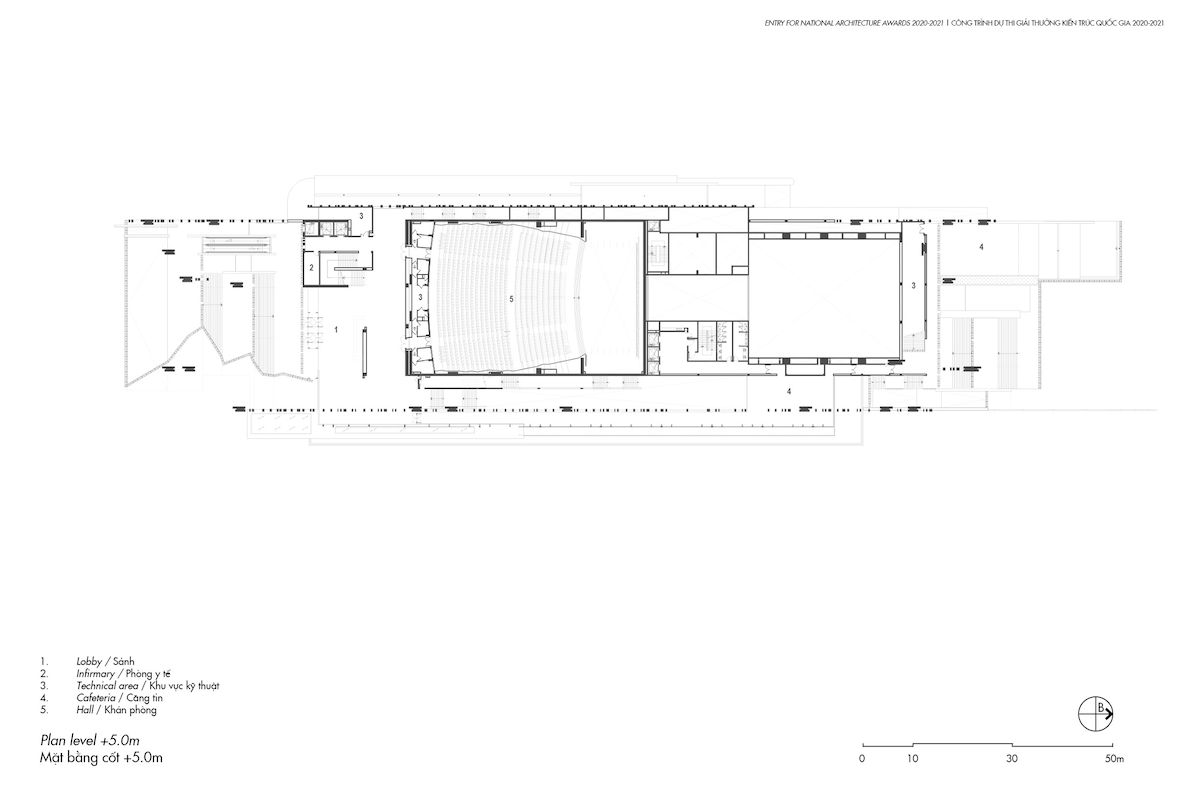
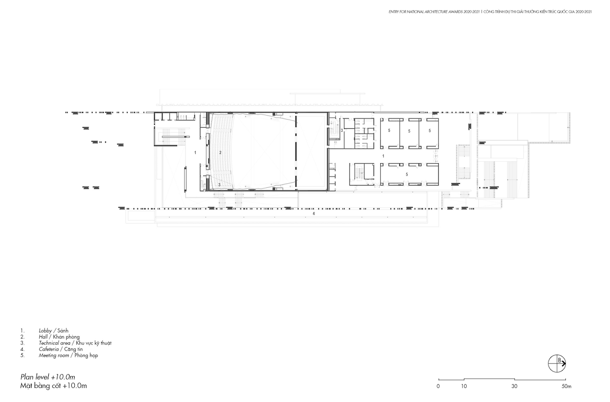
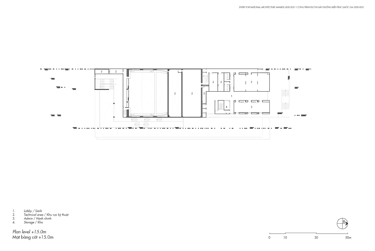
Công trình được thi công bởi những người công nhân địa phương, với các vật liệu trong nước hết sức thân thuộc và bình dị nhất với thiết kế khai thác tối đa yếu tố bản địa Bình Định để tạo một không gian mà người tham quan được tự do trong việc tiếp cận công trình công cộng theo đúng nghĩa của nó.Công trình Trung tâm Hội nghị tỉnh Bình Định được đặt tại một khu đất khá đặc biệt của TP Quy Nhơn, nơi đây từng là đường băng của sân bay quân sự trong thời chiến. Với đặc thù khu đất hẹp và dài thẳng theo trục Bắc Nam, nhóm KTS đã lựa chọn một hình khối tổng thể đơn giản và cô đọng nhất. Mặt đứng công trình với những hàng cột ngẫu hứng theo một tỷ lệ khác lạ so với các công trình cùng thể loại và hướng mở ra về phía trung tâm TP Quy Nhơn, đón chào công chúng đến với địa điểm này.Bao quanh công trình là các khoảng sân vườn, cây xanh cũng như công viên hiện trạng được cải tạo, hình thành nên các không gian công cộng dành cho công chúng. Điều đặc biệt trong dự án này là việc chính quyền địa phương đồng ý và ủng hộ việc không xây dựng bức tường rào ngăn cách giữa công trình và không gian xung quanh. Đây có thể coi là một quyết định không thường thấy trong các công trình công cộng ở nước ta. Chỉ một chi tiết nhỏ này đã thay đổi hoàn toàn trải nghiệm của công chúng, công trình thực sự trở thành một điểm đến nơi công chúng cảm giác được sở hữu không gian, được tự do trong việc tiếp cận công trình công cộng theo đúng nghĩa của nó.Công trình còn được thi công bởi chính những người công nhân địa phương, với các vật liệu trong nước hết sức thân thuộc và bình dị. Bằng cách kết hợp này, nhóm KTS mong muốn mang đến cho công chúng cảm giác ngạc nhiên thú vị từ những điều gần gũi nhất. Đó chính là sự “Khai thác Bản địa” mà đội ngũ KTS muốn hướng đến.Xem thêm hình ảnh:XEM THÊM:
客服
消息
收藏
下载
最近






































