查看完整案例

收藏

下载

翻译
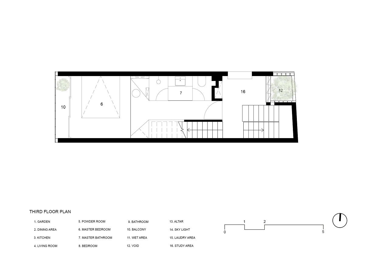
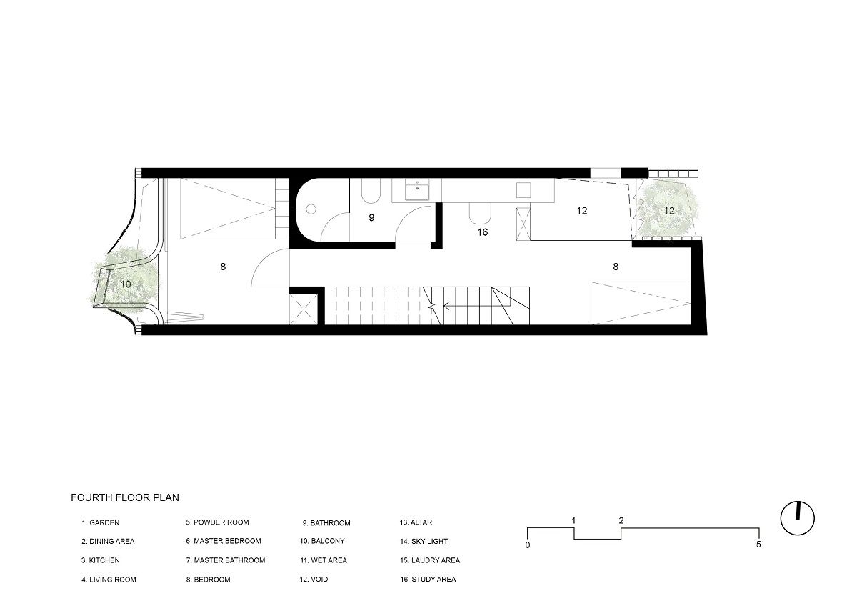
Maison Q là một công trình nhà lô nhỏ hẹp điển hình của đô thị Hà Nội. Với công trình này, KTS đã phân tích và đưa ra những giải pháp khắc phục được các yếu tố bất lợi để mang đến một công trình nhà ống diện tích nhỏ nhưng vẫn đầy đủ ánh sáng, thông gió tự nhiên với những khoảng sân trong thông tầng.Maison Q là một công trình ‘’nhà lô’’ nhỏ hẹp điển hình của đô thị Hà Nội. Điểm chung của các công trình nhà lô thường nằm trong các ngõ hẻm, giao thông bất tiện. Ngoài ra với đặc thù nhỏ hẹp, dài và nằm sát nhau nên các điều kiện sống thường khó được đáp ứng tốt.Với công trình này, KTS đã phân tích và đưa ra những giải pháp khắc phục được các yếu tố bất lợi khiến cho một công trình nhà ống diện tích rất nhỏ nhưng vẫn đầy đủ ánh sáng, thông gió tự nhiên với những khoảng sân trong thông tầng. Cấu trúc ngôi nhà tận dụng tối đa những khoảng không gian liên thông để đưa ánh sáng tự nhiên và điểm nhìn hướng tới những khoảng vườn nhỏ trong nhà. Các khối phòng và không gian giao thông được đan cài, liên kết với nhau bằng các giải pháp chuyển tiếp giao thông, các khối không gian đóng mở liên tục theo mặt bằng và trục đứng của cả công trình.Với cách tiếp cận kiến trúc mới mẻ và táo bạo, mặt đứng công trình như một tác phẩm điêu khắc đương đại với cách tạo hình và sử dụng vật liệu tương phản mạnh mẽ bê tông và thép, đường nét vuông thẳng vát chéo với đường cong chạy mềm mại đan xen.Với hướng nhà phía Tây, lớp lưới thép (mesh) được tạo hình bay ra phía trước mặt đứng ngôi nhà, vừa để cản bức xạ nắng trực tiếp vừa tạo ra bề mặt bảo vệ sự riêng tư giữa những công trình đối diện trong ngõ.Khối công trình với việc xử lý vát chéo tạo không gian mở rộng hiên, tận dụng làm giếng trời đưa ánh sáng xuống sân trước, tràn ngập khu vườn nhỏ. Tổng thể ngôi nhà tưởng chừng rất nhỏ nhưng lại đủ đầy.Xem thêm hình ảnh:XEM THÊM:
客服
消息
收藏
下载
最近




































































