查看完整案例

收藏

下载

翻译
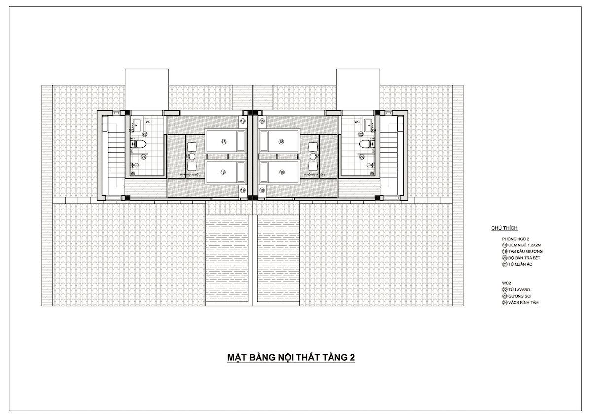
Mikan – trong tiếng Nhật có nghĩa là quả Quýt, ngôi nhà được đặt trên khu xóm Quýt tại Yên Bài, Ba Vì. Kiến trúc Nhật Bản truyền thống nhà chống cột với địa hình thoải nhẹ, phù hợp khi hậu Việt Nam tạo nên một căn nhà nhỏ nhắn, gọn gàng trong khung cảnh núi đồi trùng điệp.Lấy cảm hứng từ kiến trúc Nhật Bản truyền thống pha lẫn hiện đại và nhà chống cột, các KTS của Combo Home đã tạo ra một căn nhà nghỉ dưỡng song lập tại ngoại ô Hà Nội mang tên Mikan Village.Mikan trong tiếng Nhật có nghĩa là quả Quýt, ngôi nhà được đặt trên khu xóm Quýt tại Yên Bài, Ba Vì. Công trình có tầm nhìn rất đẹp nhìn thẳng ra núi Ba Vì mây trắng bay hàng ngày, vị thế đồi cao giúp nhìn trọn không gian xung quanh và nhìn thẳng xuống cánh đồng lúa mỗi mùa lúa chín.Kiến trúc Nhật Bản truyền thống nhà chống cột với địa hình thoải nhẹ, phù hợp với khi hậu Việt Nam giúp căn nhà nhỏ nhắn gọn gàng trong khung cảnh núi đồi trùng điệp, hai căn như một, phẳng phiu, ngăn nắp. Căn nhà 1.5 tầng gồm hai phòng ngủ trên và dưới, bếp, phòng khách khách và bể ngâm cho tụi trẻ mỗi khi mùa hè đến, hiên nhà bao quanh để ngồi ngắm mây núi, uống trà khi sớm tinh mơ. Các thiết bị kỹ thuật, dây điện, nước và cục nóng điều hòa được giấu dưới đáy sàn nhà. Gia đình 4 thành viên có thể ở trong ngôi nhà gồm hai phòng ngủ, hai vệ sinh đầy đủ tiện nghi và thảm cỏ xanh mát bao quanh nhà, chiều chiều ra tưới cỏ cây.Không gian chính trong nhà là phòng khách và bếp, là không gian công cộng kéo gần các thành viên trong gia đình quây quần uống trà, ăn bánh. Phòng master có rèm trong kính, ngoài rèm là trúc được trồng cạnh cửa sổ, kết hợp với lớp rèm trong kính tạo ra một bức tranh ngoài cửa sổ, kéo thiên nhiên về gần với gia chủ hơn.Vật liệu xây dựng bằng bê tông khí chưng áp mới có tại thị trường Việt Nam, hiệu quả hơn gạch đỏ xây tường thông thường, giúp ngăn cách nhiệt trong và ngoài nhà, hè mát đông ấm, giữ nhiệt độ trong nhà vào mùa hè đỡ chi phí điều hòa và gạch nhẹ nổi trên nước giúp vận chuyển địa hình khó khăn một cách dễ dàng. Giữ tinh thần Nhật bản truyền thống, căn nhà sử dụng gỗ Bích nhập khẩu làm nội thất, kết hợp kính cao cấp chống nóng giúp giảm nhiệt độ vào mùa hè, hạn chế tiếng ồn. Cửa lùa được sử dụng đa số trong căn nhà, làm không gian mở tối đa đưa thiên nhiên vào nhà, ánh sáng và gió tràn ngập, tiết kiệm điện và hạn chế sử dụng quạt.Một căn nhà tốt là một căn nhà nhỏ, đủ tiện nghi, đẹp đẽ và xung quanh là thiên nhiên.Ở tầng 1, khi bước vào nhà là tiểu cảnh có đá cuội tự nhiên được cắt lát, kèm theo bồn đá được cắt gọn hình tròn chứa nước chảy tuần hoàn, nước từ vòi tre chảy kêu róc rách mang thiên nhiên vào trong nhà, không gian đệm trước khi vào nhà vô cùng dễ chịu.Phòng vệ sinh tầng 1 có bồn tắm bằng chất liệu granite, sàn gạch và ốp gạch vuông ngăn nắp, rèm bằng mành dân dã, ánh sáng từ ngoài cửa kính và trên mái giúp bồn tắm có cảm giác như tắm ngoài thiên nhiên, bên ngoài cửa kính là những cây trúc tạo thành một bức tranh khi tắm bồn.Giữa những cửa lùa được sử dụng Mica dày và giấy Soji truyền thống của Nhật làm hạn chế bớt vật liệu công nghiệp trong căn nhà và bền vững với thời gian. Bọc trần là gỗ nhựa, xà gỗ với ánh sáng tiêu chuẩn làm căn hộ trên núi hòa nhập với thiên nhiên.Không gian bếp ở cấp cao hơn giúp phân tách không gian bếp và phòng khách, làm không gian nhà trở nên thú vị hơn. Thang lên tầng bọc gỗ, xương sắt vững chãi, tay nắm gỗ ấm cúng, giản đơn giúp căn nhà cảm giác được sự bao bọc bằng gỗ hài hòa, dễ chịu. Những kệ ngồi được gia cố bằng lõi sắt dày và cứng cáp, bọc gỗ tạo nên không gian bay bổng trong phòng khách và phòng ngủ.Tầng 2 gồm một phòng ngủ và phòng vệ sinh khép kín, với ô kính tròn nhìn núi Ba Vì như một bức tranh mỗi khi thức dậy, đầu giường làm bằng gỗ công nghiệp vân vải, khắc CNC lá trúc lặp lại và sơn thủ công lên lá trúc tinh tế, tầng 1 và 2 đều có tinh dầu hương bưởi mang hương thơm dịu dàng vào trong nhà.Ở công trình này, song lập là một hình khối tốt ở mặt kiến trúc, làm hai căn hộ như một, bề thế và không bị lọt thỏm trong không gian lớn nhưng vẫn ấm cúng, cảm giác an toàn khi bên cạnh mình có hàng xóm, hai căn hộ có thể đi lại qua nhau bằng hiên nhà trước và sau.Tinh thần kiến trúc Nhật Bản truyền thống pha lẫn hiện đại được cải tiến từ kiến trúc, nội thất thiết kế phù hợp với khí hậu và thói quen của người Việt Nam, phù hợp vị trí khu đất, căn nhà có thể ở hai thế hệ, ba mẹ và trẻ con nghỉ ngơi cuối tuần, di chuyển 45 phút đến Hà Nội.Sống trong một không gian đẹp, yên tĩnh và được đánh thức bằng những tiếng chim hót làm gia chủ khỏe khoắn hơn khi ở lại nơi đây.Xem thêm hình ảnh:XEM THÊM:
客服
消息
收藏
下载
最近



































































































































