知末
知末
创作上传
VIP
收藏下载
登录 | 注册有礼

Phan Rang 住宅区的气候适应性设计

2021/11/23 17:31:31
查看完整案例
微信扫一扫
收藏
下载
翻译
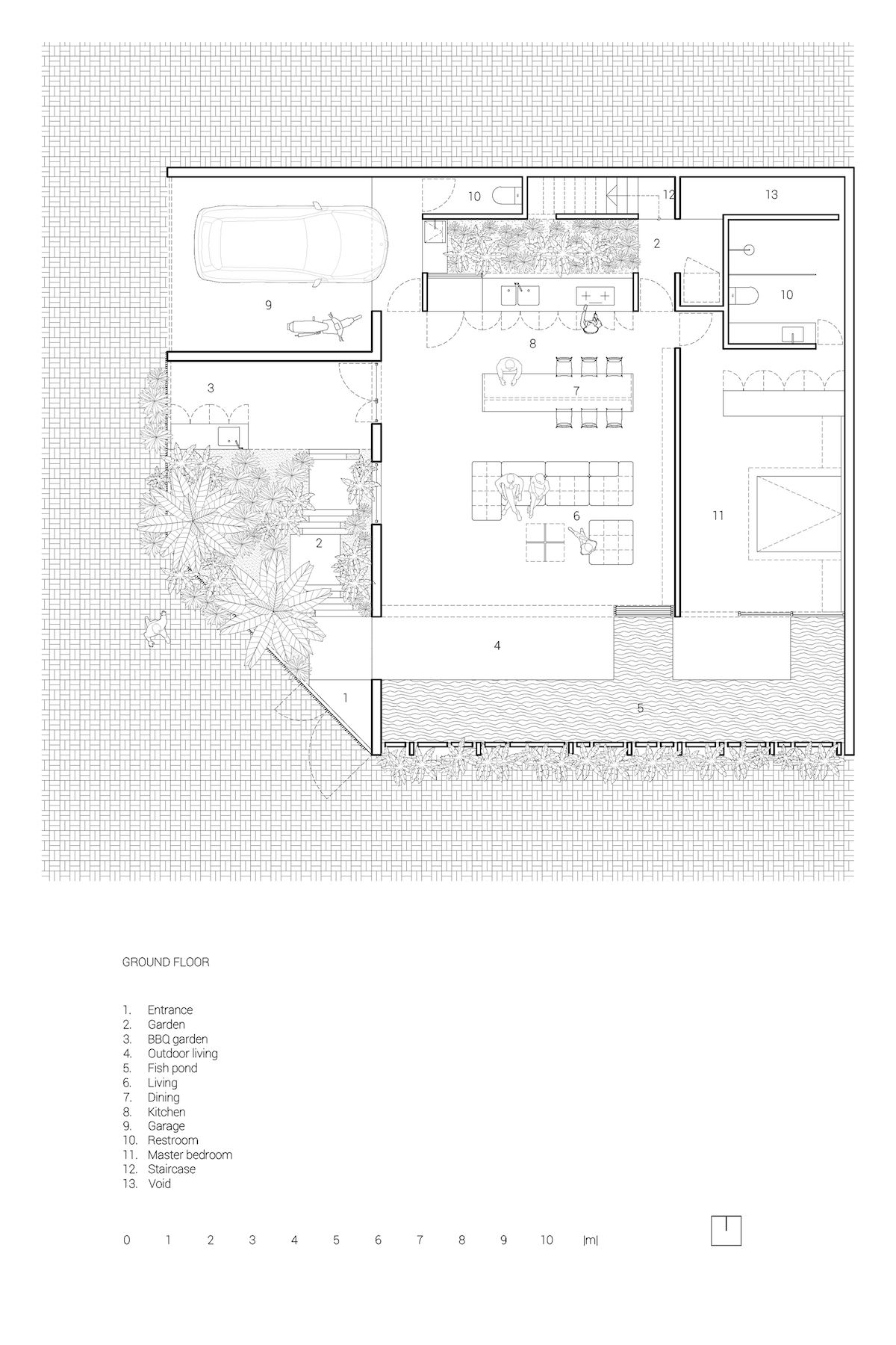
PR House với những vùng không gian chuyển tiếp, sự lược bỏ ranh giới trong – ngoài đã đem đến một giải pháp mới trong việc thích ứng khí hậu địa phương đồng thời gắn kết thiên nhiên với con người.Phan Rang nổi tiếng là vùng đất nắng, gió quanh năm. Người dân địa phương thường lựa chọn tránh đồng nhất các chức năng sử dụng trong nhà ở với môi trường. Luôn có sự phân biệt rạch ròi giữa các không gian bên trong và bên ngoài vì quan điểm chung của người dân là ngại tiếp xúc trực tiếp với môi trường tự nhiên. Sự an toàn về cách sử dụng không gian của những ngôi nhà địa phương còn thể hiện rõ về thời gian sinh hoạt trong ngày. Phần lớn người dân sinh hoạt trong nhà và ra ngoài khi thời tiết đã dễ chịu, lúc chiều tối khi mặt trời đã lặn.300 là số ngày nắng trung bình trong năm, nghĩa là người Phan Rang sẽ quan sát mặt trời nhiều hơn những nơi khác. Là vùng có nhiệt độ cao nhưng không khí thì trong lành và bầu trời thường xanh hơn, ánh sáng vì thế sẽ sắc nét và chân thực nhất.Trong sự hình dung ban đầu của nhóm KTS, các không gian sống luôn được bao quanh bởi không gian chuyển tiếp. Vùng không gian này được xem là lớp trung gian giữa bên trong với bên ngoài môi trường. Vùng này cần rộng và lớn hơn để có thể cảm nhận rõ ràng, linh động về nhu cầu sử dụng. Vùng không gian chuyển tiếp không rõ ràng, đôi khi thuộc bên ngoài, đôi khi thuộc bên trong nhưng điểm chung là chúng không có chức năng cụ thể và luôn có ánh sáng cũng như thông gió tự nhiên. Không khí đi qua không gian này sẽ mát hơn khi có cây xanh và mặt nước hỗ trợ, giảm thiếu tiếng ồn và bụi từ đường phố. Con người sống trong vùng không gian này sẽ tiếp xúc nhiều hơn với ánh sáng và không khí tự nhiên.Xem thêm hình ảnh:XEM THÊM:
Phan Rang 住宅区的气候适应性设计-1
Phan Rang 住宅区的气候适应性设计-2
Phan Rang 住宅区的气候适应性设计-3
Phan Rang 住宅区的气候适应性设计-4
Phan Rang 住宅区的气候适应性设计-5
Phan Rang 住宅区的气候适应性设计-6
Phan Rang 住宅区的气候适应性设计-7
Phan Rang 住宅区的气候适应性设计-8
Phan Rang 住宅区的气候适应性设计-9
Phan Rang 住宅区的气候适应性设计-10
Phan Rang 住宅区的气候适应性设计-11
Phan Rang 住宅区的气候适应性设计-12
Phan Rang 住宅区的气候适应性设计-13
Phan Rang 住宅区的气候适应性设计-14
Phan Rang 住宅区的气候适应性设计-15
Phan Rang 住宅区的气候适应性设计-16
Phan Rang 住宅区的气候适应性设计-17
Phan Rang 住宅区的气候适应性设计-18
Phan Rang 住宅区的气候适应性设计-19
Phan Rang 住宅区的气候适应性设计-20
Phan Rang 住宅区的气候适应性设计-21
Phan Rang 住宅区的气候适应性设计-22
Phan Rang 住宅区的气候适应性设计-23
Phan Rang 住宅区的气候适应性设计-24
Phan Rang 住宅区的气候适应性设计-25
Phan Rang 住宅区的气候适应性设计-26
Phan Rang 住宅区的气候适应性设计-27
Phan Rang 住宅区的气候适应性设计-28
Phan Rang 住宅区的气候适应性设计-29
Phan Rang 住宅区的气候适应性设计-30
Phan Rang 住宅区的气候适应性设计-31
Phan Rang 住宅区的气候适应性设计-32
Phan Rang 住宅区的气候适应性设计-33
Phan Rang 住宅区的气候适应性设计-34
Phan Rang 住宅区的气候适应性设计-35
Phan Rang 住宅区的气候适应性设计-36
Phan Rang 住宅区的气候适应性设计-37
Phan Rang 住宅区的气候适应性设计-38
Phan Rang 住宅区的气候适应性设计-39
Phan Rang 住宅区的气候适应性设计-40
Phan Rang 住宅区的气候适应性设计-41
Phan Rang 住宅区的气候适应性设计-42
Phan Rang 住宅区的气候适应性设计-43
Phan Rang 住宅区的气候适应性设计-44
Phan Rang 住宅区的气候适应性设计-45
Phan Rang 住宅区的气候适应性设计-46
Phan Rang 住宅区的气候适应性设计-47
Phan Rang 住宅区的气候适应性设计-48
Phan Rang 住宅区的气候适应性设计-49
Phan Rang 住宅区的气候适应性设计-50
Phan Rang 住宅区的气候适应性设计-51
Phan Rang 住宅区的气候适应性设计-52
Phan Rang 住宅区的气候适应性设计-53
Phan Rang 住宅区的气候适应性设计-54
Phan Rang 住宅区的气候适应性设计-55
Phan Rang 住宅区的气候适应性设计-56
Phan Rang 住宅区的气候适应性设计-57
Phan Rang 住宅区的气候适应性设计-58
南京喵熊网络科技有限公司 苏ICP备18050492号-4知末 © 2018—2020 . All photos and trademark graphics are copyrighted by their owners.增值电信业务经营许可证(ICP)苏B2-20201444苏公网安备 32011302321234号
客服
消息
收藏
下载
最近