查看完整案例

收藏

下载

翻译
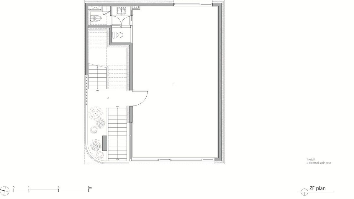
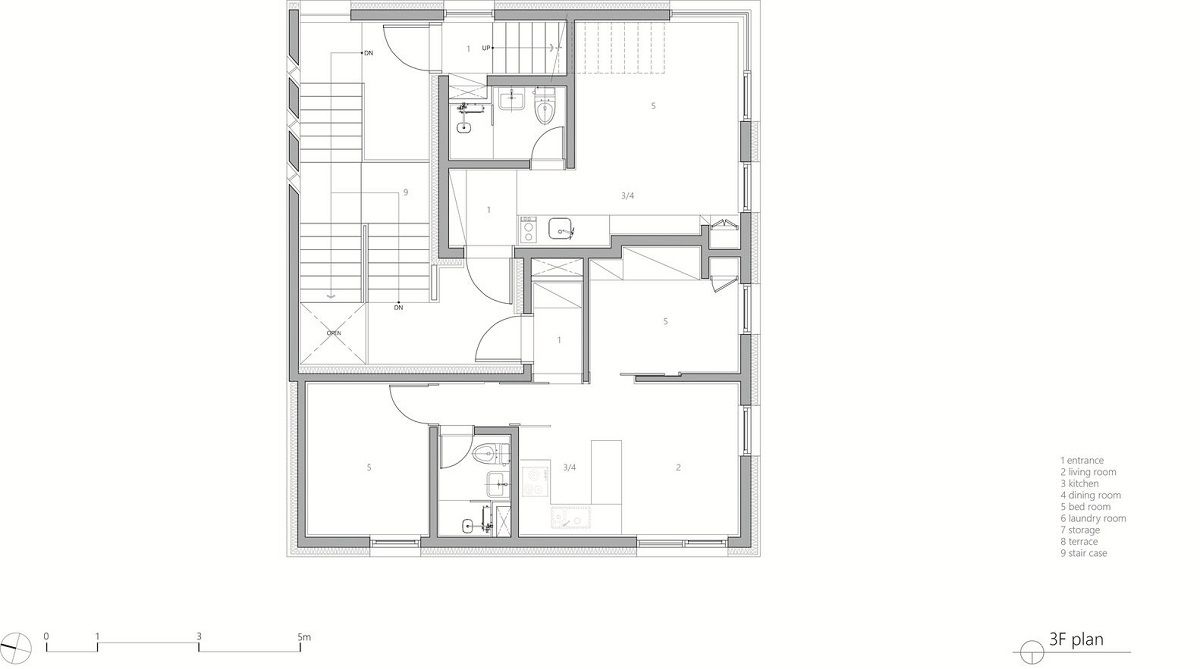
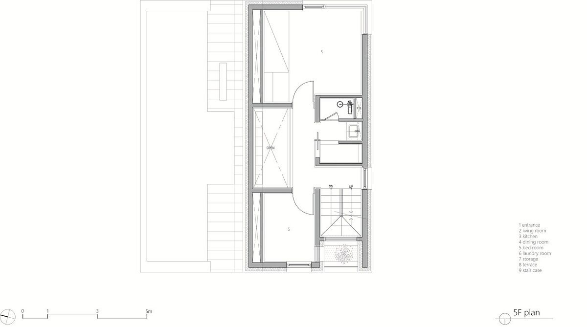
Lee Lee Heon gây ấn tưởng bởi hình ảnh một tòa nhà độc đáo nhiều góc mở trong con phố nhỏ cùng với khu vườn đứng tái hiện lại những căn nhà vườn gần gũi với thiên nhiên.Ngôi nhà với những góc mở– Lee Lee Heon có vị trí tại một con phố nhỏ, gần đường lớn. Đây là ngôi nhà phức hợp với tầng dưới là các không gian thương mại cho thuê và tầng trên là không gian ở. Các góc của công trình đều là các diện kính mở nên khách qua đường có thể dễ dàng nhìn thấy không gian cho thuê bên trong nằm ở tầng một và tầng hai. Các góc mở lớn được bố trí ở phía con hẻm, nơi các tòa chung cư với hình thức tương đồng, được xây dựng vào những năm 1990 nằm đối mặt với nhau. Việc tạo ra một cầu thang ở góc của công trình có tác dụng liên kết trục thị giác từ con đường chính tới các tuyến dẫn lên không gian thương mại trên tầng hai.Không gian mở rộng của con hẻm– Một căn hộ nhỏ trong tòa nhà ít tầng là dạng nhà ở tiết kiệm kinh tế và linh hoạt trong khi chúng bao gồm đầy đủ các đặc tính của cuộc sống cá nhân trong khu đô thị đắt đỏ. Lee Lee Heon gồm ba dạng nhà biệt thự khác nhau được liên kết theo trục đứng. Con hẻm được liên kết với các phần khác nhau của cầu thang khiến ta liên tưởng tới cách mà mọi người đi vào các căn nhà nhiều thế hệ ở khu vực hiện trạng. Cách tiếp cận này đảm bảo tính riêng tư và lối đi riêng biệt vào mỗi căn nhà.Ngôi vườn trên không– Khi những căn nhà vườn ở thành phố biến mất, khung cảnh những thị trấn xanh với khu vườn và hàng rào cũng không còn. Lee Lee Heon được thiết kế với mục đích tái hiện lại hình ảnh đó qua khu vườn đứng. Cầu thang kết nối các tòa nhà theo trục đứng được bố trí ở bên ngoài, nhờ đó ánh sáng và gió có thể tràn vào toàn bộ công trình, các mảnh vườn ngoài ban công được bố trí dọc công trình. Không gian công cộng được kết nối với khu vườn trở thành góc không gian xanh dọc con hẻm.Xem thêm hình ảnh công trình:Biên dịch | Ngọc Ánh (Nguồn: Archdaily)XEM THÊM:
客服
消息
收藏
下载
最近



































