查看完整案例

收藏

下载

翻译
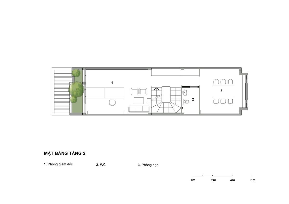
Văn phòng kiến trúc là nơi làm việc của các KTS, ngoài yếu tố về nhu cầu không gian chức năng đủ để cho các KTS có một nơi làm việc thoải mái thì mong muốn khơi dậy đời sống thực, đề cao tính tự nhiên vốn có cho công trình là điều KTS quan tâm.Thuyết minh của KTSCông trình là dự án cải tạo từ một nhà lô phố 4 tầng xây thô chưa trát, được hoàn thiện mặt đứng đã bỏ trống lâu ngày. Căn nhà nằm trong khu đô thị Văn Phú, một khu phố khá văn minh, yên tĩnh, ít xe cộ và tiếng ồn nên rất phù hợp để chuyển đổi thành môi trường làm việc của các KTS.Xét thấy nhu cầu phù hợp với những gì đang hiện hữu của căn nhà cùng với điều kiện hợp đồng thuê ngắn hạn 3-5 năm, các KTS tìm giải pháp đầu tư cải tạo với một khoản kinh phí phù hợp, tiết kiệm mà hiệu quả nhất.Việc giữ lại phần nhiều 70-80% hiện trạng của ngôi nhà nhằm mục đích để các KTS tập trung chuyển đổi không gian chức năng. Ở tầng 1, không gian chức năng của căn nhà theo hiện trạng là phòng khách và phòng ăn, toàn bộ không gian tầng 1 này được chuyển đổi thành không gian làm việc chính. Lên tầng 2, 3 toàn bộ phòng ngủ của căn nhà theo hiện trạng được chuyển đổi thành các không gian chức năng phụ trợ cần thiết cho một văn phòng thiết kế.Cùng theo chân KTS, trước khi bước vào không gian làm việc của văn phòng thiết kế, tại vị trí mặt tiền là một khoảng không gian đệm có bố trí bàn ghế như một góc đón tiếp cho các vị khách nghỉ chờ, hoặc là nơi nhẹ nhàng thông thoáng cho các KTS ngoài giờ làm việc có thể thư giãn uống trà, đàm đạo về công việc và cuộc sống.Ấn tượng ngay từ những bước chân đầu tiên là những bậc tam cấp, những mảng tường gạch đỏ không trát, kết hợp một vài mảng tường bê tông thô mộc cùng góc bàn trà dung dị dưới tán cây khế rất gần gũi mang vị quê hương. Từ vật liệu, màu sắc cho đến không gian tất cả những điều đó được KTS sử dụng thủ pháp “sắp đặt mà không sắp đặt” để trả lại tính tự nhiên cho không gian.Khi bước chân vào bên trong, ngay tại tầng trệt là không gian chức năng quan trọng của một văn phòng kiến trúc. Các KTS thiết kế không gian làm việc đủ cho 15 đến 20 nhân sự. Bao gồm 1 phòng concept (lên ý tưởng, cắt mô hình) và 1 không gian dành cho phòng kỹ thuật (triển khai bản vẽ 2D, 3D).Vẫn là những vật liệu quen thuộc được sử dụng xuyên suốt trong ngôn ngữ thiết kế của KTS, đặc biệt với thủ pháp đặt một khối đường cong mềm mại vào giữa tâm bên trong một cái hộp. Và trong cái hộp đó 4 diện xung quanh là bốn bức tường gạch xây đỏ mộc không trát, 2 diện còn lại là trần và sàn được giữ nguyên hiện trạng là trần bê tông thô cứng. Việc làm như vậy đã rất hiệu quả khi khối thang xoáy được sơn màu vàng đã trở thành một điểm rực sáng, vừa có công năng phân chia không gian mở, lại cân bằng được bố cục về hình khối, đường nét, màu sắc, vật liệu trong thiết kế.Thông qua sự đối lập trong thủ pháp thiết kế, KTS còn gửi gắm vào không gian một thông điệp trong phép ẩn dụ về tính chất nghề của người KTS. Tính kỹ thuật chính xác là yếu tố đầu tiên được nhắc đến và nó được hiển lộ thông qua ngôn ngữ của chiếc hộp 6 diện với tường, trần, sàn, được sử dụng vật liệu gạch thô mộc và bê tông rắn chắc. Còn hiện thân cho “cái đẹp” trong nghệ thuật của nghề chính là khối thang vàng màu vàng đầy sinh khí, mềm mại và uyển chuyển. Hình ảnh khối thang chính là “trái tim”, cảm xúc, dẫn lối lửa đam mê của KTS, cảm xúc ấy chi phối và bao trùm toàn bộ lên vật chất, tinh thần của công trình. Điều này như nhắc các KTS phải thường tôi rèn tính kỷ luật bên trong tâm hồn “nghệ sỹ”, đó là yêu tố cần có để một KTS có thể làm tốt nghề.Ở Sàn tầng 2, KTS bố trí không gian làm việc cho phòng kinh doanh kết hợp phòng họp nhỏ và một phòng làm việc kết hợp tiếp khách riêng của giám đốc. Lên tầng 3 là không gian nghỉ ngơi, thư giãn và ăn uống cho KTS sau mỗi giờ làm việc căng thẳng. Tất cả các không gian được KTS thiết kế theo lối tối giản, sạch sẽ, sử dụng đồ đạc nội thất văn phòng tương đối gọn gàng, với cách làm như vậy các KTS đã giải được bài toán tối ưu về chi phí đầu tư mà vẫn đáp ứng được các tiêu chí về không gian chức năng tương đối đủ, thoải mái cho một văn phòng thiết kế có quy mô vừa và nhỏ.Toàn bộ môi trường làm việc cũng như nghỉ ngơi của KTS đều được bố trí các cửa sổ, khoảng trống phía sau kết hợp với không gian hiên phía trước để tạo ra sự đối lưu gió và khí tươi, cùng với ánh sáng tự nhiên dịu nhẹ hắt vào đã tạo nên sự thông lưu, điều hòa cho toàn bộ công trình.XEM THÊM:
客服
消息
收藏
下载
最近















