查看完整案例

收藏

下载

翻译
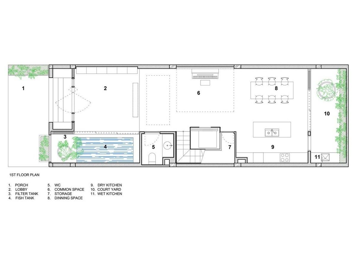
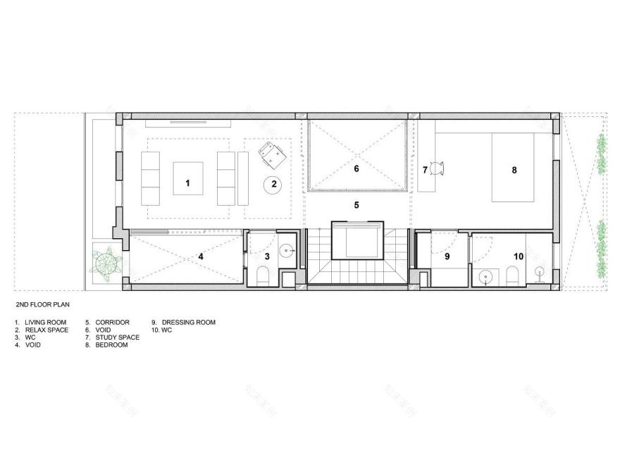
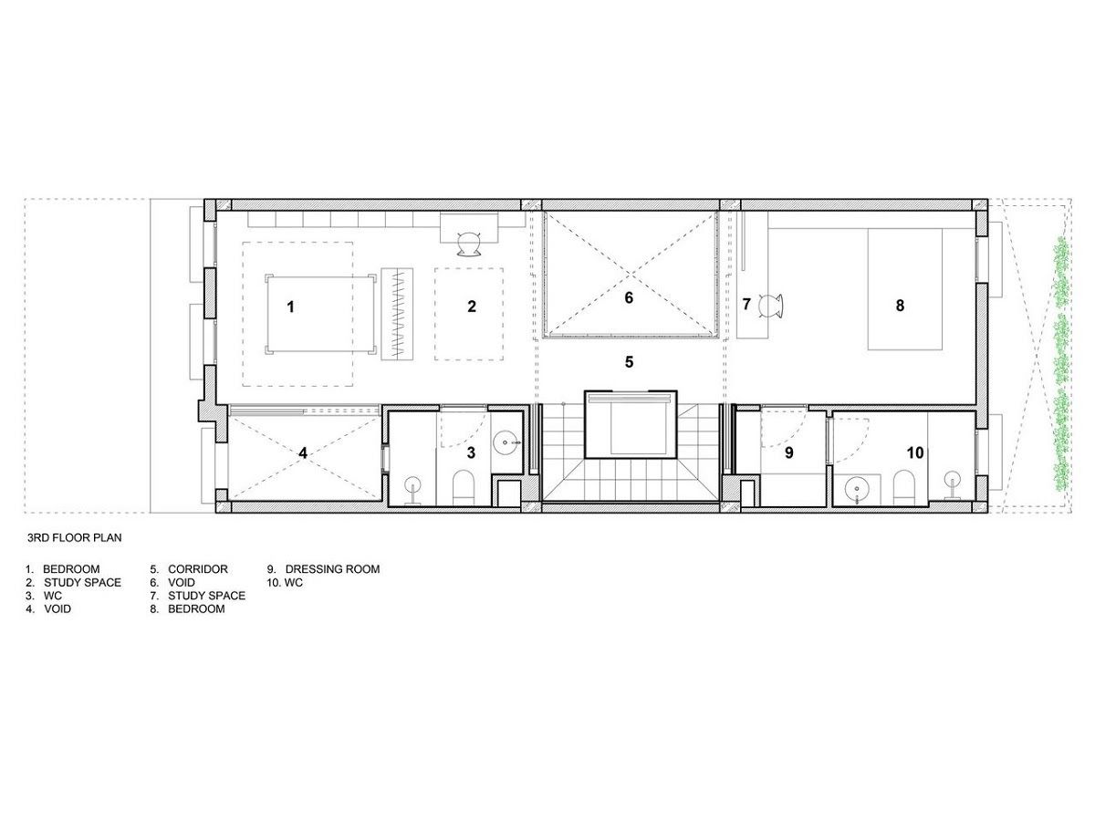
LK12 house là một căn nhà ống liền kề quen thuộc, nằm trong khu đô thị mới Nam Trung Yên, Hà Nội. Công trình đáp ứng được một trong những yêu cầu phổ biến của các gia đinh hiện đại, đó là hình thành những không gian đủ riêng tư cho mỗi cá nhân, đồng thời vẫn đảm bảo sự gắn kết giữa các thành viên trong gia đình.Ngôi nhà đã được xây thô theo dự án và một gia đình năm người dự định sẽ đến sinh sống ở đây. Yêu cầu đối với chúng tôi là ngoài những không gian sinh hoạt chung, ngôi nhà phải có 5 phòng ngủ riêng biệt, đầy đủ tiện nghi cho cả bố, mẹ và ba người con. Điều đặc biệt là mỗi thành viên đều muốn sống trong thế giới của riêng mình, nhưng đồng thời họ không muốn đánh mất đi sự kết nối của một tổ ấm.Chúng tôi cấu trúc lại không gian của ngôi nhà và phân định hai tuyến không gian phát triển theo chiều dài nhà. Phần thứ nhất bao gồm các không gian phụ trợ như: thang bộ, thang máy, phòng thay đồ và vệ sinh; phần thứ hai là các không gian chính: phòng khách, bếp ăn và các phòng ngủ.Ba khoảng thông tầng được sắp xếp một cách khéo léo, mang đến ánh sáng và thông gió tự nhiên vào tất cả các không gian trong nhà. Tầng một được mở rộng hoàn toàn, nơi gia đình chia sẻ không gian bếp và ăn, cùng với những khoảng trống dành cho các bạn nhỏ chạy nhảy, vui chơi.Từ tầng hai trở lên, các không gian được phân định riêng biệt, theo các công năng cụ thể. 5 phòng ngủ được xếp đặt tại đây và nằm về hai phía của ngôi nhà. Mỗi phòng được tổ chức độc lập với chức năng phức hợp như không gian ngủ, không gian làm việc – học tập, phòng thay đồ, phòng vệ sinh và giếng trời. Trong khi hai không gian giếng trời tại hai đầu nhà có chức năng thông thoáng và tạo điểm nhìn thú vị thì không gian giếng trời ở giữa còn mang nhiệm vụ kết nối.Sự kết nối giữa các thành viên từ các phòng ngủ thông qua khoảng không này theo cả phương ngang lẫn phương đứng. Sự tương tác sẽ tùy cấp độ ít hay nhiều theo mong muốn của người sử dụng, thông qua một hệ thống ba lớp: “rèm – cửa kính trượt – hệ nan thép”. Đây là sự tổ hợp của ba phần tử kiến trúc tinh tế và linh hoạt mà chúng tôi đã thay thế cho những bức tường ngăn chia thường gặp. Cũng chính nhờ hệ thống ba lớp này mà các không gian trong nhà đa dạng và thú vị hơn.Vật liệu và màu sắc trong công trình cũng được tính toán theo ý đồ tổng thể chung về cấu trúc không gian. Một mặt, nó tạo nên cá tính riêng cho nội thất ngôi nhà, mặt khác chúng tạo nên sự đa dạng cảm xúc cho người sử dụng.Hầu hết các đồ nội thất được chúng tôi thiết kế. Đặc biệt đồ nội thất của các buồng ngủ được tính toán để phù hợp với từng thành viên. Chính chúng cấu trúc nên các “tiểu” không gian thích ứng với từng chức năng sử dụng. Đây là một tổ hợp liên hoàn các đồ vật được bố cục với nhau, vừa tiện dụng về mặt công năng, vừa mang tính thẩm mỹ cao, đồng thời tối ưu về mặt diện tích. Bố cục của các chức năng sử dụng cũng được thiết kế một cách khéo léo để thích ứng cho sự kết nối hay riêng tư.Với một xã hội Việt Nam ngày càng hiện đại hơn, việc tổ chức không gian sống trong một ngôi nhà nơi “Đâu là ranh giới giữa riêng tư và kết nối?” – sẽ là một trong những câu hỏi trọng tâm của thiết kế!Xem thêm hình ảnh công trình:XEM THÊM:
客服
消息
收藏
下载
最近































