查看完整案例

收藏

下载

翻译
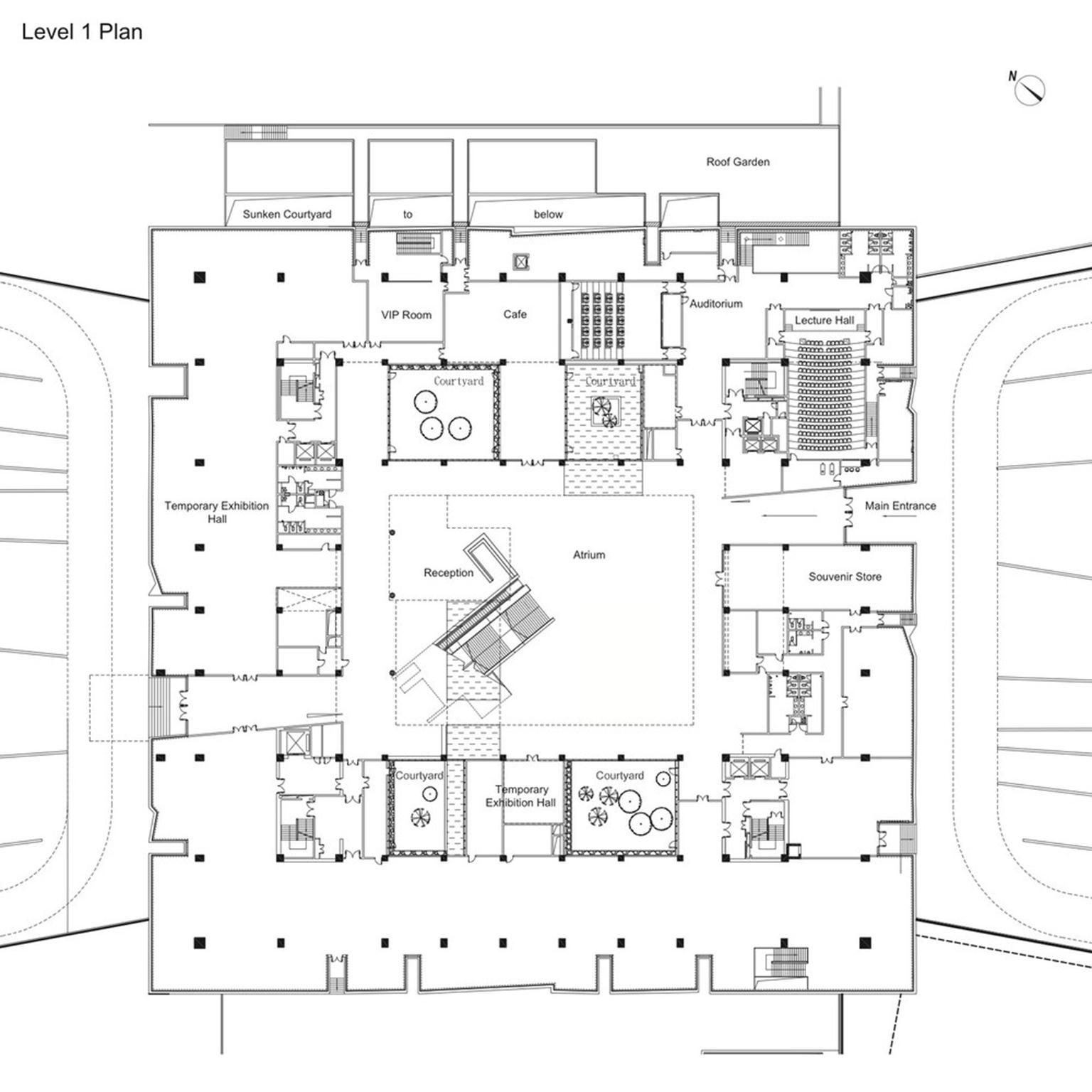
Rocco Yim – nhà sáng lập củaRocco Design Architectsthường nói rằng “Kiến trúc cần một cái nhìn mang tính biểu tượng”, và trong công trình mới hoàn thành gần đây – Bảo tàng Vân Nam – điều này thêm một lần nữa được minh chứng sắc nét.Thiết kế:Rocco Design ArchitectsĐịa điểm:Bảo tàng Vân Nam, 118 Wu Yi Lu, Ngũ Hoa, Côn Minh, tỉnh Vân Nam, Trung Quốc, 650021Nhóm thiết kế:Rocco Yim, William Tam, Derrick Tsang, Martin Fung, Lucia Cheung, Gilles Chan, Benjamin Chan, Ricky WangDự án năm:2015Ảnh©WENMING CHU – Rocco Design LimitedQuản lý dự án:Yunnan Provincial Museum Project Management OfficeKết cấu – Cơ điện:Shenzhen General Institute of Architectural Design and ResearchCảnh quan:Rocco Design ArchitectsDự án Bảo tàng Vân Nam do Rocco Design Architects thiết kế mới đây đã hoàn thành, công trình với ý tưởng xuất phát từ hình ảnh những “rừng đá” nổi tiếng của Vân Nam. Bảo tàng Vân Nam hoàn thành sau 4 năm xây dựng, mở cửa vào tháng 5 năm 2014. Các Kiến trúc sư tới từRocco Design Architectsđã khai thác vẻ đẹp điêu khắc tự nhiên của địa chất sau hàng thiên niên kỷ biến đổi. Những khối hộp màu nâu đỏ được xếp chồng lên nhau tượng trưng cho sự nâng niu, trân trọng di sản thiên nhiên nơi đây, chúng như những báu vật dễ vỡ cần được bảo vệ.Du khách tham quan bảo tàng được trải nghiệm ngay từ khi đặt chân vào, tiếp cận bằng mội lối đi hẹp, thiết kế tạo cho du khách cảm giác như đang bước chân len vào khu rừng đá trước khi chiêm nghiệm không gian rộng mở của khu sảnh trung tâm. Ở mặt tiền, các “vết cắt” bao quanh cấu trúc, mang đến sự chuyển tiếp giữa không gian bảo tàng và thành phố.Khu đất dành cho bảo tàng nằm trong một khu vực phát triển mới của thành phố Côn Minh. Nó nằm liền kề với một dòng sông, một con đường và một nghệ thuật mới và trung tâm văn hóa mới với những bối cảnh không cụ thể. Mặt sau công trình là những đường dạo công cộng với một công viên điêu khắc Tổng diện tích sàn của bảo tàng khoảng 60,000 m2‑. Tổng chiều cao của công trình là 34,2 m2, với 2 tầng ngầm dành cho hạ tầng, phụ trợ và 5 tầng trên mặt đất dành cho các không gian trưng bày và triển lãm.Thiết kế nhấn mạnh vào sự trải nghiệm và khám phá, con người phát hiện ra “cái đã mất”, có khoảnh khắc họ như bước vào một không gian mà tại đó có được thay đổi về thời gian. Hơn nữa Photo-voltaic -voltaic được tích hợp trong công trìnhcho phép tiêu thụ năng lượng tối thiểu vào việc chiếu sáng và điều hòa nhiệt độ.Xem tất cả ảnh trong bài tại đây:Biên dịch:KTS Thái Linh(Dịch từ archdaily)(STUDIO102 hân hạnh tài trợ bài viết này)
客服
消息
收藏
下载
最近

















