查看完整案例

收藏

下载

翻译
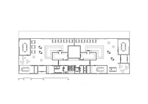
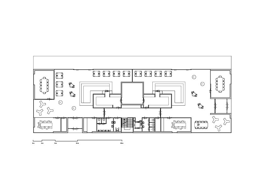
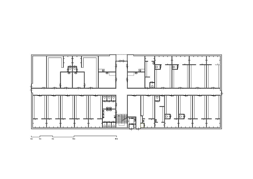
Kienviet.net – MoederscheimMoonen Architects mới đây đã giới thiệu về dự án của họ, một pavillion thể thao mới cho hai câu lạc bộ bóng đá ở Rotterdam, Hà Lan. Dự án này là một phần của sự phát triển của công 16Hoven, một khu ngoại ô liền kề với trung tâm thành phố và sân bay mới.Kiến trúc sư:MoederscheimMoonen ArchitectsĐịa điểm:Rotterdam,The NetherlandsChủ trì thiết kế:Erik MoederscheimNhóm thực hiện:Erik Moederscheim, Ruud Moonen, Jelle RinsemaKỹ sư:Bureau BouwkundeKết cấu:IBT BouwtechniekGeneral Contractor:Batenburg BVKhách hàng:Municipality of RotterdamDiện tích sàn:1,410 m2Ảnh:Rob ‘t HartCông trình gồm 2 tầng, các câu lạc bộ và phòng họp nằm ở tầng trên. Tầng này kết nối trực tiếp với một sân cỏ thoải, sân này đồng thời là lớp vỏ bọc cho tầng 1, là nơi bố trí các phòng thay đồ, khu lưu trữ và là một khán đài tự nhiên cho các giả ngồi theo dõi.Công trình độc đáo với mái nhà dạng thanh rung, mờ, có chức năng lọc ánh nắng mặt trời trực tiếp vào ban ngày, khuếch tán ánh sáng từ đèn LED bên trong công trình vào ban đêm. Được biết đây là công trình mang tính biểu tượng mới trong tổng thể công viên 16Hoven.
客服
消息
收藏
下载
最近

















