查看完整案例


收藏

下载

翻译
In designing the Beijing Sanhe Daoxiangcun pastry shop, we pursued the idea of injecting modern elements into the century-old brand to create a more elaborate and stylish look that would cater to the aesthetic needs of young consumers in the new era. We aimed to showcase the cultural and historical connotations of the Daoxiangcun pastry brand and combine them with international design trends, thus injecting new vitality into this century-old brand.
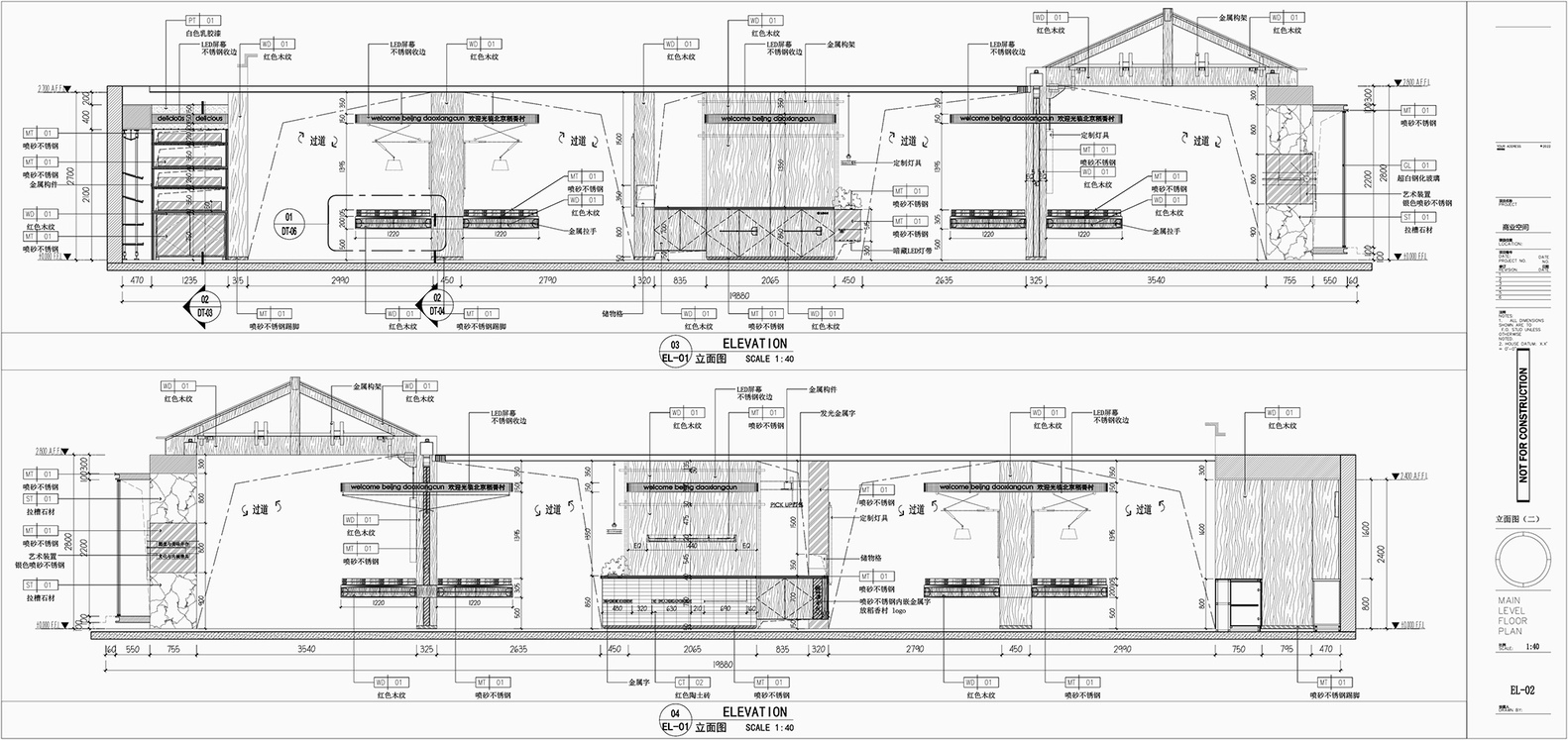
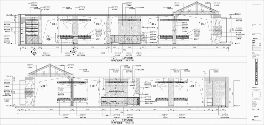
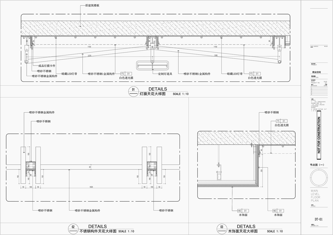
The shop space in Nanluogu Lane, Beijing, was originally an old house with historical significance, and we have carried out a series of innovations and reorganizations while preserving its original framework. By removing the original enclosed roof and using modern steel structural components for support, our design makes guests feel like they are traveling back in time as they enter the store. To present a design more aligned with contemporary perspectives, we deconstructed, dismantled, and recombined traditional elements and decorated them with modern metal components. By colliding the new installation materials with the wooden and tile materials of the old building, the visual tension we created in the space will allow the public to explore the shop that combines tradition and modernity comprehensively.
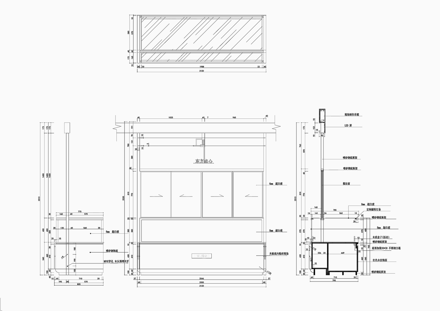
To serve the purpose of modern consumer habits, we designed display spaces at the storefront and equipped them with modern sign systems. In addition, we paid attention to the store’s graphic sign system, which demonstrates the unique personality and magnetism of the Daoxiangcun brand by extracting elements from Daoxiangcun's old pastry packaging and applying them to the display shelves and selling space.
Our design philosophy combines international trends with traditional culture to make the Daoxiangcun brand more international and appealing. The aim is to make the Daoxiangcun brand more international and appealing. By incorporating modern elements and innovative spatial arrangements into the design, we have created a pastry shop that harmoniously blends tradition and modernity, delivering a unique brand experience to customers.
客服
消息
收藏
下载
最近







































