查看完整案例

收藏

下载

翻译
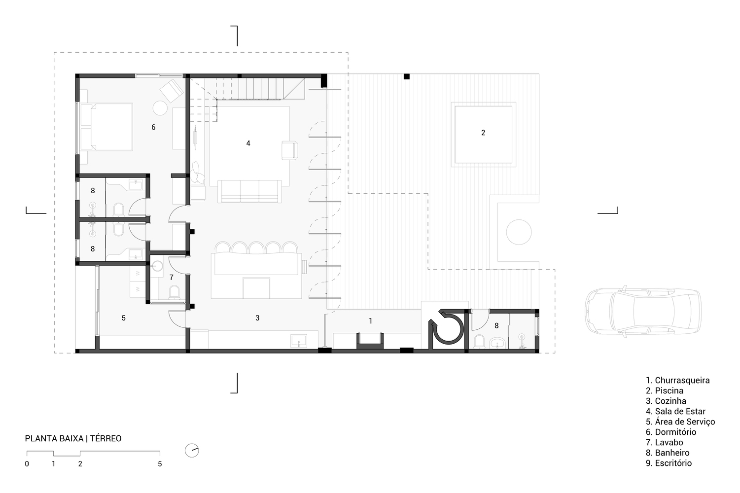
The “Casa Abacateiro” emerges from the desire of a couple to create a spacious and welcoming environment to host their family, where the boundaries between interior and exterior, house and garden, seamlessly merge, providing a sense of connectivity and spaciousness. With this proposal in mind, the house is divided into two distinct blocks.
The Southwest block houses the bedrooms, bathrooms, and service area. It is more reserved and solid, composed of two levels and structured in concrete. On the other hand, the Northeast social block is more expansive and defined by a robust structure made from reclaimed wood, whose marks tell a story. This structure rests upon two metal beams, allowing for the creation of a wide opening to the external space.
Throughout the entire house, a sequence of garden-covered roofs at different heights is part of the adopted bioclimatic strategy, allowing for control over natural light and ventilation, contributing to passive climate control. During the summer, these roofs provide shade to the interior spaces, while in the winter, they allow direct sunlight into strategic points through openings between the roofs and translucent roof planes that use bamboo as a solar filter. The tall openings between these planes also enable ventilation and cooling control during the summer, utilizing the chimney effect.
The rooftop gardens offer various benefits, such as increased thermal inertia and reduction of the urban heat island effect, while also creating a pathway through the gardens that leads us to the highest point of the house, allowing glimpses of the sea.
Separating the two blocks, a large wall made of raw earth constructed using the artisanal and ancestral technique of "wattle and daub" brings the warm sensation of the earth, establishing a dialogue with the sturdy woods and natural stone baseboards. Furthermore, it contributes to the bioclimatic strategy by retaining the heat from the winter sun during the day and gradually releasing it in the late afternoon and evening, warming the rooms during colder moments. As this wall is made of raw earth, it plays a fundamental role in controlling indoor humidity, functioning like a large dehumidifier. This imposing wall has a natural earth plaster, but it reveals its composition through a "window of truth," without plaster, allowing a glimpse into its construction and materiality.
Regarding the selected materials, priority was given to those with high durability and low environmental impact, such as reclaimed wood, carefully chosen for each space and function, " wattle and daub” walls, and natural coverings, including lime paint produced on-site. In addition to these materials, iron also stands out, used strategically in the two large beams supporting the wide span and in the railings, while cement is used for floor finishes and kitchen countertops. The aesthetic choice was to embrace the rawness of each material and create a harmonious interplay of different textures and colors.
客服
消息
收藏
下载
最近





























