查看完整案例


收藏

下载

翻译
Located on the edge of Newham’s Wanstead Flats, Forest Houses sees the transformation of a former builder’s yard into three new-build homes - including one 3-bedroom family house and two smaller 2-bedroom houses. The scheme also comprises the remodeling and extension of a former end-of-terrace shop that straddles the entrance to the site, to create another 1-bed home.
The site is bounded by a row of terrace houses to the front and the parkland of the Flats to the rear. The client’s brief sought to maximize this under-used and constrained brownfield plot, and deliver a site-specific solution that can respond to and respect the neighboring properties through orientation and massing. With a number of previous planning permission failing to unlock the plot, D-P-Q used an iterative design approach to test ideas via models and dialogue with the planners, to deliver a site-specific solution that responds to nearby properties with orientation and massing.
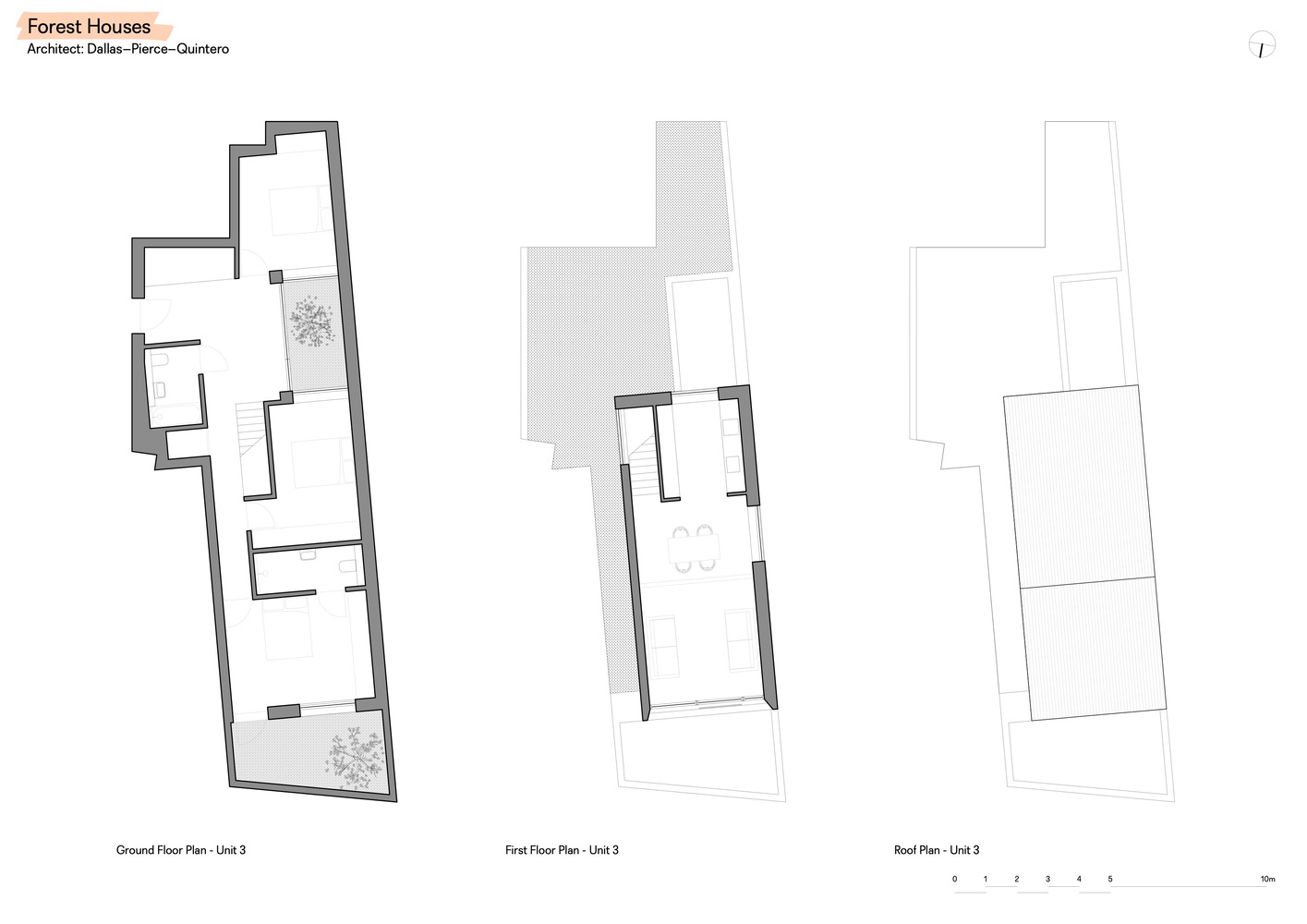
Reflecting on their practice ethos of maximizing the ‘spaces in-between’, D-P-Q developed an upside-down arrangement. At the ground floor level, all homes’ layouts interlock around lightwells and private courtyards, offering the privacy of the bedrooms with plenty of natural light, while optimizing the number of units possible on the constrained site.
The most-used living spaces are now positioned on the projecting first floor, where large windows frame stunning views over Wanstead Flats enhancing connections between inside and out. The homes are orientated north towards the Flats, to reduce overlooking of neighbors and feature a distinct sawtooth roof – sensitively designed to mirror the height of the eaves of the adjacent homes. From the outside, the glazing reflects the natural surroundings, rooting the scheme in its context.
To develop a contextual architectural language, the material palette draws on the site’s history as a builder’s yard, and the traditional masonry of the terraces. All materials were responsibly sourced and chosen for their longevity, recycling capabilities, and wide-spread availability.
Brick wraps around the ground floor to create a plinth-like appearance, before continuing to form the plot’s boundary walls. The first-floor volumes are constructed from pre-made, cross-laminated timber panels, marking a fusion of traditional and modern construction methods to create a series of truly sustainable and efficient-to-run homes. This approach established a sustainable, efficient, and financially viable delivery program for the client, who took on the role of contractor for the first time in this project.
Once the brickwork was completed, the timber elements were assembled in less than 5 days, before being clad in galvanized metal to create a highly textured and unified external envelope that flows between the walls and the roofs. Within, structural elements are left undressed in an honest, unfinished approach. White, exposed blockwork is complemented by a tactile cross-laminated timber structure above, building a connection with the surrounding tree canopies.
客服
消息
收藏
下载
最近









































