查看完整案例

收藏

下载

翻译
Located in the singular fishing village of
, The Capsule Cafe has converted an uncharacteristic commercial space into a restaurant with unique features, associated with a “kitchen project” concept that serve as a base for different chefs and gastronomic experiences.
The project's starting point was the identity characteristics of the surroundings, with special emphasis on the chromatic palette - the blue and white, dominant in most of the buildings’ facades, the sky, the clouds and the Atlantic, reinterpreting them and endowing the space with the desired contemporaneity and expressiveness.
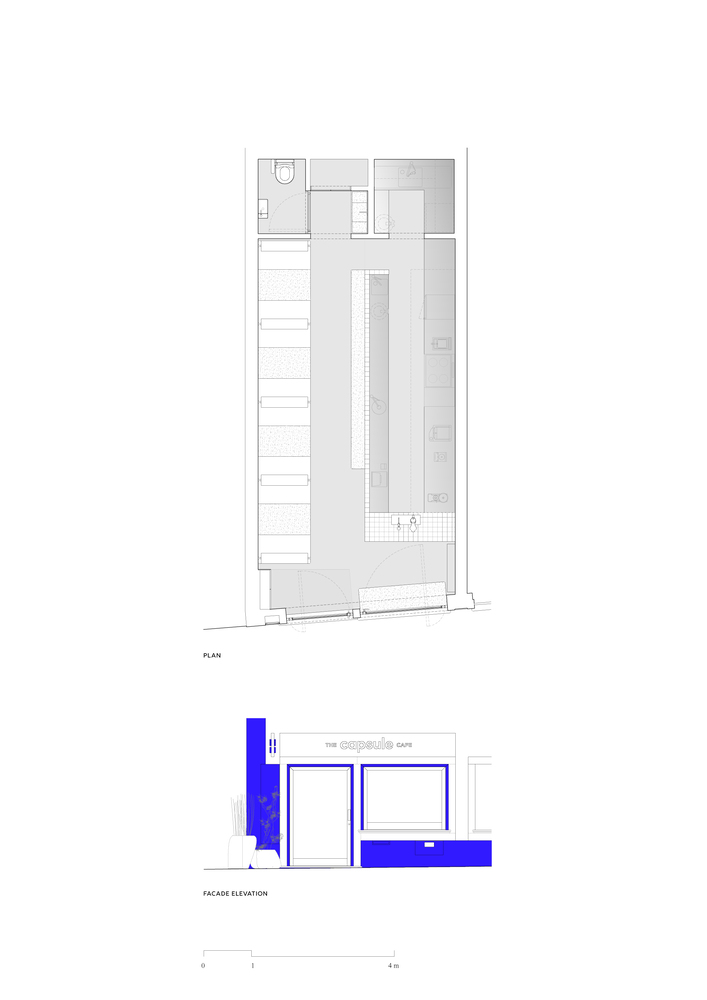
In the conception of this small cafe and restaurant, informality and the desired relaxed atmosphere contrast with the rigor of the design. A closed attention was paid to all details, textures and finishings, furniture, lighting and technical requirement. With a reduced storefront facing a single street, the facade intervention consisted in the introduction of two pivoting window spans, of large dimensions, which invite one to enter the space. A sign and a luminous flag were also designed to announce The Capsule Cafe.
The interior space was designed like a “diner” with a narrow and elongated floorplan, highlighting the sit-down counter with direct service from an open kitchen on one side and the tables and sofas on the other. At the counter facing the entrance lays the exquisite coffee machine and three prime seats by the window. Hidden behind a blue curtain, the technical areas and toilets are introduced.
The surfaces - floor, walls and ceiling, are coated in a light gray tone, allowing the desired neutrality to highlight the main elements in white color - the glazed tile counter, the furniture in lacquered steel, and the blue color of the lamps, the curtain and accessories. Sofas, with their nappa-covered cushions, contrast with the recycled plastic table tops, counter and stools.
The project focused on aesthetics, materials, finishes and textures, lighting and all constructive elements, promoting a sense of comfort.
客服
消息
收藏
下载
最近
























