查看完整案例

收藏

下载

翻译
- This house is built on land with a central golf course area. The rear of the house serves as a viewpoint showcasing the garden and the lake, which are significant features of the space.
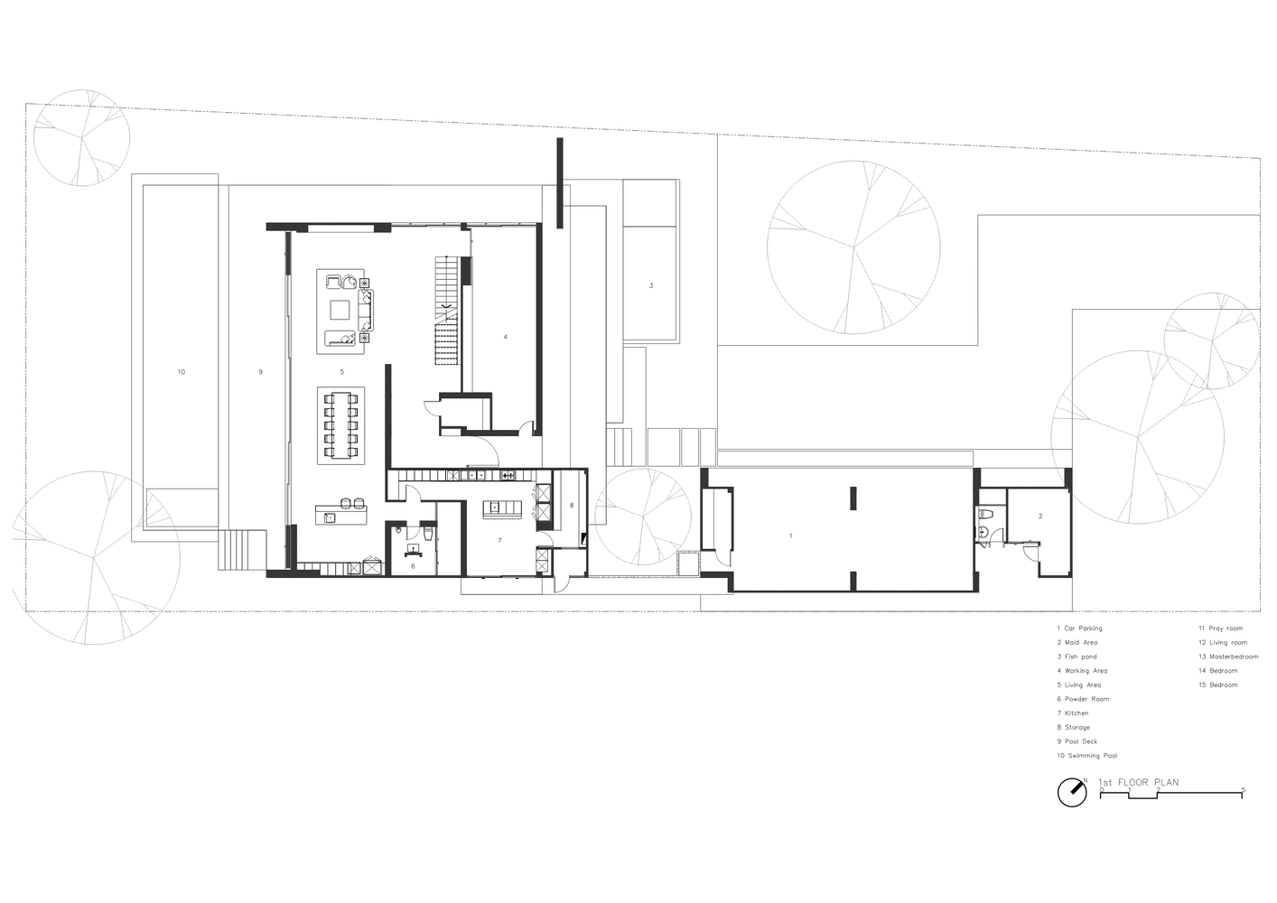
- The clear objective for this house was to maximize the usage of the rearview for the foyer and the entertainment room. The proposed design aligns the building parallel to the backyard lake, providing an expansive, unobstructed view spanning 17 meters without supporting columns. The ceiling height at a single level aligns with the eye level, enhancing the panoramic view.
The building is laid out in a spread-out fashion, optimizing the front and rear of the house to embrace the surrounding ambiance, air, greenery, and views from all sides of the building. The swimming pool is aligned parallel to the entertainment room, serving as the central pool for family gatherings and enhancing the relaxation ambiance while seated in the entertainment room, offering a continuous view of the lake, golf course, and backyard.
The exterior building design is simple. It reflects the interior functional arrangement, providing bottom box spaces in place of the entertainment room to capture the wide view towards the back of the house. The vertical wooden slats are sunshades to modernize and blend the house with a timeless look. Natural wood materials and colors are chosen to integrate with the natural context.
The interior design emphasizes connecting each function area in an open-plan concept, allowing the users to experience the panoramic space and engage with the primary view of the house. The main bedroom, frequently used, is positioned adjacent to the entertainment room, creating a continuous arrangement for optimal house views.
The primary natural material used for interior decoration is natural stone with unique patterns, imparting a luxurious and simplistic feel to avoid overwhelming decor, keeping the user focused on the main view of the house.
The building's colors are kept intentionally neutral with white, gray, and wood tones, providing warmth, simplicity, and long-term aesthetic appeal.
In other areas of the building, ground cover plants, and tall trees are strategically placed to predominantly cover the green spaces, with tall trees serving as focal points to maintain a balance with the house's overall composition.
客服
消息
收藏
下载
最近
























