查看完整案例

收藏

下载

翻译
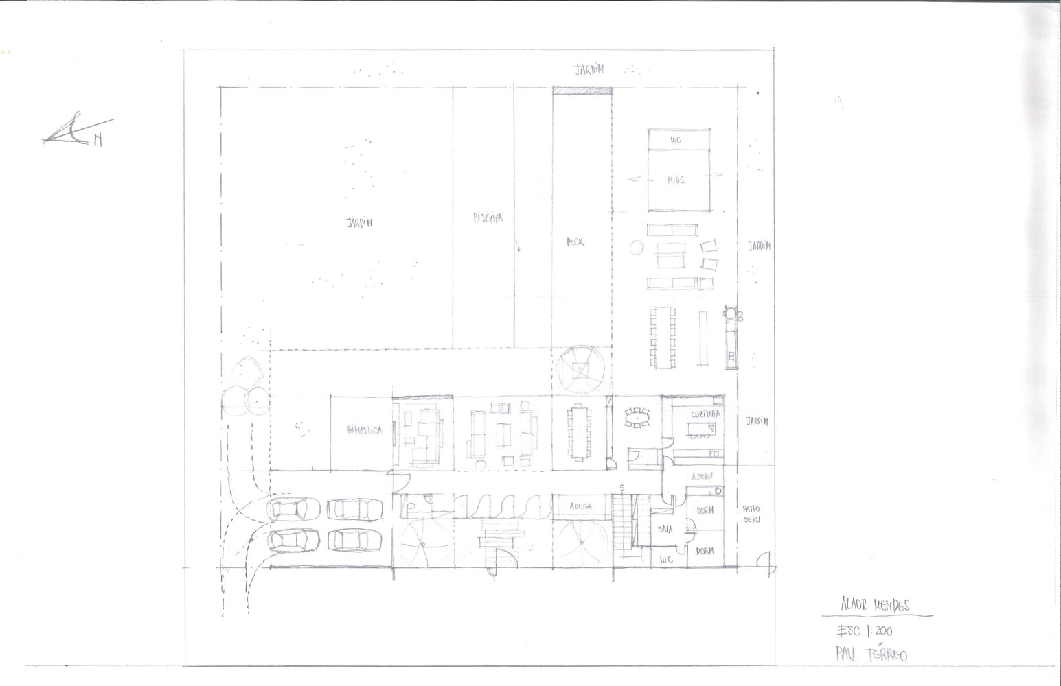
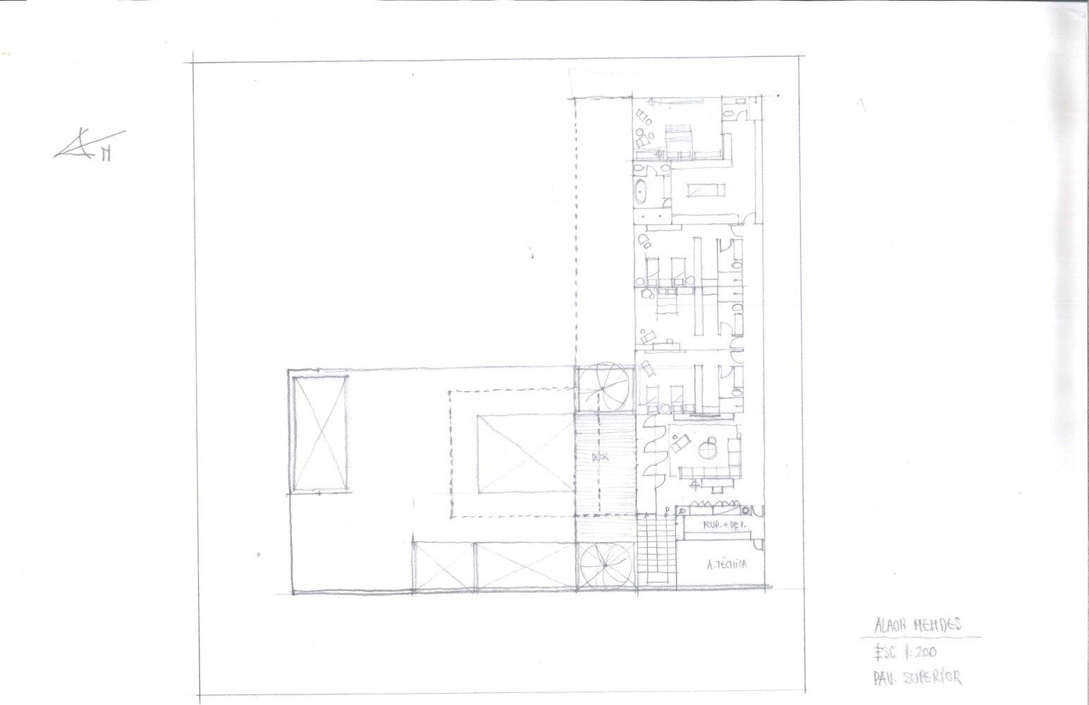
The proposal for a residence in a condominium in the city of São José dos Campos, for a young couple with small children, arose from the request for a home for life. This is the scope that Fernanda Marques' project contemplates; with almost 1400 square meters, an extensive program was designed and implemented for housing and use by the owners.
The large residence had a metallic structure, which allowed for thinner, thinner slabs, giving greater lightness to the horizontal slabs, and noble materials. One of the striking elements of the architectural project is the integration of the interiors with the exterior, the house opens onto the garden, enhancing the environment of the residential program. The entrance route is made through a garden and the intimate area is located on the upper floor, as well as the social area, on the ground floor, together with the terrace, designed to receive friends and family, privileges the conviviality with nature.
As for the program, it brings together the usual environments for a family. With the privilege of children, the toy library is related to the living area. There is also a gym area, and two home theaters, one associated with the living room and another on the upper floor. In the intimate area, the master suite faces a conservation area, and the other bedrooms overlook the pool. The elements of nature are always present in the project, whether through rips in the structure for the passage of the garden, or through views of the landscape.
客服
消息
收藏
下载
最近










































