查看完整案例


收藏

下载
■ LJID - 一影设计独家专访
儿时的记忆中,阳光总是那样的温暖而明媚。那时候,年少的我们,无忧无虑地在阳光下奔跑、嬉戏,仿佛整个世界都充满了欢乐。那些美好的时光,仿佛都被阳光温柔地收藏在我们的记忆里。
阳光见证了我们的成长,如今,我们已经长大,但那些回忆中的阳光依然在我们的心中闪耀,带给我们温暖和力量。
“太阳”成为了大多数人心中最美好的符号。它代表着温暖、快乐、希望和梦想。
01SENSE OF VACATION
度假感
这家“能晒太阳的餐厅”是一家咖啡中餐馆,设计初衷,希望为忙碌的人们打造一个融合了美食、体闲、娱乐于一体的度假感受的餐饮空间,在这里,可以尽情享受生活的美好,放下疲惫的心,找回那份久违的度假感。
P. 01
P. 02
P. 03
P. 04
P. 05
P. 06
02ISLAND CULTURE
海岛文化
整体设计风格来源于海岛文化,白色的外立面搭配蓝天白云,几何体交错而成的单体建筑,白墙搭配粗旷的石头墙面围绕起的小院落,绿荫环绕四周。
内部设计以暖色木质为主,营造出一个轻松惬意、有人情味的度假氛围餐厅。
P. 07
P. 08
P. 09
P. 10
P. 11
P. 12
• 03
MULTIPLE FUSION 多元融合
一楼设计有咖啡吧的融合,咖啡区域与整个空间的关系,可独立也可相互交融,多元化的经营模式在设计中表达呈现,非用餐的时间段在这里,顾客可以品尝各种口味的咖啡和茶饮,也可以选择一些轻食甜点作为下午茶。
透明的大窗户让阳光充足地照进室内,外面的树影与室内的木质元素相得益彰。
P. 13
P. 14
P. 15
二楼包厢的设计以舒适自在为主,大圆桌、落地窗,让客人在用餐的同时,当华灯初上,一江两岸的夜景尽收眼底。考虑到餐厅位于江边,还能够看得到国内最高的摩天轮“南昌之星” 。设计师还为之保留了一个户外区域。在这里,客人可以坐在大树旁,欣赏美丽的江景,感受大自然的清新空气。晚上,还可以举杯对饮,在品味美食的同时,也能享受到环境氛围的熏陶。
P. 16
P. 17
P. 18
P. 19
• 05
ANALYSIS
DIAGRAM
分析图
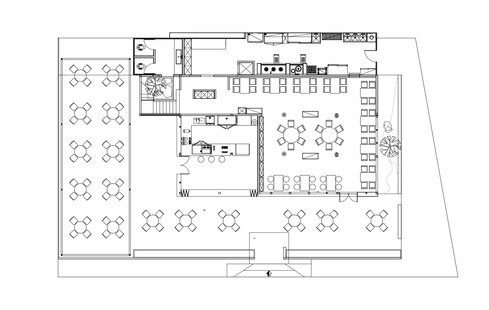
1F 平面图 P. 20
2F 平面图 P. 21
INFO
- 项目名称 -
NC2 Coffee
- 设计机构 -
杭州一影建筑设计事务所
- 主创设计 -
吴召影(三井)
- 设计团队 -
一影设计深化团队
- 项目面积 -
200㎡
- 项目地址 -
江西 南昌
- 项目摄影 -
阿盛
DESIGNER
吴召影
一影建筑设计创始人 - 设计总监
一影建筑设计事务所
位于杭州市滨江区,设计项目类型包括住宅、商业、及餐饮民宿空间。设计理念是将建筑结构的灵动性结合入室内,将自然的设计元素引入室内空间。
一影设计创始人吴召影,毕业于中国美术学院建筑艺术设计学院,师从 2017 年普利兹策奖得主西班牙 RCR 事务所,从事设计行业 10 余年。同年研修于意大利米兰理工大学、布雷拉艺术学院。曾获“中国美术学院优秀设计奖”“优秀教师奖”;中国民宿设计二等奖;安德鲁马丁室内设计奖等众多设计类奖项。
MAGNUM OPUS
一影设计 •BAOGET
一影设计 • NAASTOO
一影设计 • PUMI
一影设计 • VALLISME
一影设计 • 晓说直播间
REVIEW
LJID 首发|春秋空间设计 • 纯净启发灵感之源
LJID|森上建筑 • MAISON JOSEPH
LJID 首发|众合铂纳 • 提形取意 绚舞交织
LJID 首发|康居设计 • 纯粹的指引
LJID|太合南方 • 极简之白
FIRST RELEASE
SPECIAL ISSUE
// LJ 看设计 | 设计杭州特辑 //
// LJ 看设计 | 设计广州特辑 //
// LJ 看设计 | 设计南京特辑 //
// LJ 看设计 | 设计佛山特辑 //
// LJ 看设计 | 设计深圳特辑 //
……
- END -
频号
点击图片进入信频号浏览更多作品
LJ 看设计
- THANKS -
以便第一时间接收内容推送
客服
消息
收藏
下载
最近





















































