查看完整案例

收藏

下载

翻译
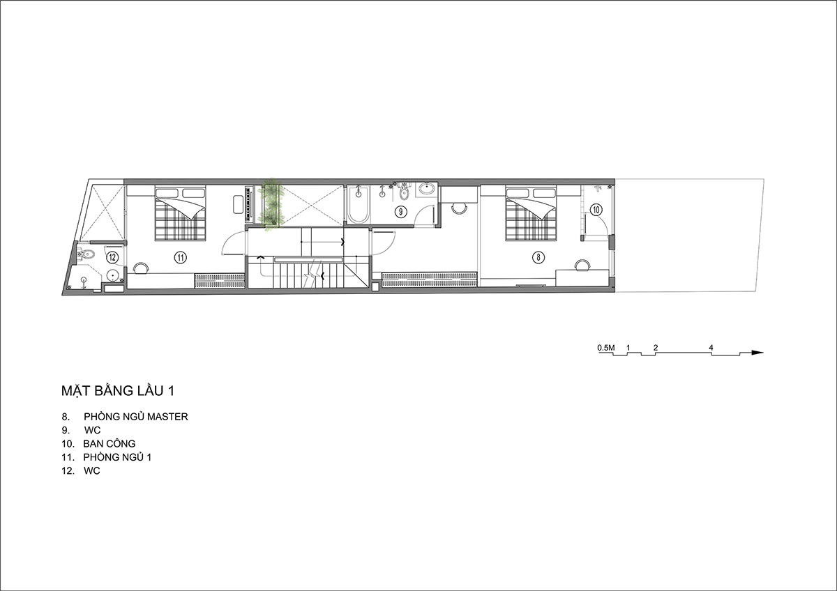
Với diện tích đất hẹp ngang nhưng có lợi thế chiều sâu, kiến trúc sư lựa chọn giải pháp bố trí sàn lệch tầng kết hợp giếng trời trung tâm cho District 12 House. Ngôi nhà có cấu trúc đóng – mở linh hoạt, xen kẽ giữa các không gian chung và các không gian riêng tư, phù hợp cho một gia đình ba thế hệ cùng chung sống.Dự án nằm trên khu đất 4 x 24,6m bên một bờ kênh yên tĩnh ở quận 12, thành phố Hồ Chí Minh. District 12 House là nơi chốn của một gia đình ba thế hệ.Gia chủ là một người yêu thiên nhiên, thích chăm sóc cây cảnh. Vì vậy nhóm thiết kế đã đan xen các yếu tố sân vườn, cây xanh, hồ nước vào bên trong lẫn bên ngoài công trình, mang lại không gian xanh xuyên suốt ở mọi khu vực.Căn nhà được bố trí lệch tầng. Ngoài việc tạo ra không gian linh động, còn giúp việc di chuyển giữa các tầng thuận lợi hơn. Cấu trúc không gian đóng – mở linh hoạt, xen kẽ giữa các không gian chung của gia đình và các không gian riêng tư. Các không gian chung và không gian riêng quan sát được nhau qua các ô cửa sổ được bố trí ở các vị trí thông tầng. Qua đó, việc trao đổi và giao lưu được dễ dàng hơn, làm tăng sự kết nối giữa không gian với con người.Ánh sáng và thông gió thụ động cũng là một yếu tố rất được nhóm thiết kế lưu tâm. Mỗi phòng đều có 2 hướng mở cửa ở mặt tiếp xúc thoáng với thiên nhiên và mặt tiếp xúc ở vùng lõi thông tầng với nguyên lý thông gió xuyên phòng, giúp gió và ánh sáng tự nhiên luôn tràn ngập trong mọi không gian.Xem đầy đủ hình ảnh công trình:Biên tập: Hoàng TrangXEM THÊM:
客服
消息
收藏
下载
最近






























