查看完整案例

收藏

下载

翻译
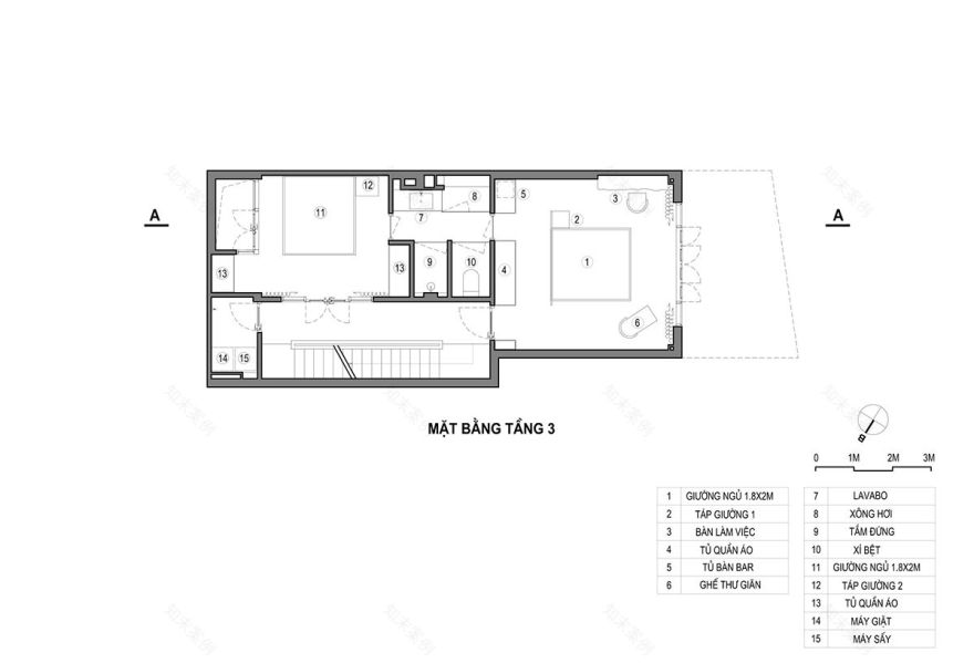
Gia chủ mới là người cá tính và rất nhiều trải nghiệm. Bài toán đặt ra cho KTS là cải tạo ngôi nhà thành một nơi nghỉ dưỡng nhẹ nhàng nhưng đầy sinh động, thư giãn và tinh tế nhưng vẫn giữ được hơi thở thâm trầm mà ngôi nhà vốn có.Nhà Ngọc Hà vốn là một căn nhà cũ 4 tầng được xây dựng cách đây 20 năm. Hiện trạng ẩm thấp, tối tăm mà người ta dễ dàng lướt qua mà không giữ lại được cho mình 1 chút ấn tượng nào, nằm giữa con phố mang tên làng hoa lâu đời của đất Hà Thành, với tầm nhìn ra hồ B52 lịch sử.Gia chủ mới là một người rất cá tính và nhiều trải nghiệm. Bài toán đặt ra cho KTS, một căn nhà hướng nội, một nơi nghỉ dưỡng nhẹ nhàng nhưng cũng đầy sinh động, một không gian thật sự thư giãn và tinh tế, nhưng cũng giữ lại được hơi thở thâm trầm rất Hà Nội mà căn nhà vốn có.Đánh giá hiện trạng như đa phần nhà ở đô thị khác, ngôi nhà không có sự liên kết giữa không gian trong và ngoài, giữa tầng trên và tầng dưới, không gian hầu như được đóng kín bởi bức tường và ô cửa sổ khép kín.Với ý tưởng chính tạo ra 3 cấu trúc không gian vòm vô cực 3 tầng hướng ra hồ, ngôi nhà xóa bỏ đi ranh giới giữa tường và trần, không gian mới được xuyên suốt từ sau ra trước. Nội thất và vật dụng được bố trí với ngôn ngữ ĐỤC- TRỔ tạo nên không gian như 1 tác phẩm điêu khắc âm bản.Nội thất hiện đại kết hợp vật liệu thô mộc được tính toán kỹ lưỡng đã tạo nên những không gian tiện nghi tinh tế cho ngôi nhà. Không gian sinh hoạt chung – riêng, các khu công năng được bố trí tuy phá cách nhưng liên kết chặt chẽ nhịp nhàng với nhau. Không gian xanh được chăm chút trải xuyên suốt chiều dọc căn nhà, biến nơi đây thành khu vườn nhiệt đới xanh mát, mang đến cảm giác dễ chịu ngay từ khi bước chân qua cánh cửa.Tầng 1 là 1 không gian hướng nội được mở khu vườn phía trước. Đằng sau cánh cổng gỗ là 1 khu vườn tự nhiên xanh mát có mùi của nắng, mưa và cây cỏ giúp gia chủ cảm nhận được không gian tự nhiên hoàn toàn khác khi bước vào nhà. Phòng ngủ cho khách được bố trí tầng 1 kết hợp bàn bi-a là không gian vui chơi cho cả gia đình cũng như bạn bè.Không gian tầng 2 được mở hướng toàn bộ ra phía trước nhìn ra mặt hồ. Khu đảo bếp kết hợp bàn ăn được bố trí tinh tế giúp gia chủ cho thể tận hưởng không gian cũng như các hoạt động xung quanh khi nấu nướng. Chiếc võng lưới nhẹ nhàng được bố trí ở khoảng thông tầng để gia chủ có thể nằm thư giãn đọc sách hay nghỉ cùng gia đình, bạn bè.Không gian tầng 3 được bố trí 2 phòng ngủ cho 1 người mẹ và người con liên thông với nhau bằng khu vực vệ sinh đầy đủ tiện nghi cho sinh hoạt. Tầng 4 bao gồm 1 phòng thờ và 1 phòng ngủ nhỏ khi cần thêm không gian ngủ.2 khoảng giếng trời khu vực thang và phía sau nhằm đảm bảo các không gian hành lang và phòng chức năng phía sau đều được thông gió và lấy sáng hiệu quả. Cầu thang trong nhà được thiết kế mặt bậc bằng khúc gỗ xẻ nửa găm vào tường giúp không gian trở nên tinh tế và bước cảm giác được nhẹ nhàng hơn khi di chuyển các tầng.Nhà Ngọc Hà với hơi thở của Hà Nội xưa, mong muốn tìm lại những thâm trầm vốn có bên cạnh dấu tích lịch sử hồ B52, với 1 cuộc sống nhẹ nhàng, bình dị.Xem đầy đủ hình ảnh công trình tại đây:Biên tập: KAXEM THÊM:
客服
消息
收藏
下载
最近





























































