查看完整案例


收藏

下载
生活不是局限于人类追求自己的实际目标所进行的日常行动,而是显示了人类加到一种宇宙韵律中来, 这种韵律以形形色色的方式证明其自身的存在。
——泰戈尔
项目名称 |
《靛》
项目地址 | 将军华府 · 温州
项目面积 | 184 ㎡
项目风格 | 美式轻奢
项目设计师 | 施敏敏
摄影
吴昌乐
这套案例之中,柔和色调的冰川灰色作为墙面的背景,没有那么冷峻的感觉,反而是奠定了一种舒适的氛围。棕色系的地毯搭配着黑色的三人位组合沙发,角落里糖果色的长颈鹿,十足的温馨暖意。
灰蓝色的窗帘布艺也在这种格调中显露出了柔软的一面。蜂蜜色金属搭配,增添了生活气息,却不染俗气。
蓝色与白色灰色排列组合,克制又规律的展现出细致的精准美感。蓝色的世界里深浅不一,层叠不断的颜色低低叙述着自己的表达,和谐的在纬度中
散发开来
……
黑白灰无颜色系列作为空间的点缀色彩,可以带来简约、时尚的感觉。沙发配上棋盘抱枕,少量的米色系作为点缀色,与楼梯遥相呼应。
冰川灰的背景色调铺陈出内敛谦恭的低调氛围,搭配藏蓝色的单椅和蜂蜜色的金属带入之余划分出明显的层次。规律的几何镜面图案紧密排列的蓝灰色窗帘,保持了一份奢美。
简约的线条和装饰的匹配是这个楼梯间的设计理念。黑白灰作为空间的基础色,引用了钢琴键盘的原理打造的楼梯空间,减少暗颜色的沉重感。相互衬托着弹出了灵动的变奏曲
……
当灰蓝色在空间中大面积应用,背景略带灰度的雾色,柔和淡雅的色调可以更为有效的把控空间节奏,营造着舒缓的氛围。
男孩子的卧室,采用浅蓝色的色调,
墙靠背的格子墙纸,略略的透出一点英伦风格。
各种趣味装饰洒满房间,陪伴孩子成长……
一层平面图
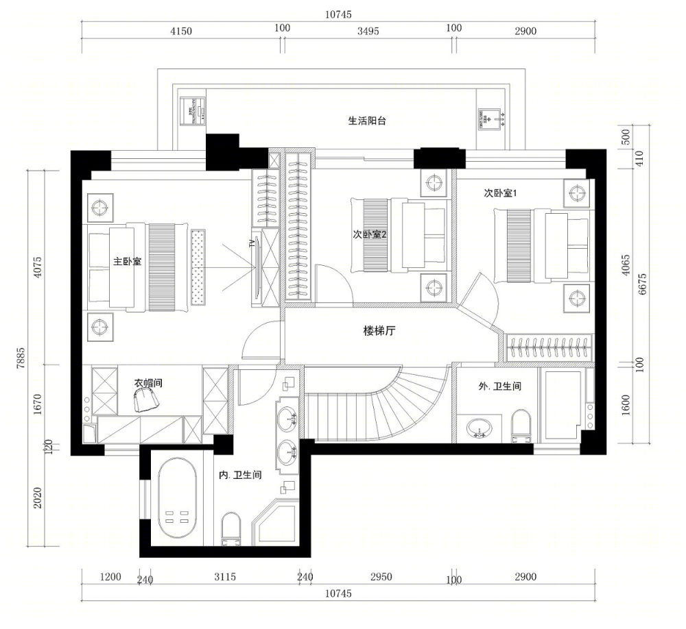
二层平面图
客服
消息
收藏
下载
最近






























