查看完整案例

收藏

下载

翻译
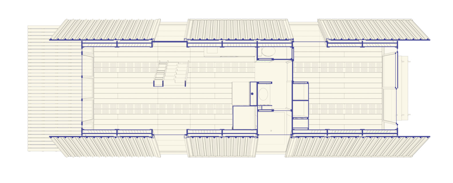
SULA (a genus of seabirds commonly known as boobies) as it was named, is a house that was pre-fabricated in Quito in 2 months, it integrates 17,000 screws and nearly 2,000 custom-made pieces in wood, metal, aluminum, and glass. It was transported in 2 trucks to the port of Guayaquil and in 2 containers to Puerto Ayora - Santa Cruz Galapagos. It was assembled in 1 month with a fixed team of 4 people and 6 itinerant people in different specialties. It was created for Catalina and her family, residents of the islands for over 40 years.
Leaving the mainland with a house in pieces is a bet on innovation, it is an opportunity to convey a message for a change in consciousness and to understand that it is possible to build without causing a negative impact, with the specific commitment to be environmentally responsible and to optimize resources as much as possible in each process.
Creating a sensitive and respectful habitat for all actors; the environment, the context, the user, and the team that conceives it; has been the premise of the design. Scalability, transport flexibility, adaptation to the context, and industrialization of processes have allowed the efficient use of resources, and most importantly, traveling with Architecture has been achieved.
Sula is the second prefabrication exercise to validate the hypothesis that it is possible to generate a construction system that promotes collective well-being and generates minimal impact on the carbon footprint. A radical attitude towards approaching construction and the role that women play in architectural practice. It is the result of several battles to create the unthinkable.
The design reconciles function with interior comfort by proposing bioclimatic strategies justified by dynamic thermal simulations. Sub-elevating the building allows for the use of inertia and the passage of currents to form a cold air chamber under the structure. The walls, along with the roof, create a double layer that houses the structural beams and forms another air chamber that ensures over-ventilation of the interior skin. Perforations in the floor and walls allow for cross-ventilation.
The elevation of the house also facilitates possible disassembly in case it needs to be relocated. Sula has its counted pieces, it functions like a large-scale Lego that can be transported in a truck and implanted in any type of environment. The use of concrete is minimized to the maximum, which is why gabions were used as foundations, which can be easily dismantled in case of relocation but above all, they are designed as a strategy to not affect the soil. "It is a matter of respect for nature."
Five unique materials; wood, stone, metal, glass, and PVC intervene in a pure and proportional way to consolidate an environmentally balanced element. The participation of each material was filtered by the condition of efficiency and flexibility. Plywood is the most representative material, with which the structure, interior walls, furniture, and ceiling were built. The precision of the format, combined with a mechanized cutting process, guarantees resource optimization. The roofs were assembled with PVC sheets, which act as umbrellas, waterproofing the cabin.
What we are and what we do originates from the life we receive; family, place, position, and the opportunities we are born with... Being an architect, a mother, a woman is not easy in itself... it is not a complaint, it ends up being an eternal gratitude to life for allowing me to make a difference in some way in a perverse world and manage to come out unscathed from that mix. It is a privilege to be able to do what you want when it means a real contribution to the well-being of all. A contribution to a change in consciousness, a rethinking of values, and questioning what really makes us feel alive. Thinking about creating a habitat that is truly consistent with the environment and the quality of life of the individual demands deep reflection and relentless experimentation, but it is valuable. In a world in which we cannot do much, let us at least be kind to ourselves. Let's create a habitat in which we don't have to just survive. One that truly makes us feel alive.
客服
消息
收藏
下载
最近




























