查看完整案例


收藏

下载
Apartamentos, Madrid, España
设计师:Camacho Macia Arquitectos
面积:10597 m²
年份:2020
摄影:Javier Camacho
提供协助:Freecad, Gutterkel, Keraben, Koomerling, Orona Pecres, Pladur, ULMA Architectural Solutions, URSA
业主:EMVS
Ciudad:Madrid
Pais:España
设计师描述 | Designer description:
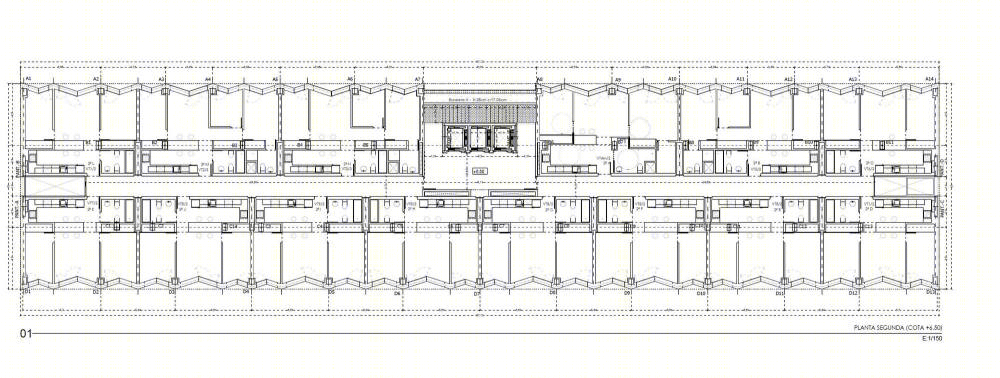
Se trata de una promoción de 101 viviendas de VPP en una parcela muy estrecha (15 metros de crujía) para un número tan elevado de viviendas. Proponemos la agrupación residencial en un bloque lineal, que disponga todas las viviendas en una crujía doble, con una galería de accesos ventilada, vinculadas a conexiones verticales y zonas comunes. Al generar esta galería ventilada, dotamos a todas las viviendas de ventilación cruzada. La disposición de la vivienda se organiza en torno a un gran espacio de usos de estar y dormitorios ocupando el contorno exterior de la edificación, flanqueado por una banda inmueble de baños y cocinas al interior. Pese a la no existencia de espacios libres de la parcela se dota al conjunto de unos espacios colectivos generosos de relación vecinal a través de la conformación de un soportal abierto en continuidad con el nuevo parque.
Se producen unos espacios generosos para las zonas comunes vinculados a la gran escalera central, totalmente abierta a la fachada posterior y en continuidad con el soportal abierto. Con el fin de optimizar las orientaciones y las visuales posibles de la parcela que da frente a la estrecha Calle Puerto de la Bonaigua, el nuevo frente construido opta por generar una fachada quebrada en sus frentes longitudinales. Esta disposición esquinada de las fachadas y sus huecos genera dos posibles orientaciones a las viviendas, aumentando las posibilidades de soleamiento y vistas de cada vivienda.
Se produce un dialogo en la materialidad del proyecto, contrastando un exterior pétreo y oscuro en las fachadas exteriores con un interior luminoso y colorido de los espacios comunes. Se genera una arquitectura expresiva y comprometida con el entorno urbano degradado donde se sitúa. A través de las cualidades formales del proyecto se genera un espacio urbano mejorado en su percepción ambiental, tanto en el frente construido hacia la calle Puerto de la Bonaigua, y principalmente como elemento definidor de borde del parque urbano existente en torno al DISTRICT HEATING.
Se plantea una arquitectura que encuentra su expresividad en las fachadas facetadas que rompen la excesiva linealidad del bloque obligado por el planeamiento existente. Además, esta disposición quebrada de los cerramientos consigue optimizar las orientaciones y las visuales posibles de la parcela que da frente a la estrecha Calle Puerto de la Bonaigua. El nuevo frente construido opta por generar una fachada quebrada en sus frentes longitudinales, materializado en una solución de fachada ventilada con paneles porcelánicos extruidos negros, con un acabado satinado que recoge la luz y el color de los cambiantes cielos de Madrid. Se singularizan también lo huecos a través del uso de unas guarniciones lacadas en colores anaranjados, dulcificando la dureza de la fachada.
项目完工照片 | Finished Photos
设计师:Camacho Macia Arquitectos
分类:Apartamentos
语言:西班牙语
阅读原文
客服
消息
收藏
下载
最近

























