查看完整案例


收藏

下载
Apartamentos, São Paulo, Brasil
设计师:CTRL + Architects
面积:3600 m²
年份:2020
摄影:Maura Mello
建造商:Adobe, AutoDesk, Concresteel, Deca, Eliane, Ibratin, Microsoft, Pormade, Sherwin-Williams, Thyssen-Krupp, Trisoft
Arquitetos Responsáveis:Anna Rossi, Felipe Gallani, Stefano Fiocca
客户:Amici Incorporadora
工程:Pasqua e Graziano
Engenharia 1:IN prediais
Engenharia 2:MGA Solos
景观设计:Gabriella Ornaghi e Bianca Vasone
Consultor 1:GP&D
Consultor 2:Kaplan Ambiental
Consultor 3:Claudinei Passoni
Cidade:São Paulo
País:Brasil
设计师描述 | Designer description:
Em uma cidade como São Paulo, onde os apartamentos são tipicamente construídos numa lógica de linha de produção, desprovidos de identidade própria, criar um verdadeiro lar se torna um dos desafios da nossa vida moderna. Assim, o projeto pode ser uma ferramenta para destacar identidades positivamente. Localizado no limite da cidade, o Edifício Amora foi construído a partir da antiga casa dos avós de um dos arquitetos, carregando toda a memória afetiva de uma construção tradicional do bairro. Seu principal partido foi a busca por espaços e elementos que não fossem agressivos ao contexto em que está inserido, manifestando fragmentos dessa memória aos moradores, pedestres e vizinhos. O projeto se organizou a partir de um único volume que, aberto em suas circulações comuns, se faz permeável, privilegiando o contato com a paisagem do bairro e sua massa verde.
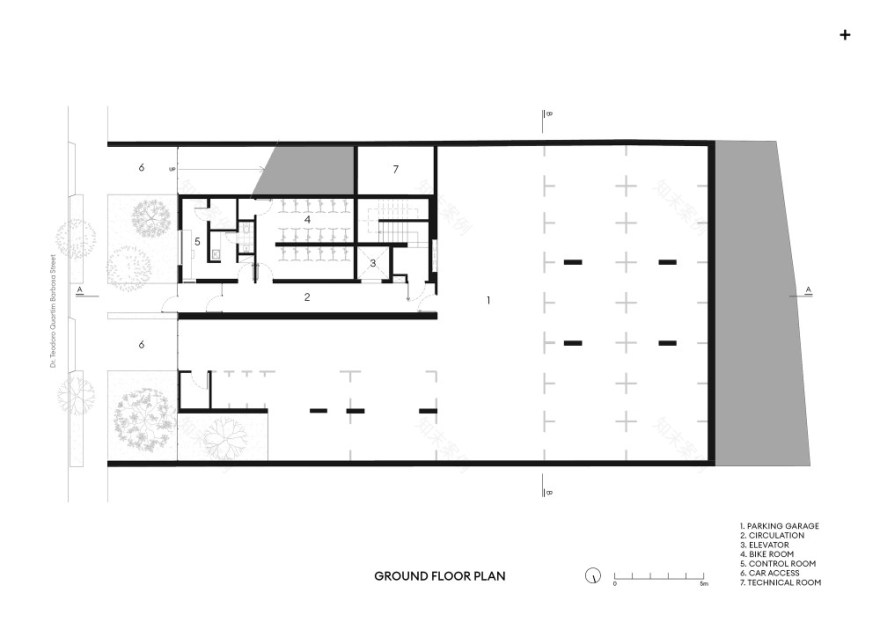
Ao atravessar o plano de entrada do edifício, feito em chapas expandidas de alumínio, o morador mantém o contato com o horizonte, atravessando percursos abertos e cobertos que conectam as áreas de interesse. A transição apartamento-cidade pode então ser desfrutada, recuperando a importância de se valorizar o momento durante, em trânsito, além do estar. Sustentabilidade foi outro ponto importante, que refletiu na decisão de não alterar bruscamente a topografia do terreno, dispondo a garagem em nível com a rua e aproveitando o recuo do fundo para a construção de uma horta e pomar comunitários. O recuo frontal também foi aproveitado para dispor uma massa verde que envolve todos os acessos do edifício, voltada para a rua e não para o interior. De certa forma, estes jardins procuram recuperar os Pinheiros de Natal e Amoreiras – origem do nome do edifício – que existiam na antiga casa.
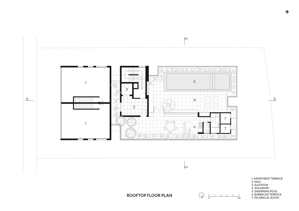
Os apartamentos foram projetados pensando na necessidade dos moradores da região:estúdios para estudantes e apartamentos compactos para pequenas famílias. Cada uma das plantas foi pensada para garantir flexibilidade adaptativa dos espaços, permitindo a ampliação com apartamentos adjacentes. Por isso, a reconfiguração das plantas em todos os pavimentos é livre. Essa variabilidade da tipologia procura a melhor adequação do edifício aos moradores, e não o contrário. Em sua cobertura, por fim, os percursos contínuos e diários encontram um descanso, disponível a todos. Uma generosa piscina, espaço para festas, churrascos e encontros é cercado por um jardim que percorre todo o perímetro. A vista para o parque faz lembrar o valor e privilégio de ainda se ter contato com a natureza.
项目完工照片 | Finished Photos
设计师:CTRL + Architects
分类:Apartamentos
语言:葡萄牙语
阅读原文
客服
消息
收藏
下载
最近






























