查看完整案例


收藏

下载

翻译
The building is a 40-classroom school constructed as an expanded replacement for a 19-classroom state school in Ortabayır / Kağ&305;thane. It is within the intense and lowquality housing patterns of Ortabayır, adjacent to the renowned financial center of Büyükdere Avenue on Istanbul’s European side, an area that has frequently been the subject of discussions of “urban regeneration” during the 2000s.
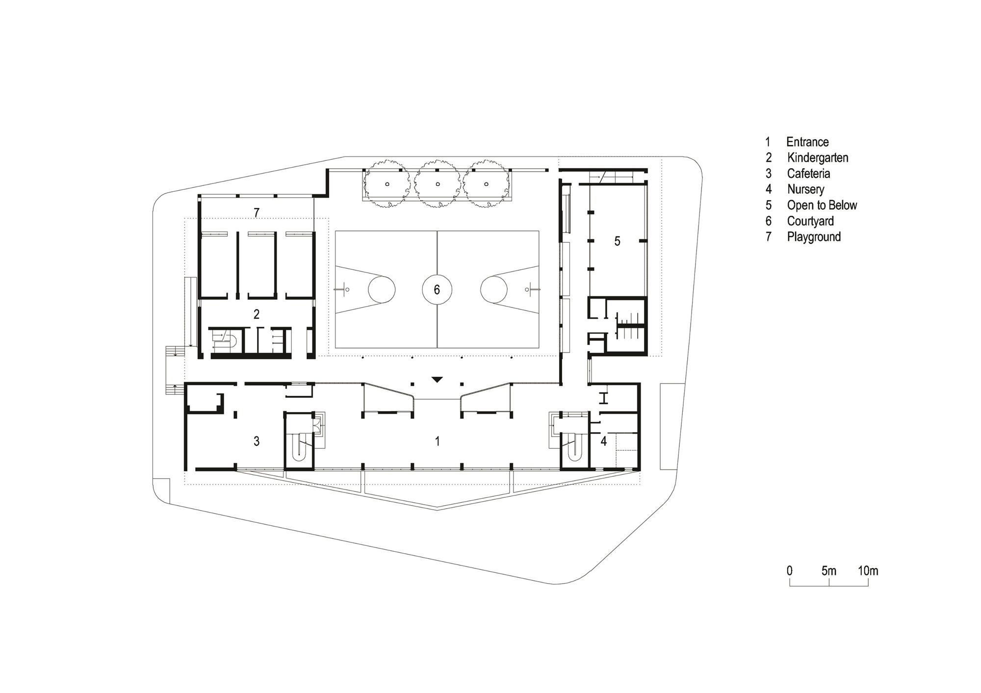
The school is located next to a district mosque and besides its education purpose aims to constitute a social center for the neighborhood. Completed despite significant financial constraints, the building was designed with a consciousness of its functional and social role. Within the intense urban fabric, the three rectangular blocks that make up the school have been recessed towards the edges of the plot, creating an open sports courtyard in the middle. The fourth and empty side of the plot is a semi-transparent boundary and green zone that prevents enclosure of the school behind high walls. This is an explicit expression of the school becoming a social center for the use of inhabitants out of school hours.
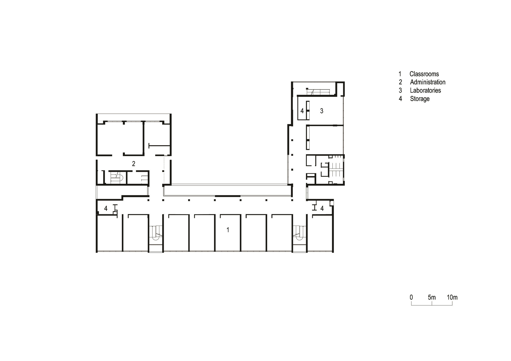
In addition to financial constraints and Ministry of Education Regulations, the guidance of the architectural office was also influential in the design process. Structured around a central courtyard intended to serve as a local node, the building consists of three major interconnected masses. The five story classroom block marks the longest edge of the site. The lower three story administrative block is located adjacent to the mosque. Designed with five stories, the laboratory block houses a double hight indoor activity hall at the ground and basement floors, which can be used for sports also.
In places like Kağıthane where there are very few urban social facilities for public use, schools need to take on the role of small social centers for the use of the neighborhood. In this case, Nef Primary School provides proof that the school and surrounding open spaces have the potential to serve the inhabitants of the neighborhood as a public investment. Knowing this potential, the classrooms and laboratories are located on the upper floors, which can easily be isolated from the ground floor, while the units that can be opened for public use are on the ground floor, easily accessible from the outside. The library, located underneath the main classroom block, receives daylight from the sunken garden; the kindergarten underneath the administrative block is separated from older classes by a separate entrance and garden; the indoor activity hall at the basement gets daylight from the wide glass surfaces surrounding the central courtyard and the open sports court serves as a children’s playground, which the neighborhood lacks.
The building was designed as a traditional reinforced concrete structure. Stucco is used on the exterior facades so as to keep the memory of the republican schools. In the overall construction a brutal expression is the goal; Reinforced structural elements were left exposed in the inside and all the infill materials like partition walls were clearly expressed by white paint. The only color inside is the yellow of the floors.
As the building is designed as a single loaded block system, all the corridors which function as indoor play areas and meeting spaces for children during the breaks receive extensive daylight. The school was planned and constructed as a charity work by a construction company that has carried out several projects in Levent District.
客服
消息
收藏
下载
最近




























