查看完整案例

收藏

下载

翻译
In 2021, we were commissioned to design a small house located in
, a coastal town in Chile known for its excellent conditions for water sports. The client requested a 70 m2 house with two bedrooms and two bathrooms, designed for a young audience, that had to be cost-effective to build and preferably developed on two levels to have sea views.
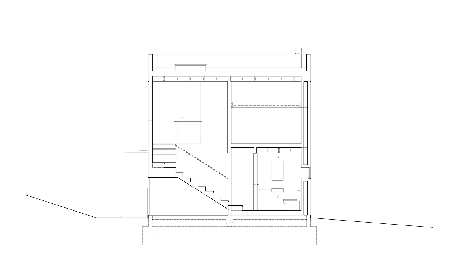
Casa Kuvo is presented as a prism measuring 6x6x6 meters. With an abstract appearance seemingly disconnected from its surroundings, we will see that the treatment of the different facades and their square openings in line with the volume respond to the needs of lighting, ventilation, opportunity for views of the interior spaces, and each of the orientations: towards the south and west, the house becomes almost mute to protect itself from the strong southern wind, avoid overheating during the day and heat loss at night, while hiding from the gaze of future neighbors. On the other hand, the north and east faces open towards the morning sun and the views.
The idea of using white in the exterior cladding has a double meaning: on one hand, to accentuate the volumetrics on sunny days, through the play of light and shadow on its faces, and on the other hand, to make the house become evanescent during coastal troughs, the characteristic fog of the area that moves from the sea inland.
Being a vacation home for rental purposes that must withstand more carefree use, and also located in a marine environment and with an economical construction requirement, we propose an architecture that can be built sparingly, with a raw material expression that naturally assumes the passage of time. We conceived a house where the details are more in the general decisions than in the small scale or sophistication.
In this sense, we opted for the use of wood as the only material; the exterior is raw stained pine, while the interior uses brushed satin-stained pine, where in both cases we take advantage of the texture of the wood in different ways.
Flush windows and the treatment of all exterior doors reinforce the idea of volume, making it possible to maintain the facades without any other shadows than those generated by the cladding boards.
The program is developed on two levels, through the strategy of compacting services and equipment on the perimeter, freeing up the largest possible surface. In this way, the lower level has a single open and flexible space for the living room, dining room, and kitchen, as well as a bathroom and storage space.
The bedrooms and the main bathroom are located on the upper level. The staircase also brought to the perimeter and semi-hidden from the lower floor, is a kind of dynamic space that opens up towards the house and the exterior as it ascends.
客服
消息
收藏
下载
最近








































