查看完整案例

收藏

下载
01.意大利 Opus XII 公寓
▎在永恒之城,Opus XII 公寓位于一座 20 世纪早期的建筑中,距离斗兽场仅几步之遥,是历史与现代对话的结晶。
▎旧的实心橡木地板皆换成新镶木地板,对木材和当地石灰华大理石等天然材料的使用、与外部景观相关的色彩研究以及光与影的作用,都为项目营造了一种超时空的氛围,并与外部的奇妙建筑和废墟相得益彰。
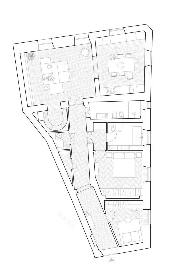
▎该公寓已废弃多年,空间之间的关系非常零散,一条长长的走廊为不同的房间提供服务,这些房间相互连接,使用起来如迷宫一般。设计采用更贴近年轻客户生活方式的策略,通过在承重砌体上开凿拱门,重新打造了一个包括厨房和起居室在内的大型开放空间,光线可以从不同的角度进入。
▎卧室和浴室等较为封闭的区域位于房屋的右侧,从走廊进入,走廊被划分为两个区域,一个较暗的区域同时也是接待空间,为客人进入下一个较亮的房间做好准备。
▎公寓原本的空间关系非常零散,设计者为其打造了一条长长的走廊,连接不同的房间,既有迷宫的趣味,亦能保证空间动线的流畅自如。
这座房子的标志性元素是胡桃木 esedra 形状的小书店,它像一个小盒子一样藏在客厅的空间里。家具则选择了更具现代感和标志性的款式,并以简约的艺术品点缀空间。
▎在这个工作室里,空间被雕琢成永恒的场所。工作室的工作范围很广,从大型项目到产品设计,其创作过程始终源于对当地文化的研究,从而赋予项目生命。
02.米兰 Opus IV Apartment
▎这个项目的特点是寻求现有空间的平衡,以满足客户在不改变房屋结构的情况下运作的需要。在保留原有砌体的同时,唯一进行翻新的环境是浴室,通过使用新的地板、室内装潢和家具重新设计。梳妆台、梳妆台和淋浴台都是由专业工匠定制的,他们对每一个细节都很细心。
▎在房子的其他地方,工作主要是选择材料、家具和家具,以及定制家具,如餐厅的石灰华桌、厨房角落的巴塔哥尼亚大理石桌和厨房的工作台。
▎在温暖的云朵、明亮的灯光和比例的关注下,精确地寻求一种平衡,给房子一种平静、优雅的氛围。
02.
?关于 Opus Atelier
About Opus Atelier
Maura Pinto&Piervito Pirulli▲
▎
OPUS 是一家建筑设计公司,由建筑师 Maura Pinto 和 Piervito Pirulli 于 2019 年创建,总部设在米兰。
▎Opus Atelier
每个项目都被理解为一件艺术品,因此被称为 OPUS,一个工作室,在那里空间和物质被雕刻成永恒的地方、物体和大气的氛围。
▎OPUS 这项研究是横向的,从大型项目到产品设计,产品设计的创作过程总是来自于天才地点的研究,从而产生了通过其本质讲述单一宇宙的项目。
♥ ♥ ♥
每天一本好书
《宾至如归:挑剔旅行者的特殊住所》《Home Away from Home》
日本意大利新西兰巴厘岛等 英文建筑设计图书
ISBN:9782875501141
出版社:Beta-Plus
尺寸:30.1x3.6x23.6cm
语言:英文
页数:304
装帧:精装
作者:PAUWELS
出版日期:2022-08-08
本书展示了新颖独特、按季节出租的房屋,可出租一周、一个月或仅仅一个周末。所介绍的住所都位于美丽的地方——苏格兰、瑞士、日本、瑞典、意大利、法国、新西兰、澳大利亚、墨西哥、巴厘岛、西班牙、巴利阿里岛和美国。
♥ ♥ ♥
推荐阅读
客服
消息
收藏
下载
最近




































































