查看完整案例


收藏

下载

翻译
“The museum is given a birth and breathes as a piece of the nature lives in it.”
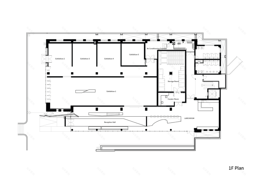
Kim Jong-bok Art Museum in Daegu Catholic University is built to commemorate the artist Kim Jong-bok and her works. It opened with 100 pieces of donated Kim’s masterpieces and now is a great archive where history of art in Daegu and Gyeong-buk region from 1940’s to 2010’s is reserved. Also, the museum provides high level of art education to students and develops the regional culture.
The architectural structure of the museum on the original plan had a strong but smooth flow in its overall shape, implying the nature of the artist. A part of the exterior that was to be newly added, however, was cut off due to budgetary deficit, and therefore it now seems like the outer surface of the building is being squeezed into the inner space. In other words, the museum is designed to be a distinguished architectural layer that slides into the existing building.
Since the museum is built to commemorate the artist Kim Jong-bok, the architect tried to use the image of mountain as Kim often did in her paintings and abstractly apply it into the shape of the area from the outer edge to the inner space. Furthermore, the architect attempted to combine the interior elements, such as the ceiling, the floor and the furniture, as one, while each piece has unique function as it is a separate piece. The gigantic inner space that is 50m in height keeps balance between spatial durability and voidness and allows the museum complex to be brought in; this method creates density of space in the building and distinguishes the museum from others.
Also, the abstract pattern that is taken from Kim’s unique brush stroke is clothed onto surface of the ceiling of the cafeteria/seminar hall area and the sub-entrance area in the museum. This is another element of the museum that distinguishes it from others and increases awareness.
The building was originally built as a student union building and has a huge window that is improper for an art facility. The architect, however, accepted and renovated this window to draw the sunlight, which is a great element of the nature, and added dynamicity into the silent inner space; the sunlight coming into the reception hall is reflected on the white marble sculpture and stays in the space as an element that dynamically changes over time. The architect also put a wood screen on the inner wall to protect oil paintings from the sunlight coming through the window that is opened inward, while the window yet delivers the view of the garden inside.
客服
消息
收藏
下载
最近



























