查看完整案例

收藏

下载

翻译
Gibraltar is an office and commercial building located in the Las Flores neighborhood of
. The eight-story edifice gives the impression of being suspended over a garden, with a porous structure that allows wind and sunlight to pass through, combining open office spaces with terraces and communal rooftops.
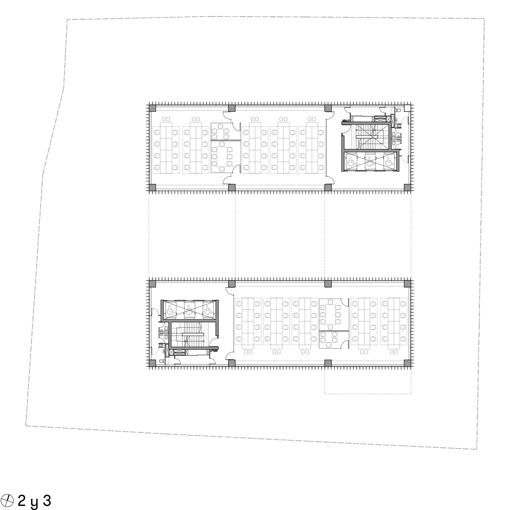
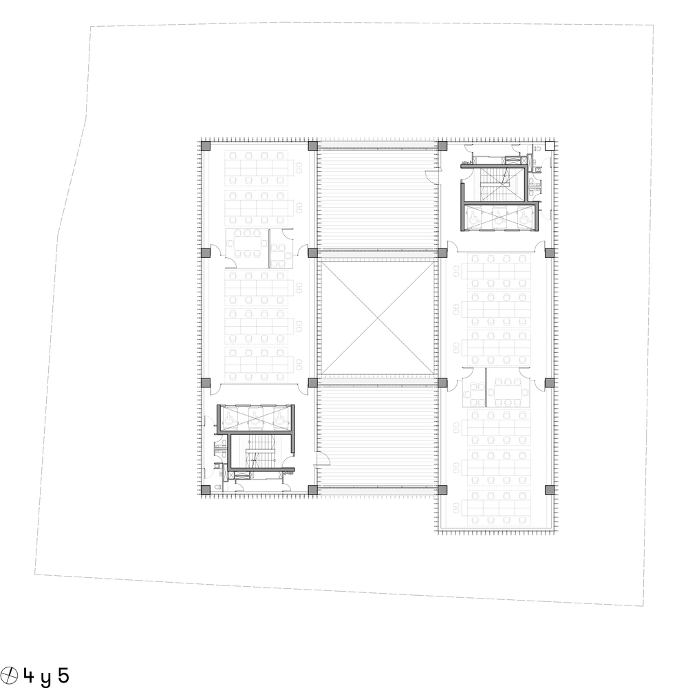
In the upper floors, inverted beams allow for the installation of raised floors, which organize the building's services beneath the surface, providing great flexibility for office layouts and unobstructed ceilings. In addition to the exposed concrete, the building incorporates wood, primarily using cork for floors, oak, and raulí wood for furniture and finishes, and laminated oak beams on the facades.
The facade is composed of laminated pieces with a section of 20x5 cm and a length of 6 meters. The raw oak material comes from a property owned by the client in Futrono, Chile. The oak timber is processed in Temuco, where the pieces that make up the 1550 laminated beams are planed and dried before being assembled in Santiago. Each laminated wood beam is anchored to the building's slabs at three points through specially designed aluminum fittings, emphasizing the prominence of the wood. The native wood used in the building is certified and sourced from sustainably managed planted forests.
The building's facade has a high level of opacity, creating a compositional effect that emphasizes the overall volume of the building, moving it away from a domestic appearance and elevating it to an urban and public scale. Moreover, the facade enables controlled interior temperature management of the offices, reducing energy consumption for air conditioning during summer and heating in winter.
Gibraltar integrates a public-use forest on its ground floor, contributing 2000 m2 of green areas to the Las Flores neighborhood in
. This forest of quillayes, peumos, and oak will have an average height of four meters and includes recreational zones, while providing access to the office building located on the site. As a result, the building becomes part of the network of green areas along the San Carlos Canal, complementing it with a private space for public use, open to the community. The project's boundaries were collaboratively planned with the municipality, resulting in pavement and landscaping designs that create a smooth relationship between the private lot and the public sidewalk.
Citizen participation was fundamental in all stages of the project's development. Through an early engagement process with the neighborhood residents, their needs and expectations were collected, enriching the project's concept, and fostering close and open communication with the community.
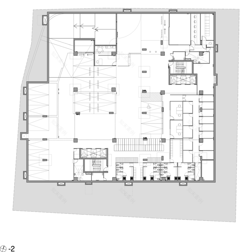
Community participation ultimately influenced aspects of the project's program. The building now includes an auditorium, cafeteria, and flexible spaces in the first basement, features that directly emerged from the participation process during the design phase and are now activated by the building operator as a public program complementing the offices. These spaces will host cultural events, art exhibitions, and other activities highly demanded by the residents of the Las Flores neighborhood.
客服
消息
收藏
下载
最近
































