查看完整案例

收藏

下载

翻译
The Sloping House owes its name to the dual condition of assuming the slope of the pre-Andean range of
and self-acquired family debt, which confronts us with the revisionism of our own way of living, inhabiting, and projecting. As the first decision in starting this family project, we took on the slope and inhabited the continuous space, embodying in this domestic space a conscious search experienced in almost 20 years of professional practice, which set a roadmap for the project: the house had to be traversed, it had to allow for communal and individual life, the social, work, and contemplation, the functional and the aesthetic. As a foundational act, we traced the spaces with chalk on the ground and captured with a device the views that each one wanted to frame (see photos by authors).
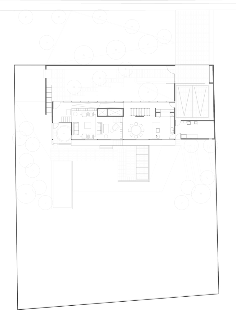
Also questioning the way of inhabiting, the project is developed in two staggered, continuous, and overlapping spaces/containers. The lower one, open to the landscape on its entire perimeter, contains the social spaces in a continuous nave of hall, living room, and dining room/kitchen. The upper one, more introverted, contains the intimate spaces of the office, bedrooms, and family room. Both spaces/containers break and transform the paradigm of urban housing in their spatial continuity, not considering divisions between the rooms, except for the bathrooms. The lower volume presents a continuous space with three steps of six steps each, which become transition thresholds between the social areas. The upper volume also replicates the idea of a continuous space, but with a more intimate character, with five steps of only three steps between the different spaces, separated by built-in furniture that does not reach the upper inclined ceiling and manages to configure intimate and private spaces.
The pavements of refined concrete slabs and the exposed concrete walls form an austere interior atmosphere devoid of other finishing elements, which only appear as punctual applications within the interior journey. This material austerity is also carried into the interior of the bathrooms, which are worked as monochromatic spaces with glass mosaic on walls and floors. The stairs and ramps, as elements of the natural connection between the two superimposed naves, generate new relationships between them and propose different speeds of movement. The staircase for faster walking connects the spaces directly, while the ramp allows for a slow ascent against the slope and a gradual discovery of each room or the surrounding landscape.
Rarely do we have the opportunity to live daily in the designed work. With two children entering adolescence, the project posed a theoretical experiment of the way of life that we would build together. But the true experience was revealed to us when we moved in, even without furniture, into what would become this family nave. We began to consider each space as a triumph, from the most intimate to the social, and during the pandemic, we were able to live intensely on the journey and experience of the continuous space, which transformed into our way of inhabiting.
客服
消息
收藏
下载
最近
























