查看完整案例


收藏

下载
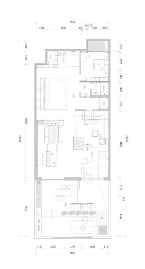
项目名称 | Name:华侨城·108坊 | Huaqiaocheng·108Fang
项目地点 | Location:中国·西安 | Xi'an,China
项目类型 | House Type Structure:别墅 | Villa
项目面积 | Area:600㎡
完成时间 | Date:2022
设计公司 | Design Company:西安恩集建筑空间艺术有限公司(ANG)
主创设计 | Creative Design:李斌 | Bin Li
设计团队 | Design Team:李珊 | Shan Li;王渊博 | Yuanbo Wang
公司地址 | Company Address:陕西省西安市雁塔区锦业一路10号中投国际A座1901室 |Room 1901, building a, CIC International, no. 10 Jinye Road, Yanta district, Xi 'An, Shaanxi Province
客服
消息
收藏
下载
最近



















































