查看完整案例


收藏

下载

翻译
In the suburbs of Paris, the extension signed Hemaa Architectes of a detached house brings together two architectures from different periods in a site with marked topography.
A technical and historical analysis of the existing structure showed that the house had undergone a number of transformations, in particular volumetric extensions which, over time, had seriously damaged the original structure. The decision was therefore taken to divide the structure in two along a load-bearing brick wall, leaving only the noble part in good condition.
The stones from the demolition were stored on site and then reused to create a new façade along the exposed load-bearing wall. The new extension, which blends into the natural topography of the site, is semi-buried on the street side and, on the garden side, aligned with the neighboring buildings.
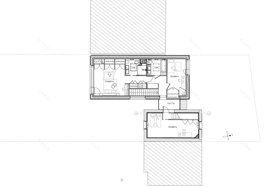
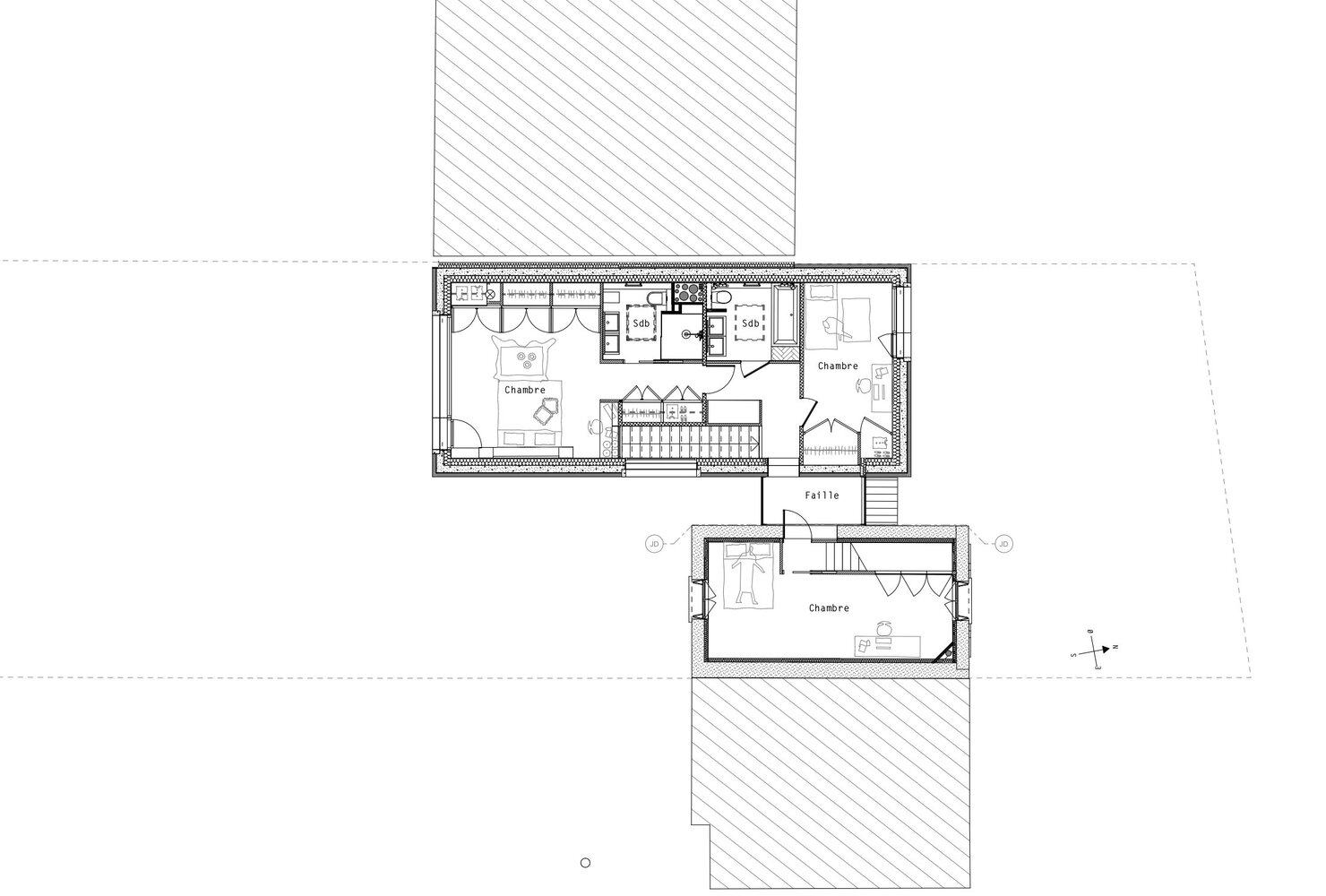
The glazed gap, the new entrance to the house, provides a transition between the architectural styles of the existing house and the extension. The neutrality of the architectural style of the gap allows each era to stand on its own.
On the garden side, the new volume, wrapped around the millstone section and a patio, maintains this politeness between new and existing. For the extension, the light-colored long brick echoes the town's fine buildings, traditionally constructed in millstone and solid brick. The window frames are made of white architectural concrete, while the window frames are made of natural oak.
On the street side, the architecture is quieter and more introverted to preserve the privacy of the residents. To the south, on the garden side, the extension opens wide to face the long garden planted with fruit trees. The facade of the lower level, which houses the living room as a continuation of the garden, is entirely glazed, with sliding bay windows providing a total opening onto nature, while the patio provides natural ventilation for this walk-through space.
On the ground floor, level with the street and connected to the kitchen and dining room, the passageway leads to a large terrace overlooking the garden. The four bedrooms are all located on the first floor and under the rafters. They are connected to each other by a walkway in the glazed passageway above the entrance. Here too, brick and millstone give the impression of passing through the exterior to move from one volume and one era to another.
客服
消息
收藏
下载
最近




























