查看完整案例


收藏

下载
该项目位于1960年代圣玛尔塔修道院周边城市化进程中兴起的住宅区域之一,与康索山相毗邻。根据当前城市规划的建议,住宅建筑以U型开放街区的形式发展,内部设置私人使用的庭院。
The Cooperative is based in one of the plots of the residential estate that emerged in the 90s from the urbanization of the surroundings Santa Marta´s Hermitage , next to Monte de Conxo. In the ordination proposed by the current urban planning, the buildings for residential use are developed in open blocks in a U-shape embracing inner courtyards for private use.
▼建筑外观,Exterior view © Luis Díaz Díaz
该建筑是对康波斯特拉紧凑型住宅街区tejido的重新诠释,它利用了这样一个事实,即在开发单一用途的项目时,可以在街道高度到屋顶高度的范围内,对建筑体量进行统一的处理。为此,设计团队提出创造一座沉稳而紧凑的建筑,其立面可通过分布在整个表面上的同质化的孔洞网络进行组织。在这种恒定的节奏中,通过在每个孔洞中置入天然花岗岩材质的屏风,住宅单元的内部分布得以识别出来;其余的部分完全敞开并安装以玻璃窗。这样一来,建筑的外表就形成了一幅巨大的立面画布,在虚实的交替之间,展现出一种微妙的整体秩序。
Show interest to this configuration, the building is considered as the translation of the compact blocks of Compostela’s residential tejido, taking advantage of the fact that when developing a single use (residential) it is possible to give a unitary treatment to the volume from the height of the street to the roof. As a result, a sober and compact building is proposed, whose façade is organized through a homogeneous grid of holes in its entire surface. From this constant rhythm, the interior distribution of the dwelling units is recognized, by means of screens of wild granite that are inserted in each one of the holes, leaving the rest of its surface totally open and glazed, singling out a practicable element in each stay, the window. In this way, the large façade canvases are formed, in which a general order is becoming nuanced, hollow to hollow, void to the void, by the reality behind each one of them.
▼建筑立面展现出一种微妙的整体秩序
A general order is becoming nuanced in the facade © Luis Díaz Díaz
▼内部庭院视角,View from the inner courtyard © Luis Díaz Díaz
▼开放的首层空间,Common area on the ground floor © Luis Díaz Díaz
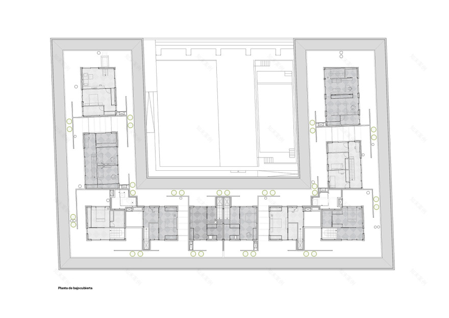
建筑从地面到屋顶一直保持了这样的设计语言,它打破了形式上的规整,提供了高度和视野所带来的所有可能性。在这里,人们将享受到一系列与复式住宅相连的花园空间,以及花园内带有阳光露台的、可以欣赏到城市南部美景的私人角落。尽管作为住宅,该项目收到了最大容积的限制,但这并不妨碍它享有非凡的景致。
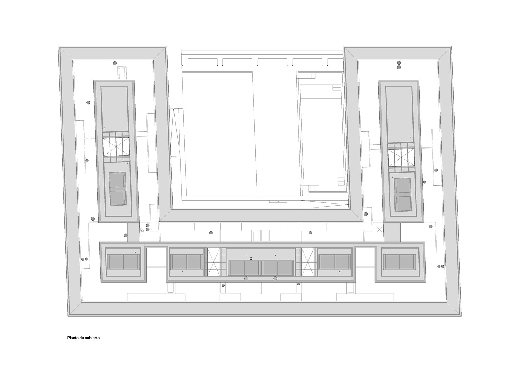
▼屋顶轴测,Axon – roof terrace © Carbajo Barrios Arquitectos
The building is shaped like this until it reaches the roof where it breaks its formal regularity to offer all the possibilities that height and views provide. Here they will create a series of garden spaces linked to the duplex houses, which are endowed with private landscaped corners with a sun terrace and privileged views towards the south of the city, creating a set of labyrinthine image of the building, characteristic of residential blocks, although here conditioned by the maximum volume allowed.
▼屋顶平台,Roof terrace © Luis Díaz Díaz
▼凉廊,Loggia © Luis Díaz Díaz
首层的公共区域是服务于大楼所有用户的“客厅”空间。人们可以通过一个开放空间从户外走向通往建筑高层的入口。开放空间与社区花园保持了视觉上的联系,前者包含日光浴室、儿童游戏区、花园、游泳池和一系列荫凉的空间,并辅以一个多功能的封闭空间和一个儿童专用空间。
On the ground floor there is a common area that is intended as an authentic living room for all users of the building. Access from outside is through an open space in continuous visual relationship with the community garden to the access portals to the upper floors. A solarium, a children’s play area, a garden and a swimming pool will fill the open spaces with content, along with sheltered ones, in the shade, complemented by a multipurpose enclosed space and a children’s room.
▼首层公共空间,Public area © Luis Díaz Díaz
▼入口区域,Entrance area © Luis Díaz Díaz
▼住宅内部,Residence interior view © Luis Díaz Díaz
▼共享空间,The shared space © Luis Díaz Díaz
▼楼梯和建筑外观细节,Stairs & Building exterior detailed view © Luis Díaz Díaz
▼室内空间,Interior view © Luis Díaz Díaz
▼屋顶露台,Roof terrace © Luis Díaz Díaz
▼项目区位,Location map © Carbajo Barrios Arquitectos
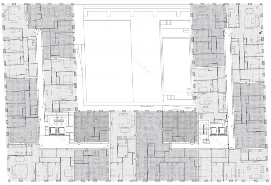
▼首层平面,Plan – ground floor © Carbajo Barrios Arquitectos
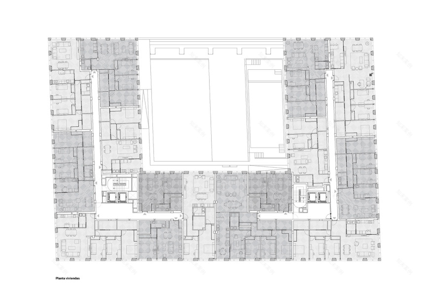
▼公寓层平面,Residence floor plan © Carbajo Barrios Arquitectos
▼屋顶层平面,Roof plan © Carbajo Barrios Arquitectos
▼西南立面图,Southwest elevation © Carbajo Barrios Arquitectos
▼东北立面图,Northeast elevation © Carbajo Barrios Arquitectos
▼西北立面图,Northwest elevation © Carbajo Barrios Arquitectos
▼东南立面图,Southeast elevation © Carbajo Barrios Arquitectos
▼剖面图A-A’,Section A-A’ © Carbajo Barrios Arquitectos
▼剖面图B-B’,Section B-B’ © Carbajo Barrios Arquitectos
▼剖面图C-C’,Section C-C’ © Carbajo Barrios Arquitectos
▼剖面图D-D’,Section D-D’ © Carbajo Barrios Arquitectos
▼细部,Details © Carbajo Barrios Arquitectos
Año finalización construcción: 2018
Superficie construida: 11.698m2
Ubicación: Rúa Trece Rosas, 4, Santiago de Compostela. A Coruña. España
客服
消息
收藏
下载
最近















































