查看完整案例

收藏

下载

翻译
The house was to be adapted for small and medium-sized events with the delicacy and personality of our projects. The proposal was to enhance the existing, bringing delicacy and romance to the ensemble. The new and the old should integrate with a tension that translates into contemporaneity. The enhancement of the existing happened in the main house, in the outhouse, which was destroyed, and in a large abandoned backyard with centuries-old trees. Delicate colors like closed beige and antique pink were chosen to be composed with natural materials such as wood, brick, and hydraulic tiles made in the same color palette.
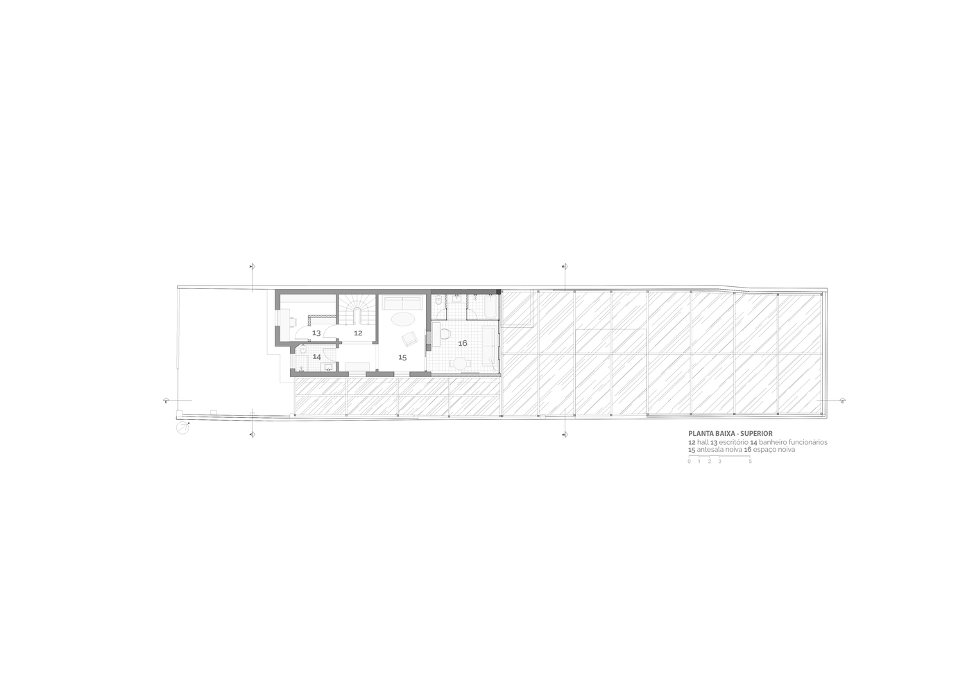
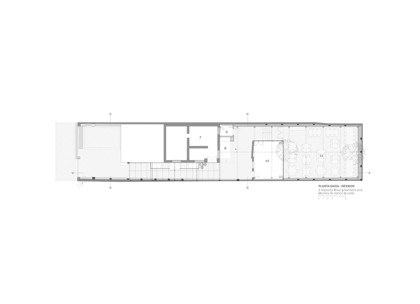
The change was significant. In the main house, a new volume was built to create a bride's room, and the rest of the house was valued for its history. Peeling walls and demolished stucco exposed the roof with preserved and painted wood and tiles. The new frames are in an industrial style and the existing windows were maintained, with wooden ones painted in antique pink and the metal ones having floral glass, all with the intention of creating highlights for what was previously degraded. The staircase was restored, recovering its sculptural strength. In the backyard, a salon was built around the existing trees, where brick floors and walls were laid, with the intention of maintaining the naturalness of the space, and a retractable roof that strengthens the idea of a backyard with natural light and opening to the sky. The outhouse was used as a dance floor and when opened, as a stage for shows. We wanted integration and fluidity between the environments, so we kept the general levels so that circulation would be very spontaneous. Through the side corridor that leads to the salon, we created a staircase to access the main house and the dance floor, in the former elevated outhouse of the backyard, which was leveled respecting the roots of the trees.
The scenic lighting made by spotlights with exposed tubing creates the effect of light and shadow with the necessary emphasis to enhance the history of the house. The decoration was made with Thonart chairs and new tables, together with vintage pieces bringing the desired romance. The great differential of the project was to redefine what is an event house. A project with the appearance of a house with the structure to host a big party. The project allows for the gradual discovery of spaces. The lateral access to the salon has the existing outhouse as a visual barrier to the backyard and allows for a surprise when arriving at the back. This visual barrier has such strength in this discovery that it is now the logo of the house.
Maintaining the memory of the existing, valuing deconstruction, tiled and scavenged furniture, delicate hydraulic tiles that climb the walls, all united with exposed hydraulic and electrical tubing, industrial frames, retractable ceilings that fill with natural light, a proposal that creates a tension of styles, a contemporary project full of poetry that respects the history of the location.
客服
消息
收藏
下载
最近






















