查看完整案例

收藏

下载

翻译
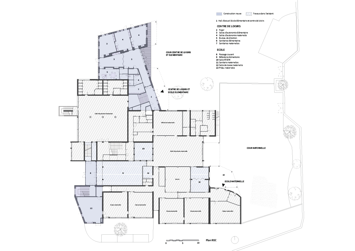
Trappes is a French suburban city located in the great area of Paris, with a large part of the population suffering from poverty and undergoing major changes in its built environment. To be able to accommodate its growing population, the city initiated the revitalization of its facilities, including schools. The Jean Macé complex is a great example of French school buildings from the end of the 60s. The city commission included the thermic rehabilitation of facades, the reorganization of uses and flow, and two extensions to accommodate new classrooms and a new leisure canter. Taking this as a starting point our objective was also to embrace the potential of the school and make it a safe and stimulating building for children with an emphasis on local and bio-sourced material and thermic efficiency.
Our methodology at SOL architecture includes working closely with users, through participative actions in order for them to be the driving force behind the projects. At Jean Macé, we worked mainly with kids and their teachers in order to understand their needs, but also regarding formal matters like colors and textures.
Following this process, we came up with warm, joyful, and sensitive spaces, mindful of the different age groups that occupy the spaces and their needs. Our project includes:
Space as the third teacher: a positive contribution to the learning process: Considering kids' scale and mobility we wanted the spaces and furniture to offer a variety of sizes and purposes, for example, we included alcoves to create intimacy inside open spaces, we designed storage that can play as a sitting area, a staircase that is warm and fun enough to offer more than a functional space.
The rehabilitation was considered for its opportunity to go beyond the thermic rehabilitation of the building’s skin. Given the restricted budget, we took advantage of the diagnostic phase in order to make the best use of the existing buildings to multiply connection points with the extension and remodel circulation for more fluidity.
conducive architecture to the awakening of the senses, a diversity of materials chosen, some of which are voluntarily visible in order to spark curiosity around buildings and spaces.
From user-friendly to eco-friendly and worker-friendly. An approach respectful of its environment: the extensions are made of wooden frames, with the integration of organically sourced materials, and the enhancement of artisanal know-how; and effort to be respectful of the environment as well as of the workers and the user's health. The structures of the extensions are made of wooden frames, walls, and floors. Maximum insulation with wood wool, natural ventilation for the leisure center, and installation of sunscreens. Two "fun walls" with timber framing and mud brick filling ensure uses related to children and the inertia of the building. The fittings use minimally processed products, with few glues or toxic products, produced in France, durable, with an implementation that values the installation work of the workers.
客服
消息
收藏
下载
最近

























