查看完整案例

收藏

下载

翻译
The project “Waterzicht” is part of this new master plan called “De 4 Fonteinen.” It is right on the canal with a view of the 50-hectare De Drie Fonteinen Park on the other side, which dates back to the late eighteenth century and is one of Belgium’s oldest landscaped parks. It was designed as an English landscape garden and creates a romantic atmosphere with its old trees. The project borders a very fragmented and rugged hinterland on the eastern side. Here some powerful, transformed industrial buildings are situated, on the one hand, and a large working-class area with small terraced houses, on the other. In addition, the small river Senne flows here, which is completely channeled within dam walls. Its banks were replanted as part of the redevelopment above the walls. In the south, the picture is completed by the ring road of Brussels, visible from afar, which crosses the canal at a distance of about 300 meters with the impressive 1,700-meter-long and 35-meter-high
viaduct.
How should new buildings react to such an urban space? And how can the architecture assert itself at all? What kind of city should be built here?
BUUR’s master plan envisaged a series of powerful architectures intended to enliven the generously designed public bank of the canal like a string of pearls, while at the same time mediating between the large-scale canal side and the smaller-scale hinterland. All the buildings form courtyards on the inside and serve as large structures on the outside. To the south of the project, there was already a generously sized brick building by the architecture firm A2O, which corresponds exactly to this logic.
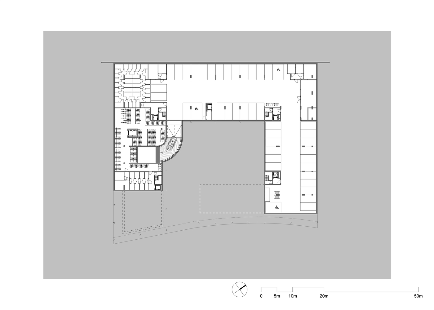
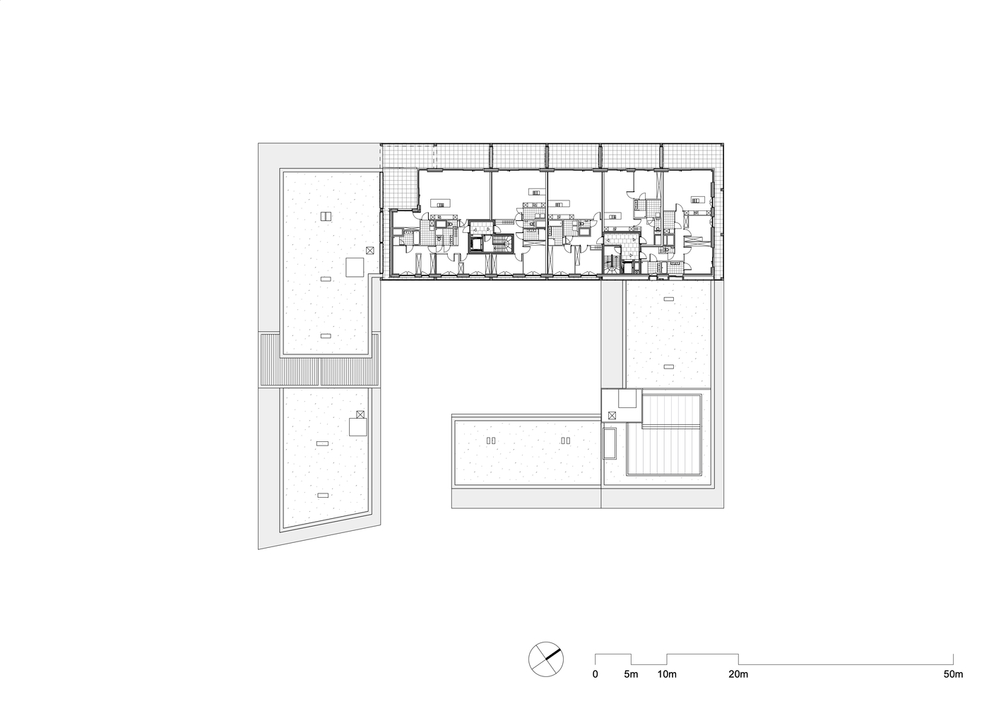
Various urban planning requirements pertain to the location of the project Waterzicht, giving rise to a great deal of complexity. Along the canal, the building had to be at least five stories high. There is an eight-story elevation accent on the northern corner. On the Senne side, a maximum height of four floors and a volumetric fragmentation were desired to better connect with the workers’ housing.
Programmatically, the ground floor facing the canal should be as lively as possible with shops and restaurants. In the area toward the Senne, living on the ground floor is possible. In addition, the Matexi development company wanted a couple of terraced houses facing the Senne, which typologically are diametrically opposed to the logic of multistory housing.
All of these circumstances created an extremely heterogeneous starting point for the architecture. The challenge then was to ensure a strong bond within this heterogeneity and to unite it as a consistent whole that goes beyond the mere sum of the individual fragments.
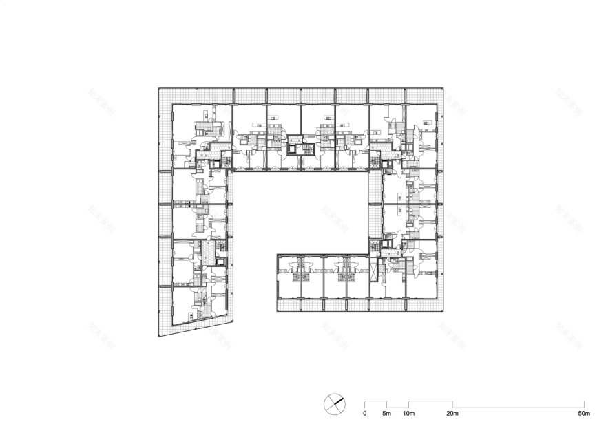
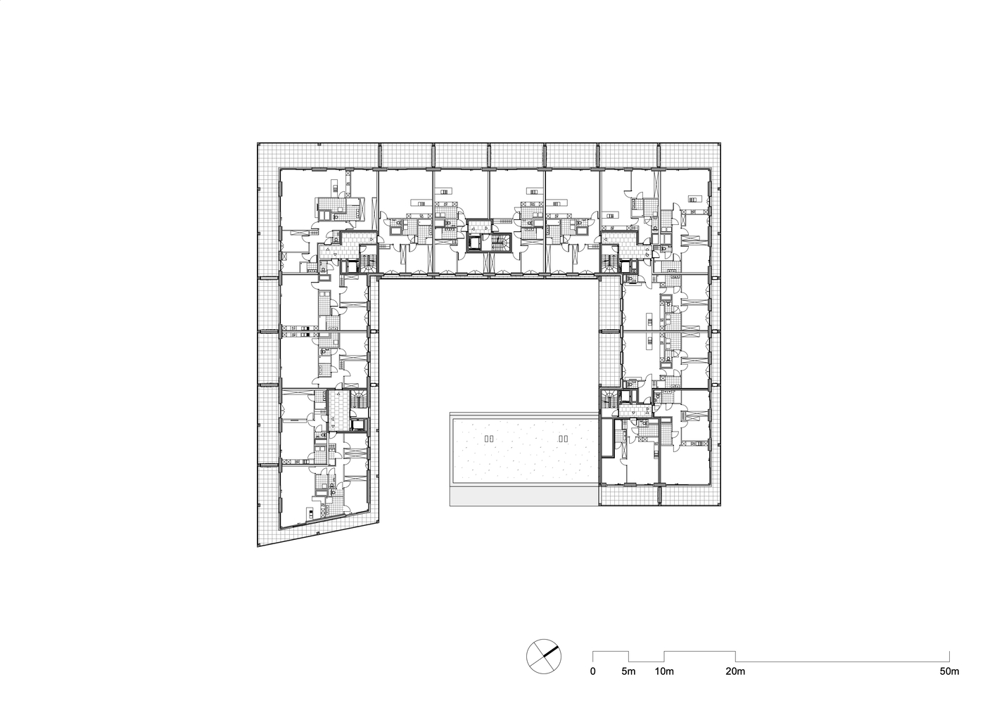
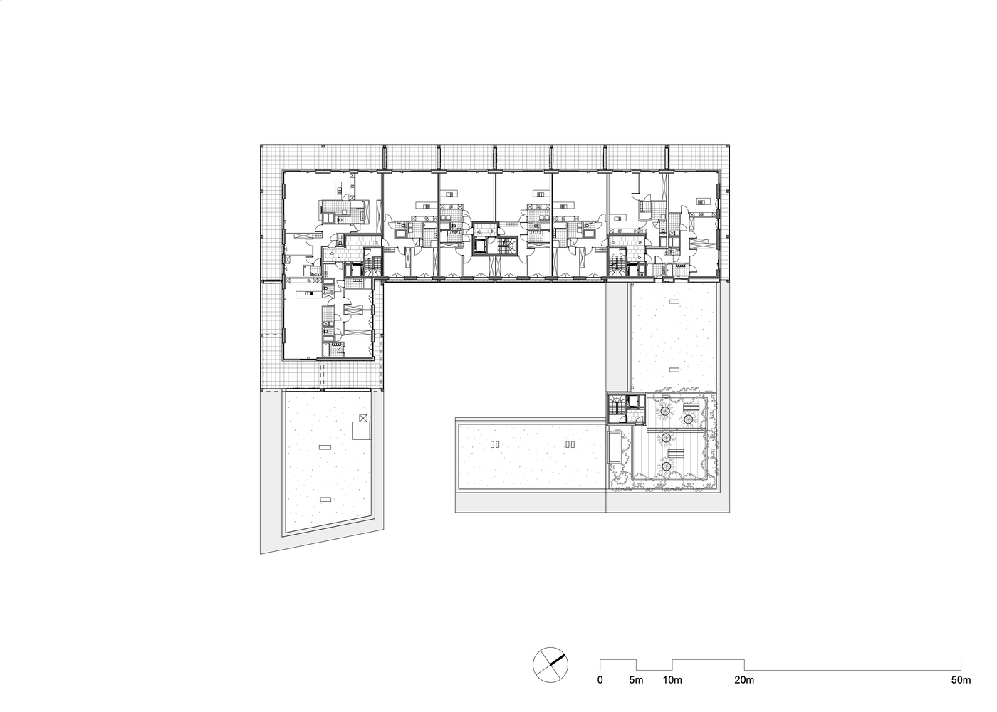
Programmatically speaking, the project Waterzicht is relatively simple at first. Shops and restaurants were only planned for the front area of the ground floor; otherwise, there is an underground parking garage and apartments of different sizes developed primarily for sale. There are large, expensive apartments facing the canal with 3.5-meter-deep balconies created especially for the beautiful view of the water and the park on the opposite side. In the roof area, the apartments are designed to descend from north to south, each with terraces running all around on three sides. In addition to a sensible orientation toward the sun, the theme of the stairs responds to the urban-planning desire for a height accent in the north and transfers this concept to the lower parts of the building. Perpendicular to the canal are more affordable, medium-sized apartments. Located on the Senne side, in turn, are four terraced houses with double-height balconies and medium-priced apartments.
All façades, both outside the building and inside the courtyard, are combined with balconies or terraces, which vary greatly in terms of depth and respond differently to the respective living typologies and cardinal points. The spatial openness of the inner courtyard to the outside also creates a direct transition between the courtyard and the outer façade with balconies connecting the inside and outside accordingly. The encircling terraces as an exoskeleton in prefabricated concrete parts hold meaning as a strategically used architectural element that goes beyond the actual living quality. Typological and morphological differences, varying axis dimensions, partly double-height exterior spaces, et cetera, are combined to form a whole without restricting the freedom required for each part.
客服
消息
收藏
下载
最近










































