查看完整案例


收藏

下载

翻译
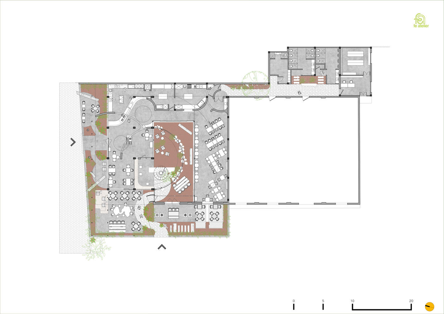
Mây – project name means cloud, which is renovated from 2 buildings of 2 different architectural styles, a street café, and a part of a wedding center of neoclassical style. Considering a limited budget and the investor’s will to keep a part of the wedding center, it was decided that the front block and the neoclassical building’s structure be left intact, and a new structure would be used to link itself with the old remains.
With both sides' common hope of the coffee shop reflecting certain Vietnam architecture characteristics, as well as breathing a sense of antique Northern construction into the project, bright red fish-scale tiles and a curvy roof system of rusted steel are chosen as the suitable elements for the new outfit. The desired antique sense and traditional reflections are not only featured in the curvy roof which resembles that of temples and the use of old-style fish-scale tile, but also the wide-open porch, red-brick pebble, and lastly the garden full of familiar flora and flower fragrance. We also aim at the highest level of simplicity, always avoiding using any unnecessary details.
Therefore, the only highlight is the large and high porch running along the facade, and secondly the slim, light, and conveniently designed interiors made of natural wood adorning the sand-blasted concrete floor under the curvy roof. The garden and the roof become surprise factors that are almost invisible to outsiders, revealing themselves only when one proceeds further inside through the big porch or the remainder of the old structure.
We have always been aspiring to create "living constructions", which elegantly incorporate the pre-existing elements and effortlessly merge into the current natural flow of life. Rising anew and becoming an integral part of the whole without making any sacrifice is our top priority, especially when nature is taken into consideration. Works must also satisfy the condition of self-sustaining and operating at minimum resources and maintenance while being user-friendly.
In this project, this architecture ideology was flexibly but strongly implemented using durable and climate-suitable materials, as well as the idea of linking the old with the new in a sensible way, thus maintaining and further nurturing the flow of life without any unnecessary and costly disturbance.
A true construction must be an organic and lively part of its context, hence being able to nurture and provide rejuvenating energy to its owners, offering them healthy exposure to natural elements. A building that separates humans entirely from wind blowing, sunlight, raindrops, birds singing, and leaves rustling is one that prevents us from experiencing life to the fullest. We do not wish to build constructions; we focus on enhancing life with our design initiatives.
客服
消息
收藏
下载
最近






























