查看完整案例

收藏

下载

翻译
Contemporary college students nearly spend more than one-third of their time in student apartments. Naturally, student apartments are becoming one of the most important components of campus life today. In the design of the student apartments on the west side of the South Campus of the Zhejiang Conservatory of Music, we have tried to get rid of “great-leap-forward” style of Chinese college construction in the past 20 years. The student apartments generally present the “quasi-house” structure and layout. The unique artistic atmosphere of Conservatory of Music serves as a starting point for design and provides students with a memorable campus time.
Site Selection The construction land of the entire school is mainly based on the previous Hangzhou Zhongcun Driving Test Center Base. In order to ensure the general starting points for political tasks, before the relocation of Driving Test Center is completed, there is almost only one solution to site selection of the student apartments i.e. a piece of land that belongs to this administrative district and is enclosed by another in the southern part of the campus overall planning land is arranged to provide living space for 5,000 students.
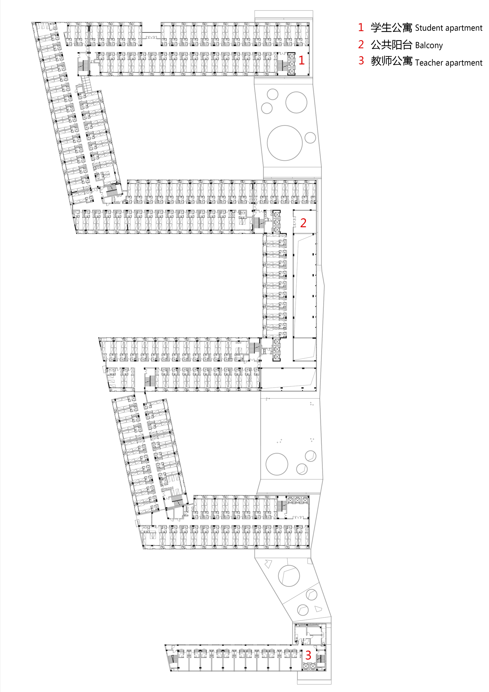
The limitation of site selection has also greatly influenced the planning of the entire southern district of the campus, and has led to the formation of the southern campus space structure that is circularly laid out around the central sports field and the outdoor grand theater. The student apartments occupy the central position on this ring, which constitute the best viewing spot for the outdoor space of the sports field and the natural mountain on the east side. In order to avoid elevator dependency caused by high-rises, the design has chosen the form horizontal expansion as the basic design direction.
Form Organization The limitation of site selection also brought about the release of design concepts. Facing the natural mountain and sports space, the design aims that the student apartments can become the special viewing space for the mountain natural landscape and the human landscape, sports and performance on the sports field. The most organized landscape-oriented interface has become the basic clue of the form-through three sections of vice-buildings that have the east-west view, five rows of north-south apartment are connected, thereby forming a continuous arch-shaped building form, and naturally enclosing inner courtyards that are open in all directions. The main courtyard, form openings, and air platforms are all open to the east to maximize response to external landscape resources. The continuous folded plates near the human scale are like the aerial extension of the flowing landscape one the ground, together with the architectural main body, constitute a vivid and elegant overall image. The bundles of steel tubes supporting the folded plates obscure the boundaries of structure and water supply and drainage, forming interesting space limitation.
The limitation of the costs makes the coating almost one of the few options for exterior main materials. The formal language has reverted to the basic design of the opening-a unique and rhythmic façade texture has been created through the left and right movements of the upper and lower balcony openings. The use of different colors in the balcony enhances the recognition of each management unit and forms an implicit and vivid architectural expression under the white tone.
Shared Space The first floor of the student apartments is functionally limited by the continuous folded plate space, and the public open space, living facilities, and bedroom vestibules are arranged under the folded plates. The open space, the empty space in the main structure of the building and the yards between the buildings together form the shared space for mutual penetration and provide students with countless places where they can enjoy the abundant campus time.
In the main structure of the building above the folded plates, the apartment partially faces the natural mountain on the east side, and at the end of each floor and at the transition site, a public living room is set and combined with a traffic core. These hierarchically-set shared-space nodes, like the special seats facing the landscape, present the scenes of the daily campus life that we imagine: communication, creation, interpretation, meditation…
As the core carrier of contemporary university life, student apartments are constantly creating new requirements for space with the progress of the times. The practice of Zhejiang Conservatory of Music Student Apartments under limitation has continuously created beautiful memories of campus life for the students of this school for more than two years since their delivery.
客服
消息
收藏
下载
最近




















