查看完整案例


收藏

下载
Houses, Springfield, United States
设计师:Arkifex Studio
面积: 6200 ft²
年份:2017
摄影:Aaron Kimberlin
建造商: Lutron, Bulthaup, HE Williams, Miele, Mitsubishi Electric, AutoCAD, Dorken Delta, Lumen Pulse, Manko Windows, Trimble Navigation, Unreal Engine
Lead 设计师:Michael Hampton
业主:Anonymous
Engineering Mep:Interpres Building Solutions/ Structural: J&M Engineering
景观设计:Grant Williams
City:Springfield
Country:United States
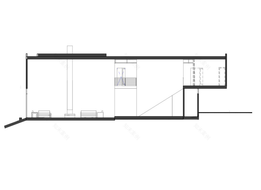
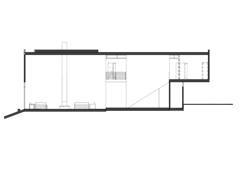
A case study on Ozark Modernism. The Case Study Residence harkens back to the post-WWII Case Study Houses project sponsored by Arts and Architecture magazine. Just as the original project was experimentation in modern American residential architecture, the Case Study Residence seeks to define and embody “Ozark Modernism” is an example of single-family residential architecture. For the firm, Case Study Residence is an opportunity to test a hypothesis, develop a specific regional vocabulary within our practice, and to reaffirm our mission statement.
Principal features of the project include:
• context sensitive design
• an underlying geometric formal logic
• Miesian horizontal symmetry
• an emphasis on the haptic modality and visceral experience
• a simplified and naturalistic materiality
• passive solar considerations to siting
• minimal removal of trees on site
• Use of reclaimed walnut, sustainably harvested siding, and locally quarried stone
• consideration of archaeoastronomy in the design
项目完工照片 | Finished Photos
设计师:Arkifex Studio
分类:Houses
语言:英语
阅读原文
客服
消息
收藏
下载
最近





















