查看完整案例

收藏

下载

翻译
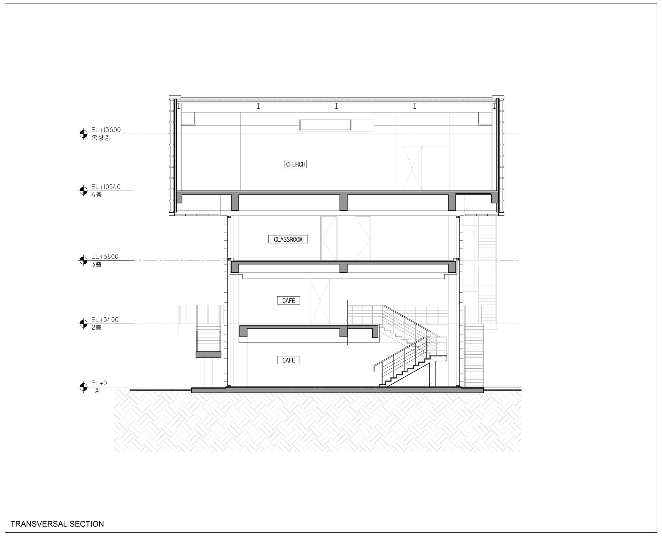
MISSION INTERNATIONALBuilding FactTheeAe’s First Project StoryMission International is a non-denomination church that outreaches her ministry to young generations especially for university students, since 1979. Hence, her program had been developed uniquely to serve young communities to include multi-purpose assembly hall, classrooms, general offices, missionary’s accommodations and cafeteria.To build MI Church had been a long wish for decades. There were always troubles to find a proper open and wide office space to rent. When the landlord asked for unexpected increase for the existing, or termination without any reason few months before the expiration date, it had been very chaotic to search and find a new space to relocate by fulfilling the need of flexible space for the sake of various teaching programs. To make matters worse, MI mission towards campus ministry was heavily affected when the address had to be changed especially for students who would like to come back after their military services; exchange student program; or Working Holiday abroad, etc. It was essential to lock down the location for efficient and effective ministry.Before being the architect of the project, personally MI church was a part of my university graduation project at hypothetical location in 2001. Because of it, I was found to be a proper architect, after 10 years later, to design MI Church for realization. I was called by the owner who has been the teacher and pastor of the church. The site was situated at a very convenient location for students by public transportation. In addition, it offers a good visual awareness to commuters who would pass by the road in front it. Beyond all these conditions above, the project was very exciting, challenging and rewarding not only as an architect but also as an old member of the church. Furthermore, my small commitment to design MI Church was fully respected and entrusted by the owner from the beginning to the end. Only was the limitation functional needs and construction budget. At first, I began to research the most efficient usage of the space by checking local code and regulations to define efficient size of the building. Gross floor area under 1,000sm was to be necessary to save cost overrun for the installation of mechanical ventilation and sprinkler system. At the end, the project was built 970sm in gross floor under 800k USD$.MI Church was completed in Spring 2012. Overall, she was comprised of ample setback for car parking space at the front and back side at the Ground floor; Euro Cafeteria a duplex at 1stand 2ndfloor; missionaries’ office, pantry and accommodations at the 2ndfloor; multiple classrooms for educational institute at 3rdfloor; lastly assembly area for 300 flexible seats for general church service on Sunday and educational events during weekends at 4thfloor. Throughout the process of designing, it was a fruitful experience as an architect to contribute to young communities and see how a built environment serves them and ministries all together.Design ProcessSectionElevation & LEDFaçade panel designPhoto from Googlemap
客服
消息
收藏
下载
最近








