查看完整案例

收藏

下载

翻译
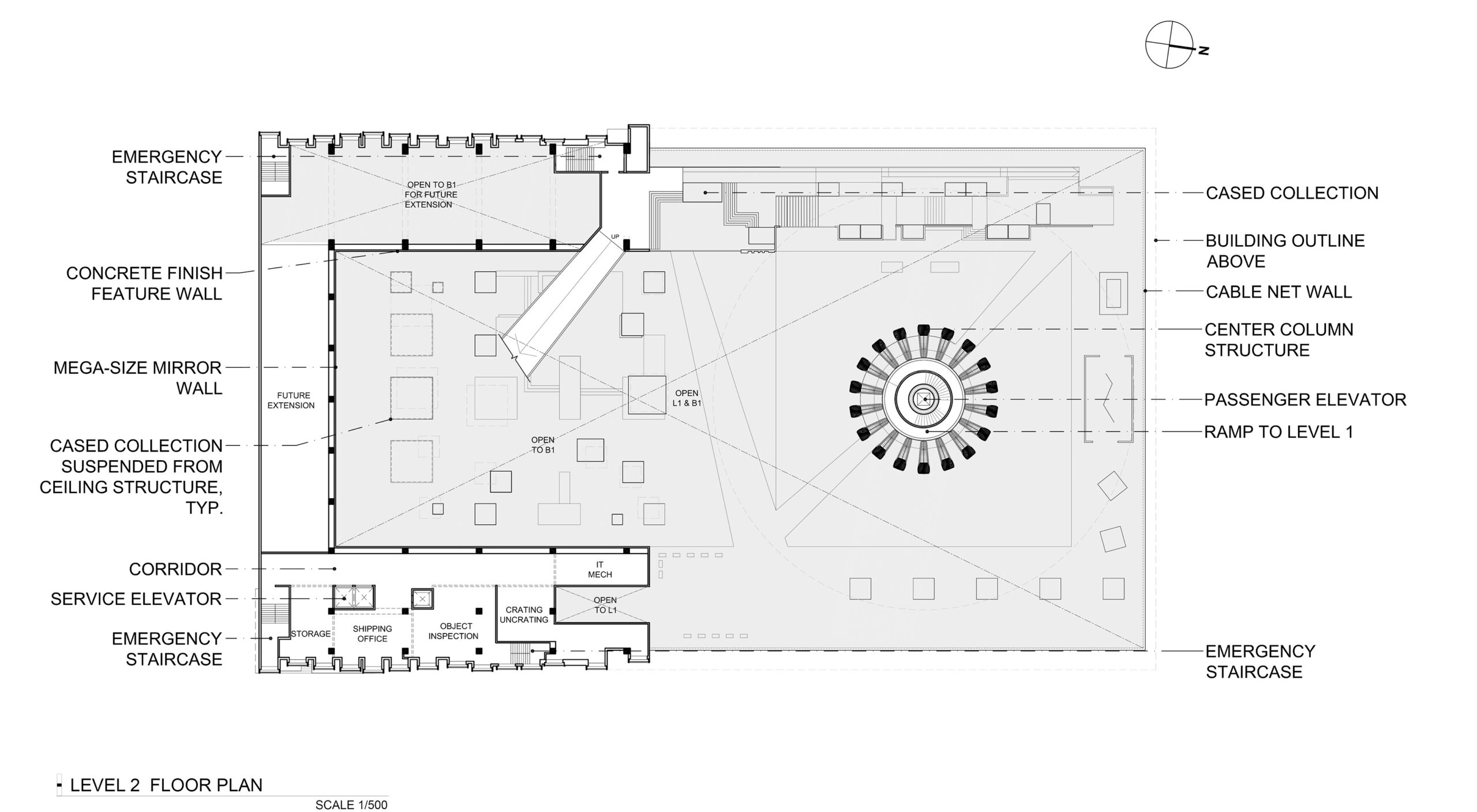
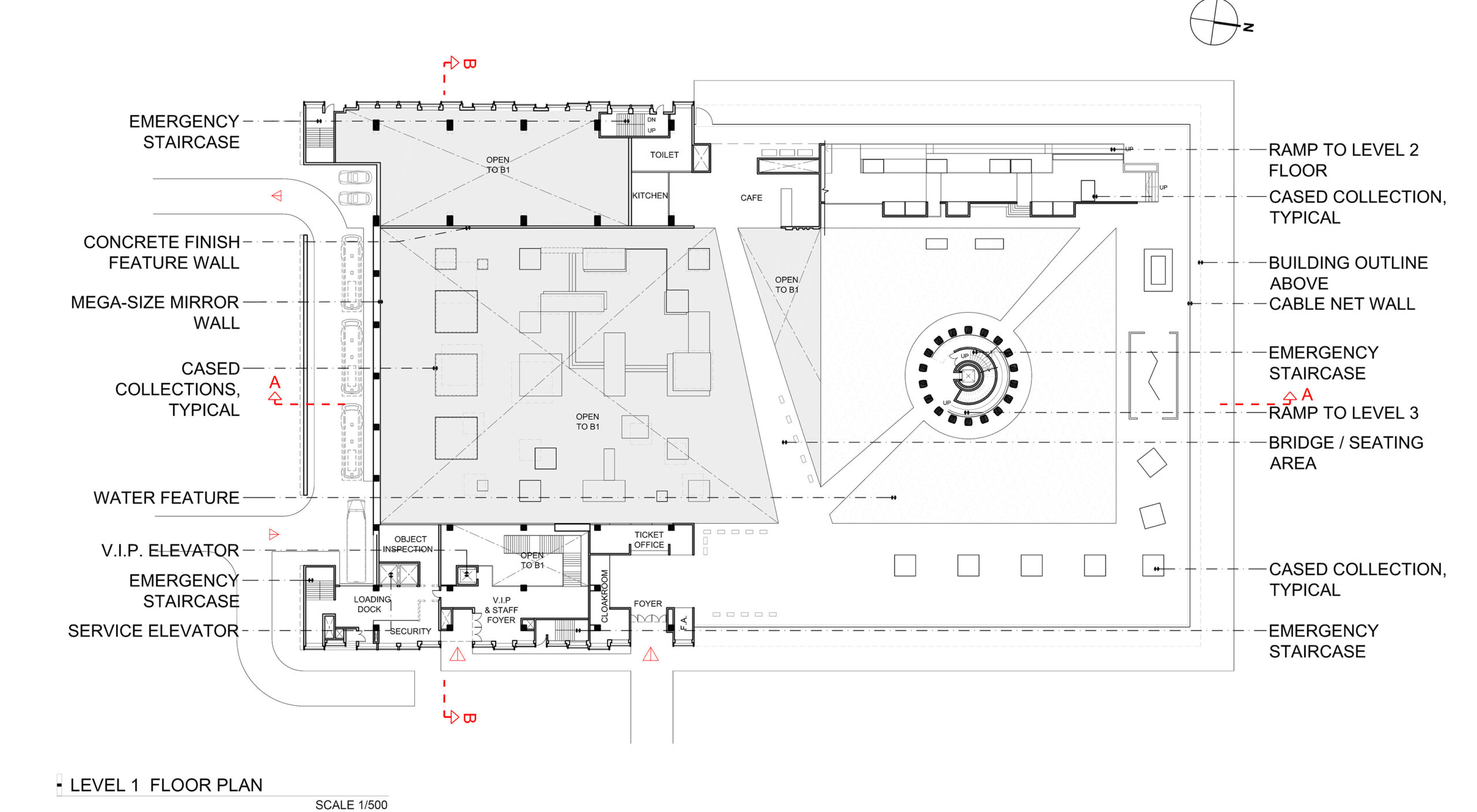
“A nation stays alive when its culture stays alive.”Building FactDesign Concept DescriptionThe new design of the National Museum of Afghanistan will be a landmark for Kabul. The country whose ancient heritage as the ‘Crossroads of the Ages’ is embodied in its collections of approximately 100,000 objects, the majority of which have been excavated from the country own soil. The Museum will be also be a catalyst for the cultural quarter in which it sits, inspiring and promoting residential development in the community.The existing National Museum of Afghanistan protects and preserves its collections and the country’s cultural heritage. It interpret its collections and educate its communities through its objects.Located on a prominent area of Kabul, Afghanistan, the new National Museum is not only the anchor of residents’ educational development, but it will soon become the cultural center of among the neighboring countries. A new physical space that reflects the cultural heritage of the country, will welcome visitors around home and abroad. Thus, the existing facility will continue to serve as the Museum’s home.Afghanistan’s culture that abides in the country was much ruined and deserted. Its new museum to catch up the lost richness and its cultural asset is necessitated to give hope and inspire people in that region.Finding this design chance as a way to bring the lost heritage back to the present, the major concern for the architecture was not only about the collections but also emotional realm of space that requires a place to give a rest and the joy of the nature in its heritage safe and secured.Our Architectural design was initiated to express the culture as if it has been with its heritage for centuries and centuries by emphasizing whose characters are natural environment, richly enormous sculptor, open valley of mountain and bright sun lights that penetrate thru patterned frames of the exterior walls.Design ProcessSite PlanFloor PlansSectionsElevationsPerspectives
客服
消息
收藏
下载
最近










