查看完整案例

收藏

下载

翻译
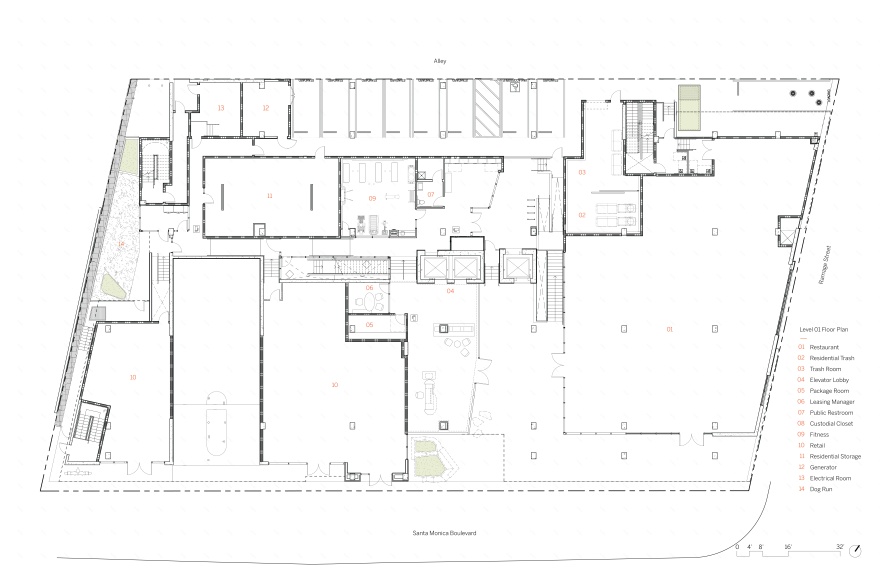
Envisioned as a refuge in a bustling city, Nine Thousand One is a five-story boutique building centrally located at the intersection of L.A.’s cultural and creative cores, where West Hollywood’s vibrant Design District meets the iconic boutiques, parks and galleries of Beverly Hills.LocationWest Hollywood, CaliforniaSectorResidentialServiceArchitectureClientGPI CompaniesStatusCompletedSize133,000 SF46 UnitsNine Thousand One was conceived with wellness in mind, offering residents direct access to the lush greenery of the interior courtyard and ample opportunities for fresh air, natural light and cross-ventilation. Crafted in a clean, California Modern aesthetic, the project is organized around a central courtyard, forgoing the common double-loaded corridor. This brings in light and airflow from both the courtyard through to the expansive terraces. With high-end finishes, open-air entrances and private outdoor spaces, Nine Thousand One brings together the qualities of a custom home with the elevated amenities of a boutique hotel.The project offers a mix of well-appointed one-bedroom and two-bedroom units, including eight affordable units as well as a limited collection of two-story townhomes — all ranging from 1,100 to 2,200 square feet and each with private spacious outdoor terraces, expansive floor-to-ceiling windows and sweeping views of the city and Hollywood Hills. Each light-filled residence at Nine Thousand One was designed as a bespoke sanctuary that blurs the line between indoors and outdoors and embodies true southern California living.Amenities include landscaped outdoor spaces and living areas, an indoor/outdoor club house and business center, fitness center, pool deck, pet spa and park, and two levels of subterranean parking.At the ground level, the building’s presence adds to the vibrant neighborhood with roughly 10,000 square feet of retail space, which will include a 6,000-square-foot restaurant to be occupied by Austin’s celebrated restaurant Uchi, a nontraditional Japanese concept from award-winning Executive Chef Tyson Cole’s Hai Hospitality. Neighboring Uchi is Solidcore, a boutique Pilates studio.Bookended by the new Melrose Triangle and Robertson Lane projects, Nine Thousand One is located within minutes of Rodeo Drive, the Sunset Strip, the Melrose, Robertson, and Beverly Boulevard shopping districts, Cedars-Sinai Hospital, the Pacific Design Center, and the West Hollywood Design District – a cultural destination featuring up-and-coming designers, art galleries, and premier restaurants. With unmatched views and a location in the heart of one of the city’s most desirable pedestrian-friendly neighborhoods, the design of Nine Thousand One brings a curated Los Angeles living experience to residents.
客服
消息
收藏
下载
最近












