查看完整案例


收藏

下载
本案的男女业主均从事互联网企业,对于生活他们更希望能像他们熟悉的网络一样有着无限的可能,又会希望他们的家可以足够真实、清爽。更重要的是四口之家的生活可以以最简洁的方式合理的“被安排”在这个家里。
当我们用大量的时间投入到理性的思维之中,形成一种逻辑循环后,对于周边所有的事物都会保持着高度理智的打量。习惯了理性思量的人对于生活也有着独有的需求,简单真实、自由舒适、轻便无压力便是业主想要的家的样子。
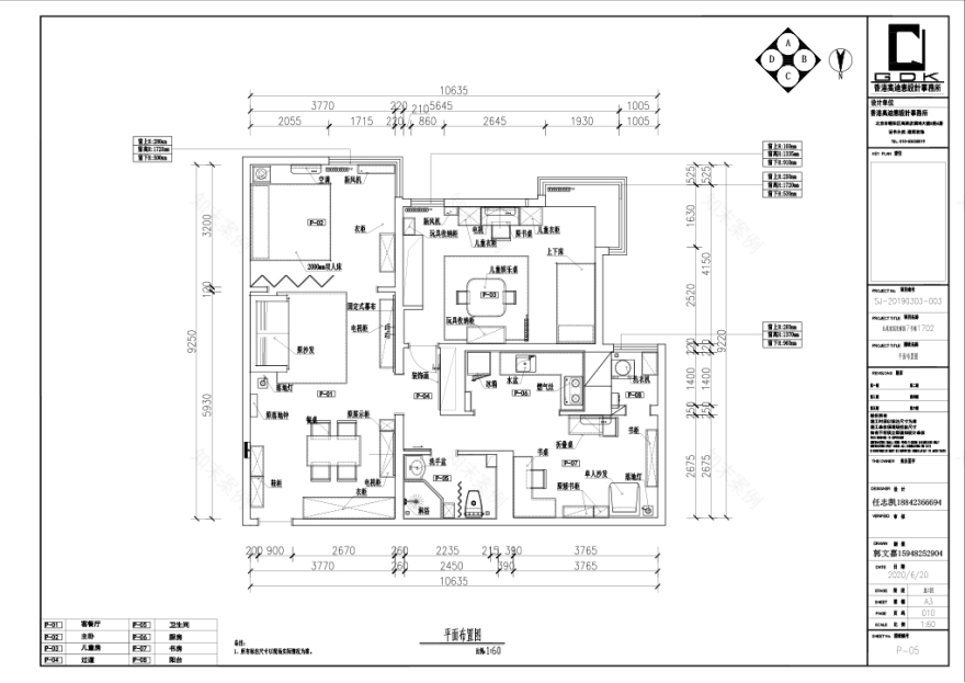
▼户型改造 UNIT RENOVATION
拆改说明:
1.利用轻体墙+折叠门将最大的一个房间分割成卧室和客餐厅。
2.将原卧室内的小套间打开,让卧室更整体通透。
3.拆除厨房的轻体墙,打造开放式厨房空间。
4.平移卫浴空间的入户门,为内部格局调整做辅助工作,打造三分离式卫浴空间。
平面布局图展示。↑
立体布局图展示。↑
▼玄关 HALLWAY
入户玄关,选择了一套小脚组合柜,简白的配色实用整洁,高低的搭配层次分明,桌面上还可以放置一些画框鲜花装饰,或是用收纳盒存放钥匙等零散物件.
▼餐厅 DINING ROOM
餐厅是开放式的,紧邻门口,弱化了棱角的实木餐桌椅加上一块灰绿色的地毯简单的将餐厅空间独立了出来,使得餐厅位既有独立的空间又没有边界的束缚。
▼客厅LIVING ROOM
客厅空间和主卧是相连的,我们通过吊顶和垭口来划分出两者的关系。
客服
消息
收藏
下载
最近




























