查看完整案例


收藏

下载
项目地址 address|柏悦府
项目类型 type|私宅设计
项目面积 area|220m²
项目设计 design|山舍空间设计——杨莹
现代轻奢风格充满了时尚与优雅,将简约主义与奢华元素相融合。它不仅仅是一种装饰风格,更是一种生活态度。现代轻奢的家具和装饰品注重细节和品质,以简洁而精致的设计为人们创造温馨舒适的居住空间。它既能满足人们对高品质生活的渴望,又以自然、简约的方式呈现出现代都市中的高级感。
The modern light luxury style is full of fashion and elegance, combining minimalism and luxury elements. It is not only a decorative style, but also an attitude towards life. Modern light and luxurious furniture and decorations pay attention to details and quality, creating a warm and comfortable living space for people with simple and exquisite design. It can not only satisfy people’s desire for a high-quality life, but also present the advanced sense of modern cities in a natural and simple way.
家的仪式感从入户玄关鞋柜开始,好比字如其人,我们常常通过第一感觉,来形成对一个人的第一印象。家亦是如此,玄关的设计对家居空间的第一印象起到至关重要的作用。
The sense of ritual at home begins with the shoe cabinet at the entrance of the house, just like a person. We often form a first impression of a person through the first feeling. The same is true for home. The design of the porch plays a vital role in the first impression of the home space.
■
享自由
This is a title
A/B
1. 将繁琐剥离,追求静谧与和谐,浅色作为墙面和地板的主色调。透过窗户引入充足自然光线和视野,宽敞、自然的空间布局使得整个房间看起来更加明亮。
Thetediousstrippingpursuestranquilityandharmony,andlightcoloristhemaincolorofthewallandfloor.Withsufficientnaturallightandviewthroughthewindows,thespaciousandnaturalspacelayoutmakesthewholeroomlookbrighter.
■
享自由
This is a title
A/B
简单的配色高级感满满的视觉效果,沙发背景墙面主要浅色饰面,质感很好地突出高级的调性。
Asimplecolorschemewitharichvisualeffect,andthesofabackgroundwallismainlydecoratedwithlightcolors,highlightingthehigh-endtonewithagoodtexture.
电视背景墙采用悬浮电视墙和上下嵌入式的灯带设计,起到视觉冲击力,高级又美观,横厅的结构,使整个客厅更加开阔大气。客厅阳台打通,扩大空间。休闲阳台做了落地阳台柜,美观的同时又起到收纳的作用。无主灯设计提升了空间的通透感,暖咖色的空间色彩营造了整屋高级感。
The TV background wall is designed with a suspended TV wall and an embedded light strip, which has a visual impact. It is advanced and beautiful. The structure of the horizontal hall makes the whole living room more spacious. Open up the living room balcony to expand the space. The leisure balcony has a floor to ceiling balcony cabinet, which not only looks beautiful but also serves as storage. The design without main lights enhances the transparency of the space, while the warm coffee colored space creates a sense of luxury throughout the house. " 2 Let’s fall into natural love. Leave unrelated people alone with nature...
与浮躁的外界相比,现代轻奢风散发的则是一种不骄矜的生活态度。简洁有力的线条与细腻的触感,装饰温暖的烟火气息。
Comparedtotherestlessoutsideworld,themodernluxurystyleexudesanonarrogantattitudetowardslife.Simpleandpowerfullinesanddelicatetouch,adornedwithawarmatmosphereoffireworks.
沿袭客厅空间的设计风格,餐厅也采用以浅色为主搭配木质装饰。从视觉和感官上舒缓精神,层层递进的温暖中又嵌入干净利落,这其中氤氲的是家的温度。
Following the design style of the living room space, the restaurant also adopts light colors with wooden decorations. Relieve the spirit from both visual and sensory perspectives, and embed the warmth layer by layer in a clean and tidy atmosphere, which is permeated by the warmth of the home.
■
享自由
This is a title
A/B
FIND HAPPINESS
yoursel
Let’s fall into natural love.
Leave unrelated people alone with nature.
3
生活的空间,应当是有温度的空间。布局、动线、搭配、色彩都是为了传达空间的温度,让人与之形成连接互动,享受生活的质感。卧室的色调让人感到细腻、宁静和温暖舒适,在艺术与生活之间,找到属于自己的那个平衡点。
The living space should be a space with temperature. The layout, movement, matching, and color are all designed to convey the temperature of the space, allowing people to connect and interact with it, and enjoy the texture of life.
The color scheme of the bedroom makes people feel delicate, peaceful, and warm and comfortable, finding their own balance between art and life.
儿童房的设计都是集休息与学习功能为一体的,色彩生动活泼充满童趣,搭配百叶窗使整个空间生机勃勃。
The design of children’s rooms is a combination of rest and learning functions, with lively and childlike colors, and paired with blinds to make the entire space lively.
考虑到业主的需求,在二楼设立书房与衣帽间为一体的空间区域,隔离出纯粹的休憩空间,在有限的空间内实现完备的功能体系。
Considering the needs of the owners, a space area integrating a study and cloakroom will be established on the second floor to isolate pure recreational space and achieve a complete functional system within a limited space.
二楼阳光房极大程度上延伸了室内空间,承接与外界的空间互动。白天这里是明媚的阳光房,暖暖的阳光塞满小屋,窝在沙发上来一场足不出户的日光浴;晚上,这里又成了星空房,满天繁星一闪一闪环绕四周,静静感受星夜流转。
Thesecondfloorsunshineroomgreatlyextendstheindoorspace,acceptingtheinteractionwiththeoutsidespace.Duringtheday,itisabrightsunshineroom,filledwithwarmsunlight,andnestledonthesofaforasunbathingwithoutleavingthehouse.Atnight,thisplacehasbecomeastarryroomagain,withstarstwinklingandshiningallaround,quietlyexperiencingtheflowofthestarrynight.
■
享自由
This is a title
A/B
“理想的住宅”看似简单,每处设计却蕴含极致的生活品味。
The ’ideal residence’ may seem simple, but each design embodies the ultimate taste in life.
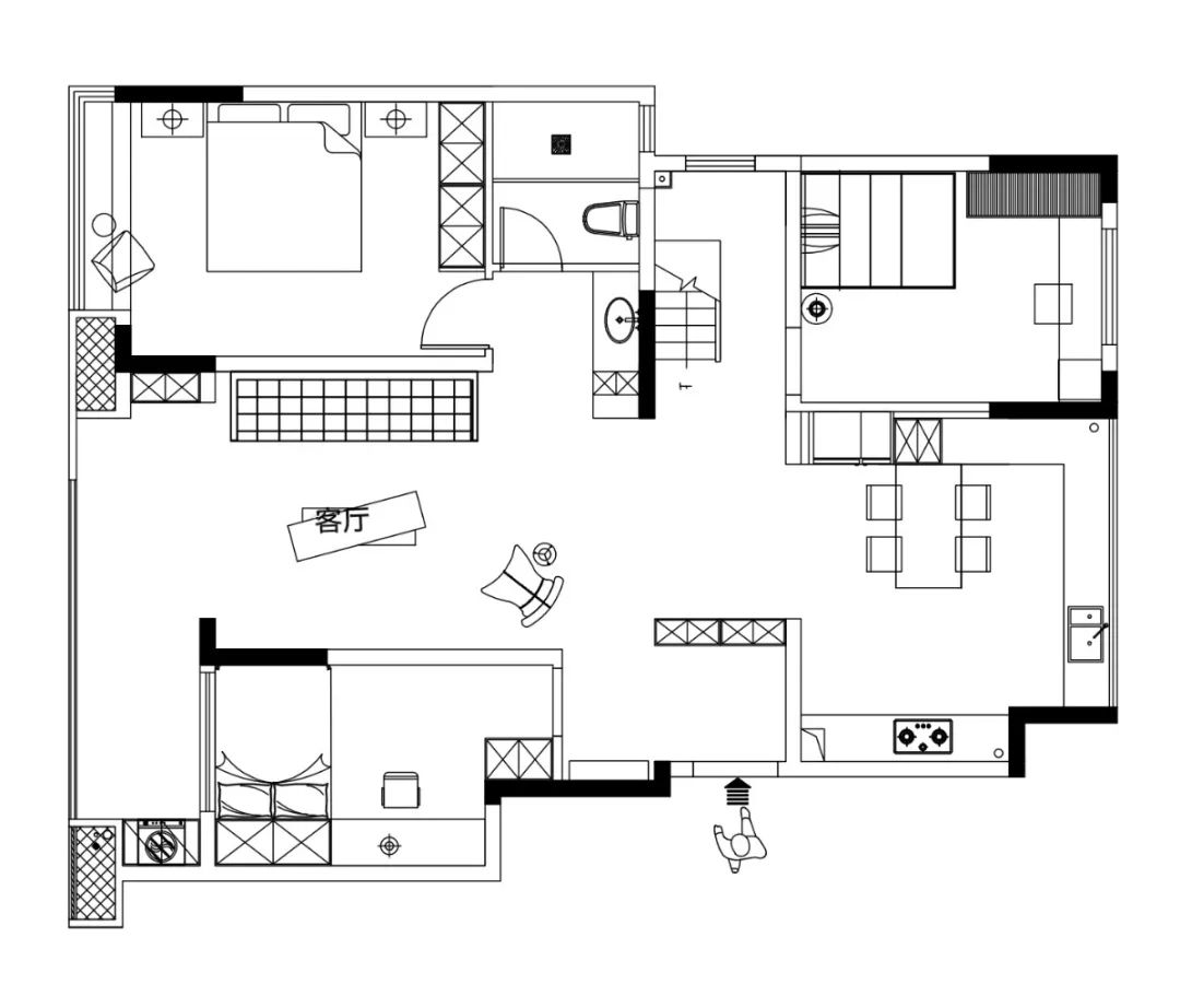
(一层平面图|plan)
(二层平面图|plan)
客服
消息
收藏
下载
最近

























