查看完整案例

收藏

下载

翻译
Helvetia is the alteration and renovation of a double-storey Victorian terrace in
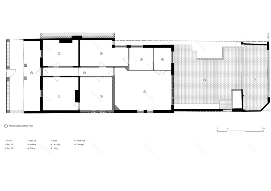
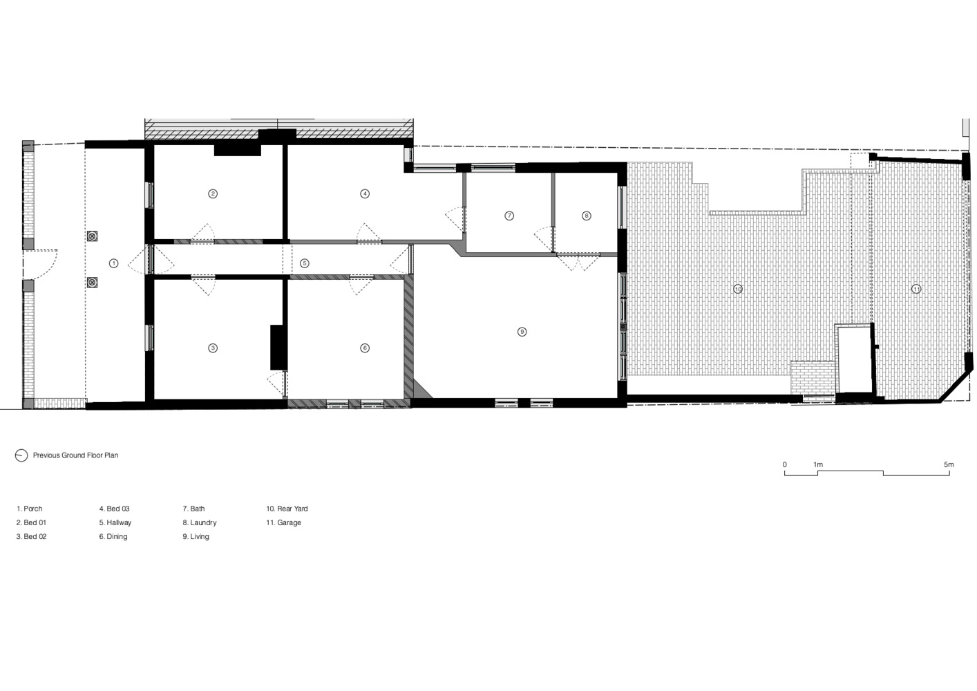
, Melbourne. The residence had been separated into two dwellings in the 1960s to operate as a boarding house and reconfigured again in the 1980s into a three-bedroom apartment at ground level and a one-bedroom with a studio at the first floor. Muddled, confused, dark, and in a sad state of disrepair, the challenge was to resurrect Helvetia. In removing the two rooms above and below in the center of the building and utilizing the side laneway, Helvetia has been transformed into a light-filled family-sized home with multiple gardens, a flexible floor plan, a dramatic central entryway, and a towering sunlit atrium.
Helvetia is considered a detailed and dynamic ‘before and after’ project. It is an exercise in making the most of what you have, in ego restraint, and in focusing on the fundaments of sustainability, predominantly ‘Reuse.’ Rather than opt for the standard heritage response, keeping the frontage and demolishing everything beyond, we found there were no serious cracks or structural damage to the rear extension. It wasn’t pretty, but it didn’t need to go. Instead, we chose to use the existing brick fabric and work with the skin we had.
Like most Victorian terrace houses, Helvetia was gloomy, with dark corridors and internalized rooms. The resurrection required major surgery from the inside out. One of the rare occurrences where the client was happy to take away the floor area, we completely removed the repeatedly problematic rotten core and created a substantial lightwell through the middle of the house. The vertical expanse of open space introduces a flood of natural light, while fixed timber awnings control the western and northern sun.
Internally, most of the dividing walls were removed to open up the areas with sliding doors and curtains to offer flexibility of use and function. Future-proofed for circumstantial changes in years to come. All internal finishes were renewed throughout, a new concrete slab with hydronic heating was poured into the open-plan living/dining/ kitchen, and all existing windows were replaced with thermally efficient double glazing. The original large bay window in the main bedroom upstairs was also retained and restored. A large balcony terrace off the main bedroom was reimagined, and at the rear of the site is the addition of a large (possum-proof) productive garden with a shed and carport beneath.
The owners asked us to convert their house back into a single dwelling to make their dark and awkward home more liveable. Their hope was for an inner city “sanctuary” that would exist in stark opposition to their “sterile work environment.” Existing in beautiful contrast to its gritty urban location, the owners traverse a bridge over a waterlily and fish-filled pond to their bright, considered, and joyfully resurrected new home. “Our sanctuary has been created, and the effect on our lives has been profound,” they say. “Our brief has been fulfilled in ways we have never imagined and are still discovering."
客服
消息
收藏
下载
最近

































































