查看完整案例

收藏

下载

翻译
Project 1710 is a residential house located on a rectangular, rural plot in the south of Mallorca. The area in which the building is located has a rustic character and is intended for traditional residential development typical of Mallorca. Despite the very big area of over 14,000 m2, only a small part of it is permitted for development.
The project must also meet a very large number of requirements regarding visual aspects such as the color of the facade, materials used, roof surfaces, and many others. The goal of the project was to create a modern version of traditional Mallorcan architecture.
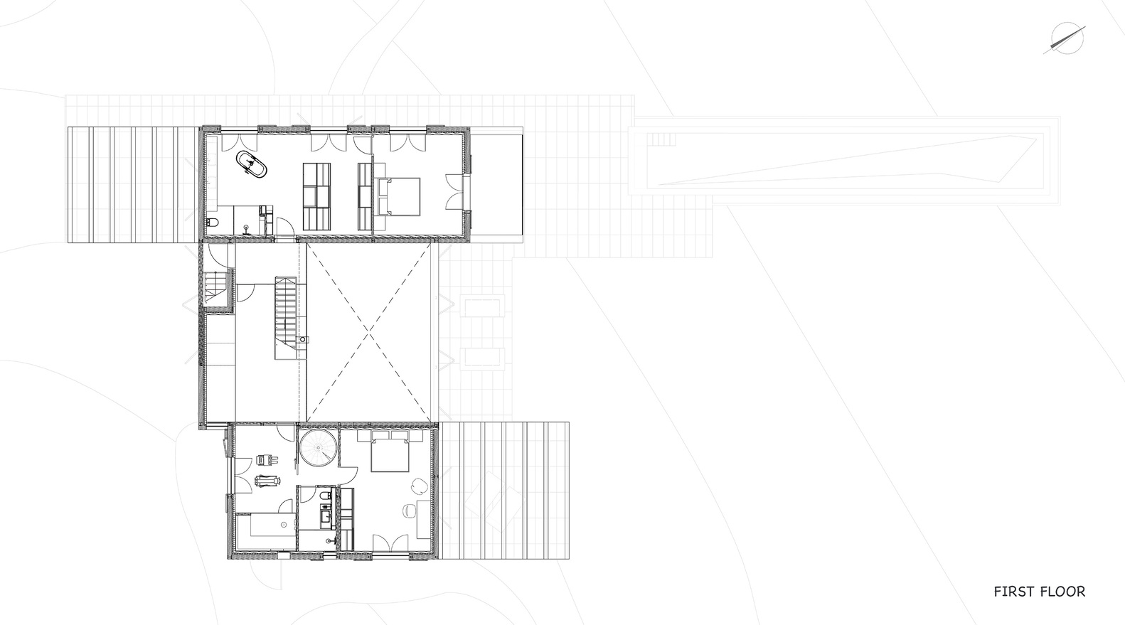
The concept of the project was to place the building in the center of the plot to obtain a 360-degree view and, at the client's request, to direct the largest openings to the north to obtain the main view of the mountains. Each room in the house has windows on at least 2 sides of the building. Opening the house completely allows for natural wind flow and a sense of open space. The living room is open, double-height, and has glass partitions inside for maximum transparency.
The interior is organized around a specially designed staircase that connects with the fireplace and the overall design of the central space of the house. The building structure was made of steel trusses in order to create the largest possible span of external roofs. A waffle slab gives the building a modern character and gives the impression of the lightness of the structure.
The house has been designed with the greatest possible integration with the terrain and nature around it. Spacious outdoor terraces and a swimming pool are surrounded by a garden designed with autochthonous plants. Also, the range of finishing colors harmonizes with the colors of the surroundings. 1710 is an integrated project that combines traditional Mallorcan architecture with modern solutions and presents great attention to detail.
客服
消息
收藏
下载
最近

























