查看完整案例

收藏

下载

翻译
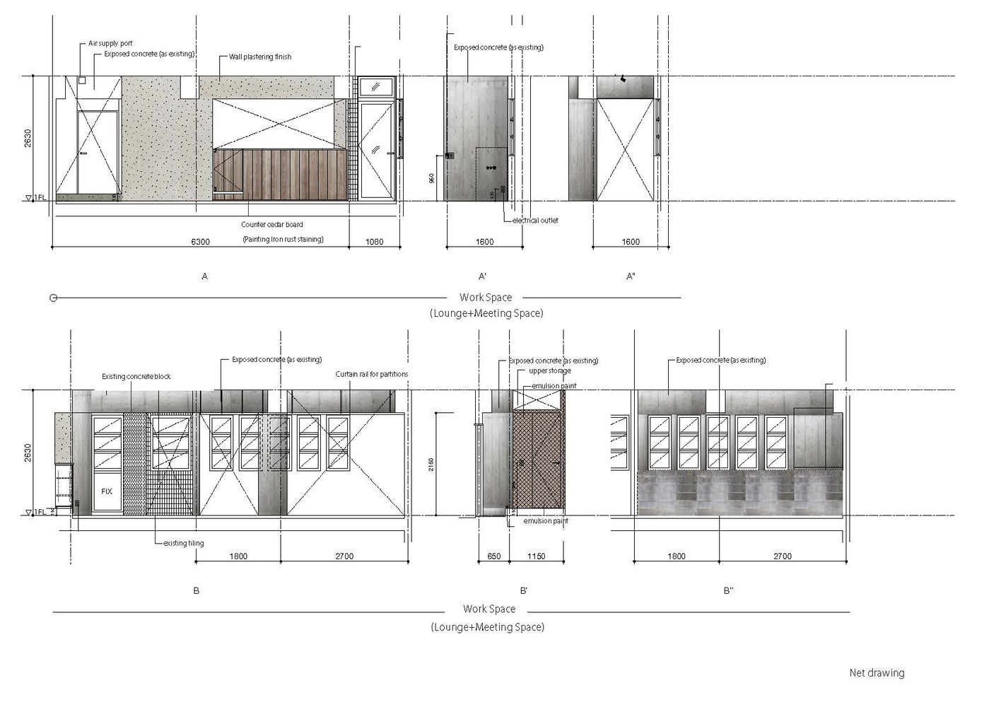
The former clinic has been restored to its skeleton state and renovated to take advantage of the exposed concrete structure of the building. It is a flexible space that consists of a one-room office with different materials for each purpose and can be used as a meeting room, office, or event storage space with curtains.
The solid wood flooring in the meeting space has an original rust-stained finish, and the iron and wood lighting in the workspace has a dimming function that allows you to change the atmosphere. Various finishes are used in each location, such as the plastered kitchen, and it also functions as a model room for a design office.
The color scheme uses various materials, but to create a sense of unity throughout, the interior colors are limited to gray and beige, with black used only for functional and irreplaceable items such as chairs and lighting. Since the office has an alternative theme, we hope various creators will be surrounded by materials and stimulated, creating a cycle of connections.
客服
消息
收藏
下载
最近




















