查看完整案例


收藏

下载
向内舒展的精神领域,温润配色为城市生活渲染一处闲适之所。以极简的式样、顺畅的动线、艺术的装点、美学的比例,布局空间秩序。The inward stretching spiritual field and warm color scheme render a place of leisure for urban life. The spatial order is laid out with minimalist patterns, smooth lines, artistic decorations and aesthetic proportions.
联泰·香域滨江LUEN THAI·Fragrant Riverfront项目以温馨为基调,与优越的滨河环境形成内呼外应。通过大道至简的设计手法,糅合木饰面、石材的自然纹理,以及软装选配,营造静谧而高雅的质感之境。The warm tone of the project echoes with the superior riverfront environment. Through a simple design approach, the natural texture of wood and stone panels and soft furnishings are combined to create a quiet and elegant place to live with a sense of quality.玄关 | Entrance Hall
玄关柜体以温润木质打造入户舒适感,净白窗帘将艳阳过滤为柔光,石纹面板赋予艺术想象。进屋的每一步,都是剥离疲惫的仪式感,令归家状态尽显放松与舒缓。The entrance cabinet is made of warm wood texture to create a comfortable feeling of entering the house, the net white curtains filter the bright sun into soft light, and the stone pattern panel gives artistic imagination. Each step of entering the house is a ritual of stripping away fatigue, making the home state as relaxed and soothing as possible.客厅 | Living Room
从素白哑光电视柜、灰色哑光砖,到沙发木饰面背景,迎合客厅的无主灯设计,将开阔空间处于层次递进的质感氛围。无把手立面柜体消除视觉杂乱,为收纳获取更多利用率。From the plain white matte TV cabinet and gray matte tiles to the wood veneer backdrop of the sofa, the design of the living room without main lights caters to the open space in a layered and progressive texture atmosphere. The handleless façade cabinet eliminates visual clutter and gets more utilization for storage.
客厅搭配棉麻意式极简沙发,家具设计师·HENRIK PEDERSEN设计的真皮蜗牛单椅,色系匹配功能区,为品味生活加载高雅调性。The living room is decorated with a minimalist Italian sofa made of cotton and linen, and a leather snail chair designed by furniture designer - HENRIK PEDERSEN. The color scheme of the furniture matches the functional area, loading an elegant tone for tasteful living.
客厅望及餐厅,采光与风景随开放空间的延伸,令不同功能区的每个角落都能共享这份明媚与惬意……Looking from the living room to the dining room, the light and scenery extend with the open space, so that every corner of different functional areas can share the brightness and comfort ......餐厅 | Dining Area
加装联动玻璃移门,餐厨区在开放与封闭间自由切换,令空间开阔有序,尺度轻盈。With the addition of linkage removable glass doors, the dining and kitchen area can switch freely between open and closed, making the space open and orderly and light in scale.
收纳式中岛台创造简洁利落的使用感。光线经过石雕肌理挂画,于立面产生折射,明暗变化散发流动气韵,在互动空间绽放艺术光影。The center island creates a sense of simplicity and efficiency. The light passing through the carved stone wall paintings refracts the façade, and the changes in light and darkness emit a flowing rhythm, blossoming artistic light and shadow in the interactive space.
复古棕色餐椅配对木质餐桌,承载视觉赋予的厚重感,古铜框架演绎流畅工艺,提升空间层次,展现用餐氛围的优雅,释放闲逸舒适的姿态。Vintage brown dining chairs paired with wooden dining table, carrying the visual given a sense of heaviness, antique brass frame interpretation of smooth process, enhance the level of space, show the elegance of the dining atmosphere, release the leisurely and comfortable posture.
流畅动线与功能的满足,诠释极简家居的魅力,让居者时刻享受一日三餐的精致与随性。The charm of the minimalist home is interpreted by the smooth movement and functional satisfaction, allowing the residents to always enjoy the refinement and spontaneity of three meals a day.主卧 | Master Bedroom
主卧接应整体色调,延用柔和舒适的木饰面,弧度造型打破传统常规背景,携外部光线抒写惬意……The master bedroom follows the overall color palette with soft and comfortable wood finishes, and the curved shape breaks the traditional background, bringing the exterior light to express the coziness……
私密空间融合美学设计和实际应用,强调屋主对生活艺术与品质的执着追求,阐述简约而诗意的休憩场景。An intimate space that blends aesthetic design and practical application, emphasizing the homeowners dedication to the art of living and quality of life, elaborating a simple and poetic resting scene.
悬空柜体设计,使空间游离于秩序与美学之间。隐藏式线性灯营造见光不见灯的氛围感,选配简约灯饰,延续整体的利落与明亮。The overhanging cabinet design makes the space stray between order and aesthetics. The hidden linear lights create a sense of ambience of seeing light but not seeing it, and the optional minimalist lighting continues the sharpness and brightness of the interior.
床尾成排柜体,增强收纳功能,精简的外观,提升视觉空间,干练而不张扬。The end of the bed into rows of cabinets to enhance the storage function, streamlined appearance, enhance the visual space, dry and unobtrusive.次卧 | Secondary Bedroom
温和木质触感构筑次卧,塑造简洁的休息场域,续写舒适极简语境。The second bedroom is constructed with a gentle wooden touch, creating a simple resting place and continuing to write a comfortable minimalist context.
一字型线条灯制造轻盈漂浮感,呼应嵌入式灯光,让视觉聚焦光影,柔化内心,以至简形式塑造永恒美感。One-line lights create a light and floating feeling, echoing recessed lighting, allowing visual focus on light and shadow, softening the heart, and shaping timeless beauty in its simplest form.
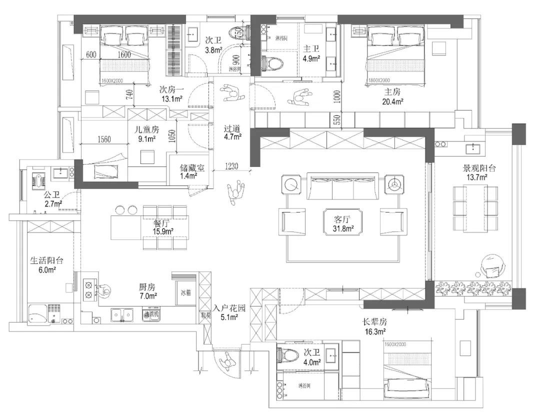
内敛沉稳的木质柜体,遵循“极简舒适”的主旋律,有序安排空间节奏,精致家居日常,让生活回归本心。The restrained and calm wooden cabinet follows the main theme of "minimal and comfortable", arranges the rhythm of space in an orderly manner, and brings life back to its heart with exquisite home routine.▼平面图 | The Plan▼
项目名称 | 联泰·香域滨江Project name | LUEN THAI·Fragrant Riverfront设计机构 | 远校空间设计Design Firm | YUANXIAO SPACE主案设计 | 余远校Interior Design | Yu YuanXiao硬装设计 | 邵瑞环 余泽娇 余卓毅Interior Design | Sao RuiHuan项目地点 | 中国 澄海Location | ChengHai,China设计面积 | 193㎡Design Area | 193 sq.m.设计时间 | 二零二三年四月Design Time | April 2023
量身订造品味美学精神空间Tailor-made Taste Aesthetic Spirit SpaceYUANXIAO SPACE DESIGN远校空间设计成立于2017年,我们一贯坚持“美学、专业、梦想”的理念。专注售楼中心、样板间、高端私宅、别墅 、办公室、酒店等领域,为客户提供全案设计及顶级定制服务。
客服
消息
收藏
下载
最近























