查看完整案例


收藏

下载
案例简介
Case description
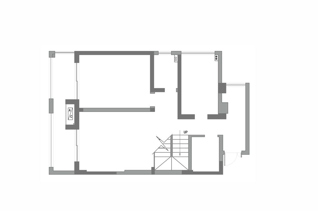
220㎡五人居,三世同堂。一楼原始入户生活阳台面积较小,功能操作不完整,而楼梯于右侧占据餐厅部分面积,让公共空间显得局促压抑。二楼主卧无独立储物、卫生间,动线分布不清晰,自然光线较差。
1F:
➊ 容纳开发商赠送面积扩大生活阳台➋ 另行搭建楼梯位置,扩大客餐厅使用面积➌ 纳入景观阳台,一分为二,同时给予客厅与父母房使用
2F:
➊ 调整楼梯位置后,合理分配其原始面积,一部分改造为电影房,一部分给予主卫使用➋ 一间次卧改造为与电影房联动的书房➌ 纳入景观阳台,一分为二,同时给予主卧与儿童房使用
以优化五人日常生活功能分区及最大限度为空间引入自然光线为设计主旨,从入户开始,依次拆除左侧独立储物间及楼梯位置,让一楼公共区域(玄关、客餐厅)得到完全开阔、释放。
简约流畅的直线与几何造型贯穿其间,经典白将空间进一步提亮,一扫过去的暗淡。局部分色使用白鲸灰(趋于黑色一种深灰色调),利用叠构设计产生出丰富的层次视觉。
原本厨房正对储物与楼梯空间,走廊狭窄,且与餐厅相隔一段距离。
开阔后的动线,厨房正对餐桌,从烹饪到用餐只需跨越几步距离,非常方便,呈现出高效、愉快的生活节奏。
景观阳台纳入室内,扩大五人使用面积的同时,落地窗为其引入更丰沛的自然光线。为空间做减法,无繁复的装饰陈设,极富质感的皮革、木材、金属适度融合穿插,独特的澄静调性赋予日常治愈意味。
原楼梯移至卧室一侧,大大压缩了不必要的占地面积。建筑手法融于室内,新砌部分柱体用以弥补后退电视墙后的尺寸不足,前后形成联结贯通的透视关系,成为空间的吸睛之笔。
同侧,将卫生间干湿分离,利用具有透光质感的玻璃与餐厅隔离,动静相生,达成美感与舒适性的双向平衡。
父母卧室于一楼,融合阳台部分面积后功能得以增加。选择白鲸灰同色系木饰面与经典白产生层次比对,在局部灯条的蕴罩之下,营造出宁静、舒心的睡眠情绪。
延梯而上,原本单调、封闭的二楼被细分成为拥有观影、书房、儿童房、主卧等多元场景的舒适空间。
基于空间原本采光不足,选择无光照的一侧以经典白满墙呈现,并于墙体内嵌形态不一的灯条。灯光亮起,由无聊的平面立即转换为丰沛、饱满的立体结构,如柔和的月光,散发出一种舒缓的色调。
二楼一部分公共面积改造为开放式多功能区域,可以是一家人欢聚的观影空间,也可变更为亲友来访短暂居住的睡眠卧室。
一间卧室改造为独立书房,拆除原始一面玻璃,形成两条不同的出入动线,与空间产生对话,赋予多元的场景营造。以淡雅灰色分层,融入真实、纯粹的摩洛哥蓝,为儿童房营造出悠然的童话梦境。
以淡雅灰色分层,融入真实、纯粹的摩洛哥蓝,为儿童房营造出悠然的童话梦境。
利用原楼梯移除位置为主卧内部加入独立卫生间,使其充纳为一间舒适的多功能套房。将不可拆除墙体进行立面叠构、包裹,形成极富柔和的律动视觉。
客服
消息
收藏
下载
最近

























