查看完整案例


收藏

下载
©Philippe-Alexandre Aka-Adjo
在地性不仅强调着有关所处环境的景观、人文、以及风土习俗等因素,也成为了物质与精神层面上某种联系的必然纽带。随着城市的快速发展,文化断层或缺失等问题由此逐渐被关注、讨论、重视,并提出“因地制宜”的设计理念,借此重拾被遗忘的传统工艺与技术,同时也凸显出精神层面的深度思考。
01Villa Mondoukou
Aznar + Tailly
科特迪瓦·大巴萨姆
©Philippe-Alexandre Aka-Adjo
Villa Mondoukou 位于非洲西部的几内亚湾附近,是建筑师 Remy Aznar 和 William Tailly 共同合作设计的度假住宅。场地周边环绕着高低错落的棕榈树群,与住宅中心的岩石庭院形成了视觉上的对话,以增进建筑空间与场地的联系。
©Philippe-Alexandre Aka-Adjo
丰富的错层设计与连贯的屋顶模糊了不同功能空间以及内外环境的边界,同时还在交通动线之中注入“曲折”的巧思,使通往主卧的路径必须经过能够直面大海的错层平台,充分发挥场地的景观优势。此外,住宅的墙壁和屋顶均使用了当地传统的材料工艺,以低成本的建造方式达到最佳的效果。
©Philippe-Alexandre Aka-Adjo
左右滑动查看更多图片
02Culture centre and kindergarden tlatenchi
Taller CD
墨西哥·莫雷洛斯州
©ANDRÉS CEDILLO
坐落在 Jojutla 市内的文化中心和幼儿园是由 Taller CD 设计的两个独立项目,二者间隔约 5 分钟步行路程。场地曾是开发后的剩余地块,建筑师通过具有加泰罗尼亚特色的拱顶结构、大地色调以及粘土砖等本土材料来暗示他们之间的内在联系,并加强结构受力以应对该地区频繁发生的地震灾害。
©ANDRÉS CEDILLO
左右滑动查看更多图片
03Đạo Mẫu Museum
ARB Architects
越南
©Trieu Chien
Đạo Mẫu 是一位受到越南当地居民尊重的民间艺术家,这座为他而建造的博物馆旨在延续民族的舞蹈艺术形式及其个人的艺术造诣呈现,一并融入于当地具有百年历史的古老街区之中。ARB Architects 基于场地现有的景观与采光条件,利用传统的粘土砖构建分散布置的体块,希望唤起人们对于祈愿舞蹈仪式的记忆。
©Trieu Chien
左右滑动查看更多图片
04Vale Flores House
PAr Plataforma de ARquitectura
葡萄牙·圣塔伦
©JCS photography
Vale Flores House 是一座以景观为主要切入点而设计的私人住宅,建筑师选用葡萄牙特产的砖材来呼应场地裸露的石灰岩地貌,同时将整理出来的石材废料用于建造浴室与厨房的台面,延续场地与建筑之间的对话关系。
©JCS photography
左右滑动查看更多图片
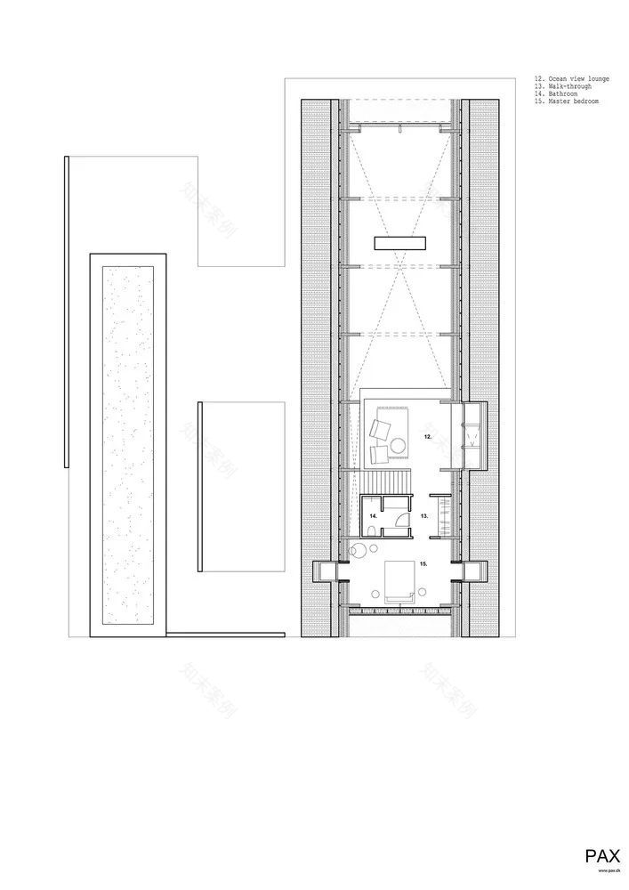
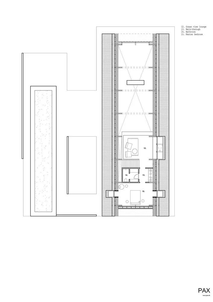
05Skagen Klitgård House
PAX Architects
丹麦·斯卡恩
©Coast Studio
这座位于斯卡恩港口的避暑别墅是供三代人共同生活的家居空间,建筑的外立面选用了烧制的木材来致敬曾将打捞的沉船材料用作建房的特殊历史时期,室内则充分考虑他们的作息习惯,通过创建独立于适宜聚会的开放区域来满足家庭成员的不同需求。
©Coast Studio
左右滑动查看更多图片
06 House in Toguchi
Sakai Architects
日本·鹿儿岛
©blitz studio
这座有着美发沙龙与居住功能的建筑位于奄美大岛北部的一片自然地块内,虽然场地的交通并不十分便利,但却是一片无人打扰的静谧之地。Sakai Architects 根据不同的室外景观、朝向以及温湿差异等先决条件来组织空间结构,并将面朝太平洋的露台作为室内外的衔接过渡区域,以增加通风与采光。
©blitz studio
左右滑动查看更多图片
编辑:Neiwai
撰文:YouChuan
校改:YueQiu
编排:Holy
客服
消息
收藏
下载
最近












































































































